Translate with 
MENU ZAVŘÍT

Pronájem výrobních prostor 148 m², Lišov (ID 111-NP07237)

ulice Jirsíkova, Lišov mapa

Pronajato
GMimořádně
nehospodárná

148 m2
Exkluzivně Pronajato

Pronájem komerčních prostor 148 m2, Lišov

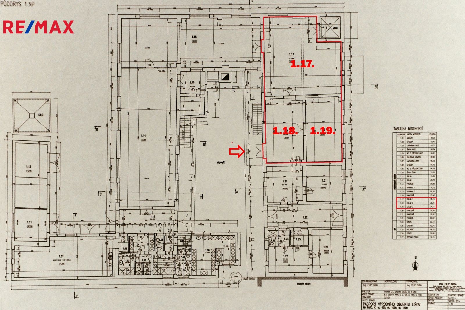
Nabízíme Vám k pronájmu prostory ke komerčnímu využití v průmyslovém objektu v Lišově, městě vzdáleném 10 km od Českých Budějovic. Jedná se o objekt, který byl vybudován pro truhlářskou výrobu v roce 1974, rekonstruován v roce 2014 a nabízené prostory v roce 2022. Prostory jsou vhodné a připravené pro lehkou výrobu, montáž, skladování, případně také jako kanceláře. Prostory tak nabízí široké možnosti využití, jedná se o 3 místnosti velikosti 78,16 m2, 35,81 m2 a 34,41 m2. Lze pronajmout dalších 231 m2 ve dvou přímo sousedících výrobních prostorách. Prostory jsou přístupné ze společného nádvoří objektu, přes nádvoří je přístup do sociálního zázemí tvořeného toaletami, umývárnami, sprchami. V této části objektu je k dispozici společná kuchyňka. Vytápění objektu je ústřední z vlastní kotelny na uhlí, je řízené zónově pro každou místnost. Objekt je zabezpečen elektronickým zabezpečovacím systémem s napojením na pult ostrahy, instalováno požární zabezpečení, je možné užívání datových rozvodů. Měsíční nájemné pro tyto prostory s celkovou podlahovou plochou 148,38 m2 činí 10.200 Kč, nájemce dále hradí paušálem náklady na služby spojené s užíváním pronajatých prostor (topení, voda, užívání společných prostor) + odběr elektřiny v pronajatých prostorech dle podružného měření. Kauce (peněžitá jistota) ve výši dvou měsíčních nájmů. Situováno 10 km od Českých Budějovic, nájezd na D3 cca 7 km. Parkování 1 osobního auta/dodávky ve dvoře přímo u zadního vstupu/vjezdu do objektu, další parkování před budovou na ulici. Rád Vám poskytnu další informace a v případě zájmu Vás provedu za přítomnosti vlastníka objektu všemi prostory nemovitosti. Pronajímající si vyhrazuje právo vybrat nájemce na základě jím zvolených kritérií.
Cena:
Pronajato
Poznámka k ceně:
Upozornění:
Pronajímající si vyhrazuje právo vybrat nájemce na základě jím zvolených kritérií.
Petr Červenka
RE/MAX Dynamic
Kanovnická 75/4
České Budějovice, 37001
Česká republika
Tel. na makléře: +420 724 832 803
Tel. do kanceláře: +420 725 910 910
E-mail: petr.cervenka@re-max.cz

Potřebujete poradit/máte zájem o prohlídku?

* – toto pole je nutné vyplnit

Podrobné informace

Číslo zakázky:
ID 111-NP07237
Typ nemovitosti:
Komerční prostory
Druh prostor:
Výrobní
Číslo podlaží:
1
Počet podlaží v objektu:
2
Plocha kanceláří:
148 m²
Plocha parcely:
1 037 m²
Druh objektu:
Cihlová
Stav objektu:
Velmi dobrý
Druh stavby:
Budova, hala
K nastěhování:
1. 4. 2023
Celková plocha:
148 m²
Typ domu:
Přízemní
Energetická náročnost budovy:
G