Translate with 
MENU ZAVŘÍT

Pronájem obchodních prostor 50 m², České Budějovice (ID 343-NP00394)

ulice Vrbenská, České Budějovice – část obce České Budějovice 4 mapa

280 Kč ( m²/měsíc)
BVelmi
úsporná

50 m2
Exkluzivně

Nové komerční prostory v moderním projektu Dubičný potok České Budějovice

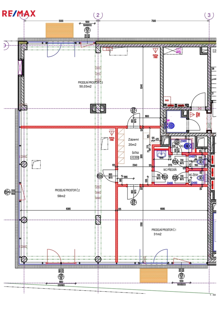
Nabízíme k pronájmu zcela novou obchodních jednotku v projektu Dubičný potok na Vrbenské ulici o velikosti 50,03 m2.
D.B.1.3.2 je rohová OJ s orientací na silnici Vrbenská a spojovací silnici mezi ulicí Vrbenská a Rudolfovská. Do vnitrobloku je plně prosklená, z boku do spojovací ulice se jedná o kombinaci zdi a skla.
Zázemí (toalety, koupelna) má společné s druhou obchodní jednotkou, ve které se nachází Tatoo studio. Z tohoto důvodu je prioritně určena pro služby typu pedikúra, manikúra, masáže, barber shop... Vyhovovala by však i obchodu s potřebami pro lidi.

Prostory se budou pronajímat ve stavu kompletní přípravy na provoz OJ dle individuálních požadavků, bez nábytku.
Fit-out a další podmínky jsou předmětem jednání.

Na projektu jsou vítány i jiné zajímavé obchody a služby, pro které nabízíme i větší prostory (chovatelské potřeby, veterinář, pohybové aktivity, lékaři, yóga studio, atd.)
V tuto chvíli je dokončena 1. etapa projektu s 229 byty (115 bytů prodáno, 40 bytů v nájmu). Celkový počet ve všech etapách bude 1700 bytů.
Polyfunkční soubor Dubičný potok v nově vznikající obytné zóně kompletně promění původní charakter území.
V 1. nadzemním podlaží celé 1. etapy budou umístěny obchodní jednotky, které budou poskytovat své služby nejen pro obyvatele 1. etapy projektu Dubičný potok, ale i pro obyvatele a zaměstnance širokého okolí. S narůstajícím počtem postavených bytů se obchůdky a služby umístěné v 1. etapě stanou stabilními prostory se širokou klientelou.

Automobily - parkování:
• pro obyvatele je zajištěno výlučně v podzemním podlaží
• pro majitele a zaměstnance v komerčních prostorách – možnost pronájmu venkovnho parkovacího stání
• pro zákazníky komerčních provozů – k dispozici je 31 parkovacích míst vyhrazených pro zákazníky
Kola:
Ekologický přístup k dopravě a využívání cyklistických kol podporujeme prostorným krytým parkovištěm pro kola obyvatel a zaměstanců komerčních prostor a exteriérovými kolostavy v okolí bytových domů.

Lokalita je výborně dostupná autem, koly i MHD. Přímo před domy 1.etapy je situována zastávka MHD.

Sjednejte si schůzku a přijďte se podívat v jak krásném, moderním prostředí byste mohli provozovat svou podnikatelskou činnost. Na místo s velkým potenciálem pro Vaši budoucí širokou klientelu.
Cena:
280 CZK / m2/měsíc
Poznámka k ceně:
Cenovou nabídku Vám vypracujeme na míru dle požadavků na stavební úpravy jednotky
Upozornění:
Pronajímající si vyhrazuje právo vybrat nájemce na základě jím zvolených kritérií.
Bc. Petra Puschnerová
RE/MAX G8 Reality 8
Pekárenská 1128/46
České Budějovice, 37004
Česká republika
Tel. na makléře: +420 739 332 258
Tel. do kanceláře: +420 733 785 785
E-mail: petra.puschnerova@re-max.cz

Potřebujete poradit/máte zájem o prohlídku?

* – toto pole je nutné vyplnit

Podrobné informace

Číslo zakázky:
ID 343-NP00394
Typ nemovitosti:
Komerční prostory
Druh prostor:
Obchodní
Číslo podlaží:
1
Počet podlaží v objektu:
6
Plocha kanceláří:
50 m²
Druh objektu:
Skeletová
Stav objektu:
Novostavba
Bezbariérový byt:
Ano
Charakter okolní zástavby:
Obchodní a obytná
K nastěhování:
24. 6. 2024
Doprava:
MHD
Garáž:
Ano
Odpad:
Kanalizace
Ostatní rozvody:
Satelit, Kabelová televize, Kabelové rozvody
Celková plocha:
50 m²
Počet parkovacích míst:
1
Telekomunikace:
Internet
Typ domu:
Přízemní
Umístění objektu:
Klidná část obce
Voda:
Dálkový rozvod
Výtah:
Ano
Energetická náročnost budovy:
B

Další nemovitosti projektu (13)

číslo zakázky podlaží dispozice plocha balkon/lodžie/terasa (m²) předzahrádka sklep počet park. míst stav zakázky cena  
ID 343-NP00394 1 50 m² 0/0/0 ne ne 0 Aktivní 280 CZK  
ID 343-NP00456 2 1+kk 60 m² 0/12/0 ne ne 0 Aktivní 4 330 000 CZK  
ID 343-NP00575 2 1+kk 56 m² 0/8/0 ne ne 0 Aktivní 4 520 900 CZK  
ID 343-NP00457 5 2+kk 56 m² 0/8/0 ne ne 0 Aktivní 4 720 900 CZK  
ID 343-NP00462 2 2+kk 67 m² 5/8/0 ne ne 0 Aktivní 5 290 000 CZK  
ID 343-NP00452 3 2+kk 64 m² 6/0/0 ne ne 0 Aktivní 5 321 000 CZK  
ID 343-NP00459 5 2+kk 78 m² 0/26/0 ne ne 0 Aktivní 6 190 000 CZK  
ID 343-NP00463 2 2+kk 89 m² 0/31/0 ne ne 0 Aktivní 6 590 000 CZK  
ID 343-NP00506 1 3+kk 104 m² 0/19/0 ne ne 0 Aktivní 7 140 000 CZK  
ID 343-NP00075 5 3+kk 89 m² 5/12/0 ne ne 0 Aktivní 8 190 000 CZK  
ID 343-NP00460 2 3+kk 131 m² 0/46/0 ne ne 0 Aktivní 8 990 000 CZK  
ID 343-NP00041 4 4+kk 126 m² 9/12/0 ne ne 0 Aktivní 9 977 040 CZK  
ID 343-NP00076 6 4+kk 151 m² 6/0/40 ne ne 0 Aktivní 10 420 000 CZK