Translate with 
MENU ZAVŘÍT

Pronájem obchodních prostor 208 m², Rousínov (ID 268-NP03013)

ulice Sušilovo náměstí, Rousínov mapa

Cena na vyžádání v kanceláři
ENehospodárná

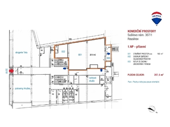
208 m2
Exkluzivně

Nově zrekonstruovaný komerční prostor 208m2

Hledáte prostory pro Vaše podnikání v centru Rousínova přímo na frekventovaném Sušilově náměstí? Tak pak je tato nabídka právě pro Vás.

Nabízíme Vám pronájem nebytových prostor o celkové výměře 208 m2 v polyfunkční budově přímo u hlavní silnice. Jednotka se nachází v přízemí s každodenním provozem a pohybem osob.

Hlavní výhody:
• kompletně zrekonstruované nové prostory – budete první nájemce
• v centru obce s bohatou občanskou vybaveností
• bezproblémové parkování a zásobování
• výborné dopravní spojení do Brna i Vyškova

Nabízené nebytové prostory zahrnují:
• otevřený prostor o výměře cca 160 m2
• výlohy do společného prostoru
• sociální zařízení, případně skladovací prostor

Tyto prostory Vám jsou k dispozici ihned a můžete si je tak vybavit dle Vašich potřeb.
Prostory jsou vhodné obzvláště jako obchod, služby nebo kancelář. Po domluvě je možné je rozdělit na menší části.

Vybavení:
• Podlaha – velkoformátová dlažba
• Osvětlení – stropní v podhledu
• Topení – el. radiátory
• Kamerový systém ve společných prostorách budovy

Parkování:
• Parkování pro nájemce ve dvoře
• Parkování pro klienty bezplatné podél hlavní silnice
• Navážka zboží ze dvora

Současné obchody/služby v budově:
• Potraviny Hruška
• Drogerie Teta
• Bankomat KB
• Budoucí nehtové studio

Měsíční platby:
• nájemné + zálohy na vodu, elektřinu a společné prostory

Jednorázové platby:
• vratná jistota (kauce)
• poplatek RK

V tomto domě jsou k dispozici k pronájmu i další prostory v suterénu i prvním patře. Více Vám rádi sdělíme po telefonu.

Veškeré zveřejněné mají pouze informativní charakter. (Realitní kancelář RE/MAX Delux zprostředkovává údaje/informace nabyté v dobré víře od vlastníka nemovitosti a z tohoto důvodu nenese odpovědnost za jejich plnost, správnost a přesnost). Pronajímatel si vyhrazuje právo vybrat nájemce na základě jím zvolených kritérií.
Cena:
Cena na vyžádání v kanceláři
Poznámka k ceně:
více info v RK
Upozornění:
Pronajímající si vyhrazuje právo vybrat nájemce na základě jím zvolených kritérií.
Zuzana Patáková
RE/MAX Delux
Křenová 538/22
Brno, 60200
Česká republika
Tel. na makléře: +420 606 702 643
Tel. do kanceláře: +420 602 703 897
E-mail: zuzana.patakova@re-max.cz

Potřebujete poradit/máte zájem o prohlídku?

* – toto pole je nutné vyplnit

Podrobné informace

Číslo zakázky:
ID 268-NP03013
Typ nemovitosti:
Komerční prostory
Druh prostor:
Obchodní
Číslo podlaží:
1
Počet podlaží v objektu:
3
Plocha kanceláří:
208 m²
Druh objektu:
Smíšená
Stav objektu:
Po rekonstrukci
K nastěhování:
1. 5. 2025
Doprava:
Vlak, Dálnice, Silnice, Autobus
Elektřina:
230 V
Odpad:
Kanalizace
Celková plocha:
208 m²
Počet parkovacích míst:
1
Počet podlaží pod zemí:
1
Typ domu:
Patrový
Umístění objektu:
Centrum obce
Voda:
Dálkový rozvod
Vybavení kanceláří:
Ano
Vybaveno:
Ano
Energetická náročnost budovy:
E