Translate with 
MENU ZAVŘÍT

Pronájem bytu 2+kk v osobním vlastnictví 84 m², Praha 6 - Břevnov (ID 061-NP02928)

ulice Běžecká, Praha 6 – Břevnov mapa

kk
2x
84 m2
2/5
Exkluzivně Pronajato

Pronájem prostorného bytu 75m2, s garážovým stáním

Nabízíme k pronájmu exkluzivní a prostorný byt 2+kk o velikosti 75 m² v jedné z nejvyhledávanějších lokalit Prahy – na Běžecké ulici v Břevnově, Praha 6. Tento světlý a moderní byt, situovaný ve druhém nadzemním podlaží novostavby s bezpečnostním vstupem, je ideálním místem pro ty, kteří hledají pohodlí, klid a zároveň touží po vynikající dostupnosti do centra města.

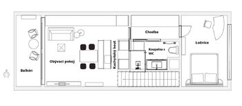
Jedinečné dispoziční řešení ve dvou podlažích
Byt zaujme atypickým uspořádáním – z prostorné vstupní předsíně s vestavěnými skříněmi a botníkem vystoupáte po schodech do moderně zařízeného obývacího pokoje s kuchyňským koutem. Tato společenská zóna je otevřená, vzdušná a perfektně propojená s prostorným balkonem (+9 m²), který je ideálním místem pro ranní kávu, večerní relaxaci či setkání s přáteli. Na obývací pokoj navazuje ložnice orientovaná na východ, která poskytuje klidné zázemí pro kvalitní spánek. Samozřejmostí je koupelna s WC, vybavená moderním nábytkem, elektrickým sušákem a kombinovanou pračkou se sušičkou.

Kompletně zařízený interiér – stačí se nastěhovat
Byt je připravený k okamžitému nastěhování – v kuchyňském koutě najdete dva samostatné bloky s dostatkem úložného prostoru v elegantní bílé barvě, samozřejmostí jsou veškeré potřebné spotřebiče, jídelní stůl a židle. Obývací pokoj disponuje sedací soupravou, konferenčním stolkem a televizním stolkem, přičemž zajímavostí je vkusně skryté rezervní dvoulůžko ve stěně, ideální například pro návštěvy. V ložnici je pohodlná manželská postel, noční stolky a praktický psací stůl. Kvalitní dřevěné podlahy v obytných místnostech podtrhují pocit domova, v koupelně je položena dlažba. Interiérové dveře jsou z dýhy, okna plastová s vnějšími žaluziemi nebo roletami pro maximální komfort.

Maximální uživatelské pohodlí
Součástí pronájmu je také vlastní garážové stání (13 m²) v bezpečných vnitřních prostorách domu, což Vám zajistí naprostý klid ohledně parkování v jakoukoli denní i noční dobu. K bytu náleží i velký, samostatný sklep (+9 m²) – navazující na garážové stání, ideální pro uskladnění sportovního vybavení, sezónních věcí či čehokoli, co potřebujete mít po ruce, ale ne přímo v bytě.

Lokalita plná zeleně, sportu i klidu
Břevnov je vyhlášený svou atmosférou, spojením klidu, zeleně a zároveň výborné občanské vybavenosti. V těsné blízkosti se nachází sportovní tréninkové areály, parky, oblíbený Petřín je jen kousek pěšky – ideální místo pro aktivní odpočinek i příjemné procházky. Dům i jeho okolí nabízí maximální soukromí a pohodu. Navíc se pyšní skvělou dopravní dostupností do centra Prahy i na letiště.

Byt je ideální pro jednotlivce a páry, kteří ocení kvalitní bydlení v moderním domě s výjimečnými službami.

Pokud hledáte domov, který nabízí nejen prostor, komfort a moderní vybavení, ale i atmosféru bezpečí a klidu v jedné z nejatraktivnějších částí Prahy – neváhejte nás kontaktovat. Rádi Vás provedeme bytem a zodpovíme veškeré dotazy. Tento byt je připraven splnit Vaše představy o dokonalém bydlení!
Cena:
Pronajato
Poznámka k ceně:
nájem + 6 tis Kč měsíčně za služby + el. energie a WiFi; + vratná kauce 50 tis. Kč + poplatek RK
Upozornění:
Pronajímající si vyhrazuje právo vybrat nájemce na základě jím zvolených kritérií.
Ing. Petr Hloušek
RE/MAX 4 You II
Antala Staška 511/40
Praha 4 - Krč, 14000
Česká republika
Tel. na makléře: +420 736 506 838
Tel. do kanceláře: +420 733 152 553
E-mail: petr.hlousek@re-max.cz

Potřebujete poradit/máte zájem o prohlídku?

* – toto pole je nutné vyplnit

Podrobné informace

Číslo zakázky:
ID 061-NP02928
Dispozice:
2+kk
Číslo podlaží:
2
Počet podlaží v objektu:
5
Podlahová plocha:
84 m²
Druh objektu:
Smíšená
Stav objektu:
Velmi dobrý
Vlastnictví:
Osobní
Typ nemovitosti:
Byty
Bezbariérový byt:
Ano
Charakter okolní zástavby:
Obytná
K nastěhování:
1. 8. 2023
Doprava:
Dálnice, Silnice, MHD, Autobus
Elektřina:
230 V
Garáž:
Ano
Odpad:
Kanalizace
Ostatní rozvody:
Kabelové rozvody
Užitná plocha:
75 m²
Počet podlaží pod zemí:
1
Telekomunikace:
Internet
Umístění objektu:
Klidná část obce
Voda:
Dálkový rozvod
Vybaveno:
Ano
Výtah:
Ano
Energetická náročnost budovy:
B
Měrná vypočtená roční spotřeba energie v kWh/m²/rok:
85