Translate with 
MENU ZAVŘÍT

Pronájem bytu 4+kk v osobním vlastnictví 109 m², České Budějovice (ID 111-NP08589)

ulice U Bašty, České Budějovice – část obce České Budějovice 2 mapa

34 000 Kč ( za měsíc)
CÚsporná

kk
4x
109 m2
1/2
Exkluzivně

Podnájem nadstandardního nového bytu 4+kk se zahradou a parkovacími místy

Nabízím k podnájmu nadstandardní nový byt 4+kk (109 m2) se zahradou (335 m2) a dvěma parkovacími místy. Bytová jednotka se nachází v 1.NP novostavby Viladomu Leona, v ulici U Bašty 2927, ve výjimečné lokalitě, kde jste jen několik stovek metrů od obchodní zóny Globus a přitom v naprostém klidu s výhledem na Vrbenské rybníky. Byt má samostatný vstup. Ve výhradním užívaní nájemce je velká zahrada obklopující dům. Do výhradního užívání patří i 2 parkovací místa na parkovací ploše před domem.

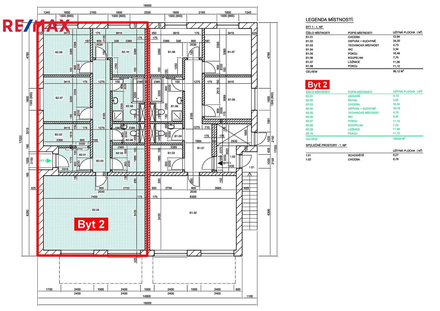
Dispozičně je byt řešen jako 4+kk, kde najdete částečně vybavený obývací pokoj s kvalitní, kompletně vybavenou, kuchyňskou linkou a vstupem na prostornou terasu, tři samostatné pokoje, prostornou komoru, technickou místnost s přípojkou na pračku, koupelnu s WC, vanou i sprchovým koutem a druhé samostatné WC. Půdorys a výměry místností najdete ve fotogalerii. V celé jednotce jsou na podlaze kvalitní dlažby a lepený vinyl, bezfalcové vnitřní dveře Sapeli a LED osvětlení. Okna plastová s trojsklem.

Ohřev teplé vody je zajištěn elektrickým bojlerem umístěným v technické místnosti. O tepelnou pohodu v chladných dnech se starají elektrické podlahové topné folie s možností přesné regulace termostaty umístěnými v každé místnosti. V teplých letních dnech oceníte venkovní elektricky ovládané předokenní žaluzie na všech oknech. O příjemné klima po celý rok se postará rekuperace vzduchu.
Bonusem této jednotky je její připojení na samostatnou malou fotovoltaickou elektrárnu (4,1 kWp) instalovanou na střeše objektu, která pomůže budoucímu nájemci výrazně snížit účet za elektřinu.

Pouze pro nekuřáky bez domácích mazlíčků. Podnájemní smlouva minimálně na 1 rok. Nájemné 34 000 Kč + záloha na energie 5 000 Kč, vratná kauce 50 000 Kč. Provize RK 1x měsíční nájem. Pro další informace nebo termín prohlídky kontaktujte makléře.
Cena:
34 000 CZK / za měsíc
Poznámka k ceně:
Upozornění:
Pronajímající si vyhrazuje právo vybrat nájemce na základě jím zvolených kritérií.
Michal Matějovský
RE/MAX Dynamic
Kanovnická 75/4
České Budějovice, 37001
Česká republika
Tel. na makléře: +420 602 550 604
Tel. do kanceláře: +420 725 910 910
E-mail: michal.matejovsky@re-max.cz

Potřebujete poradit/máte zájem o prohlídku?

* – toto pole je nutné vyplnit

Podrobné informace

Číslo zakázky:
ID 111-NP08589
Dispozice:
4+kk
Číslo podlaží:
1
Počet podlaží v objektu:
2
Podlahová plocha:
109 m²
Druh objektu:
Smíšená
Stav objektu:
Novostavba
Vlastnictví:
Osobní
Typ nemovitosti:
Byty
K nastěhování:
14. 11. 2025
Elektřina:
230 V
Odpad:
Kanalizace
Užitná plocha:
109 m²
Plocha zahrady:
335 m²
Počet parkovacích míst:
2
Umístění objektu:
Klidná část obce
Voda:
Dálkový rozvod
Energetická náročnost budovy:
C
Měrná vypočtená roční spotřeba energie v kWh/m²/rok:
91