Translate with 
MENU ZAVŘÍT

Prodej chaty / chalupy 75 m², Osvětimany (ID 163-NP05128)

Osvětimany, okres Uherské Hradiště mapa

2 450 000 Kč ( za nemovitost)
GMimořádně
nehospodárná

2x
75 m2
498 m2
0
Exkluzivně

Prodej chaty s pozemkem v Osvětimanech, 75 m2

Jen jednou se necháte očarovat přírodní a historickou pokladnicí Chřibů a je s vámi konec.
Chřiby neboli Buchlovské hory nepoznáte za den ani za dva.
Hledání všech možných skal, studánek, hradů a hradišť v nevysoké vrchovině na východě Moravy vás příjemně zaměstná na mnoho dalších let.

Nabídka chaty doslova uprostřed chřibských lesů, v katastrálním území Osvětimany.
Ve skutečnosti se chata nachází za obcí Vřesovice - Paseky.
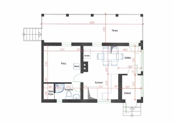
Dispozice přízemí: prostorná vstupní chodba, kuchyňský kout s jídelním posezením, obývací místnost, velká zastřešená terasa, z kuchyně je i vstup do sklepa.
Dispozice podkroví, do kterého se vystoupá po dřevěných schodech: 2 pokoje, balkon.
Na přiloženém půdorysu je navržena nová dispozice přízemí včetně koupelny, která nyní v chatě není.
Technické informace: zděné přízemí, podkroví je montované dřevěné, střecha je z vlnitého plechu (10 let) s parotěsnou fólií a tepelnou izolací, nová přípojka elektřiny (4 roky), rozvody elektřiny (15 let), na střeše jsou solární panely, které je potřeba zprovoznit.
Vytápění je řešeno krbovými kamny, kamny na tuhá paliva a v podkroví přímotopem.
Chata je napojená na elektřinu (240 a 380 V).
Pro vodu na pití a vaření se chodí ke studánce.
Srážková užitková voda se jímá do nádrží.
Je zde možné navrtat i studnu, v okolí je zjištěn dostatek spodních vod.
Předmětem prodeje je také rovinatý pozemek o rozloze 454 m2, který slouží jako zahrada.
Na pozemku stojí dřevěná pergola na posezení a grilování, na ni navazuje zděná kůlna a suché WC, plechová bouda na uložení zahradního nářadí.
Parkovat lze před chatou i na vlastním oploceném pozemku.

Městys Osvětimany má základní občanskou vybavenost: obecní úřad, poštu, obchod a hospodu.
V nejbližší obci Vřesovice je obchod se smíšeným zbožím a krytý bazén.
Okolí je protkáno turistickými a cyklistickými stezkami.
Nedaleko je rybník a osvětimanská přehrada.
V Osvětimanech a na Stupavě jsou lyžařské svahy s vleky.

Finanční služby: vyřešte platbu za svoji nemovitost tam, kde jste ji koupili.
S RX FINANCE nikam jinam pro hypotéku nemusíte.
Zastihnete mě v kyjovské kanceláři Masarykovo náměstí 7 (v průchodu), pravidelně v úterý a čtvrtek.
Cena:
2 450 000 CZK / za nemovitost
Poznámka k ceně:
Kompletní služby
Upozornění:
Prodávající si vyhrazuje právo vybrat kupujícího na základě jím zvolených kritérií.
RX finance

Spočítejte si splátku hypotéky

Na kolik vás vyjde pořízení vlastního bydlení? Zadejte pár informací do naší hypoteční kalkulačky a hned si prohlédněte výsledek.

Kupní cena nemovitosti

2 450 000 Kč

Výše hypotéky

Doba splácení

Vypočítaná měsíční splátka

Úroková sazba 3.6%

260 990 Kč

Hypotéku zařídíme za vás

Ušetřete svůj čas i nervy. Naši makléři zařídí veškeré papírování a dovedou vás až k úspěšnému podpisu smlouvy v bance.

Nechte nám kontakt, náš makléř se v pracovní dny ozve do 24 hodin

* – toto pole je nutné vyplnit
Mgr. Veronika Šimečková
RE/MAX Delta
Panská 397/2
Brno, 60200
Česká republika
Tel. na makléře: +420 723 624 697
Tel. do kanceláře: +420 607 449 860
E-mail: veronika.simeckova@re-max.cz

Potřebujete poradit/máte zájem o prohlídku?

* – toto pole je nutné vyplnit

Podrobné informace

Číslo zakázky:
ID 163-NP05128
Poloha objektu:
Samostatný
Užitná plocha:
75 m²
Plocha parcely:
498 m²
Druh objektu:
Cihlová
Stav objektu:
Velmi dobrý
Typ nemovitosti:
Chaty a rekreační objekty
Charakter okolní zástavby:
Rekreační
Elektřina:
230 V, 400 V
Celková plocha:
75 m²
Plocha zahrady:
454 m²
Zastavěná plocha:
44 m²
Počet parkovacích míst:
2
Typ domu:
Přízemní
Umístění objektu:
Polosamota
Vybaveno:
Ano
Energetická náročnost budovy:
G