Translate with 
MENU ZAVŘÍT

Prodej domu 300 m², Cítoliby (ID 023-NP08661)

ulice Lounská, Cítoliby mapa

8 750 000 Kč ( za nemovitost)
GMimořádně
nehospodárná

5+
300 m2
961 m2
2
Exkluzivně

Prodej prostorného domu s investičním potenciálem – až 7 bytů, Cítoliby

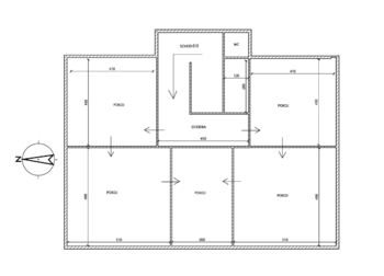
Nabízíme k prodeji prostorný rodinný dům o celkové ploše 300 m² s rozlehlým pozemkem 961 m², který se nachází v malebném městysi Cítoliby, jen 3 km od Loun. Tento dům nabízí jedinečnou kombinaci komfortního bydlení a investičního potenciálu – ideální pro ty, kdo hledají prostor pro vícegenerační bydlení nebo zajímavou investiční příležitost.

Hlavní budova umožňuje vytvořit 4 bytové jednotky, půdní prostory nabízí možnost realizace 2 dalších bytů, a na zahradě stojí samostatná stavba, kterou lze přeměnit na 1+1, čímž vzniká celkem až 7 jednotek. Takto se otevírá prostor pro rozmanité využití – od pronájmu jednotlivých bytů až po moderní vícegenerační bydlení.

Dům je vybaven vytápěním na plyn a kotlem na tuhá paliva, voda je z vodovodu a na pozemku je i užitková studna. Elektřina a kanalizace. Součástí pozemku je rovněž stodola a dílna, které nabízejí další možnosti využití.

Nemovitost se nachází v lokalitě s dobrou dopravní dostupností do Loun a okolních měst, což zajišťuje pohodlné spojení do regionu. Dům nabízí neomezené možnosti úprav a realizace vlastních nápadů, ať už jde o bydlení, pronájem, nebo kombinaci obojího.

Tento dům je skutečnou příležitostí pro investory i rodiny, kteří chtějí propojit komfort, prostor a strategickou polohu.
Cena:
8 750 000 CZK / za nemovitost
Poznámka k ceně:
Upozornění:
Prodávající si vyhrazuje právo vybrat kupujícího na základě jím zvolených kritérií.
RX finance

Spočítejte si splátku hypotéky

Na kolik vás vyjde pořízení vlastního bydlení? Zadejte pár informací do naší hypoteční kalkulačky a hned si prohlédněte výsledek.

Kupní cena nemovitosti

8 750 000 Kč

Výše hypotéky

Doba splácení

Vypočítaná měsíční splátka

Úroková sazba 3.6%

260 990 Kč

Hypotéku zařídíme za vás

Ušetřete svůj čas i nervy. Naši makléři zařídí veškeré papírování a dovedou vás až k úspěšnému podpisu smlouvy v bance.

Nechte nám kontakt, náš makléř se v pracovní dny ozve do 24 hodin

* – toto pole je nutné vyplnit
Radka Jančárová
RE/MAX G8 Reality 2
Kleinerova 1466
Kladno, 27201
Česká republika
Tel. na makléře: +420 773 943 733
Tel. do kanceláře: +420 312 240 239
E-mail: radka.jancarova@re-max.cz

Potřebujete poradit/máte zájem o prohlídku?

* – toto pole je nutné vyplnit

Podrobné informace

Číslo zakázky:
ID 023-NP08661
Poloha objektu:
Řadový
Počet podlaží v objektu:
2
Užitná plocha:
300 m²
Plocha parcely:
961 m²
Druh objektu:
Smíšená
Stav objektu:
Dobrý
Typ nemovitosti:
Domy a vily
Charakter okolní zástavby:
Obytná
K nastěhování:
30. 1. 2026
Garáž:
Ano
Odpad:
Kanalizace
Zastavěná plocha:
188 m²
Plyn:
Plynovod
Typ domu:
Patrový
Umístění objektu:
Centrum obce
Voda:
Dálkový rozvod
Energetická náročnost budovy:
G