Translate with 
MENU ZAVŘÍT

Prodej domu 360 m², Zájezd (ID 318-NP00121)

Zájezd, okres Kladno mapa

Cena na vyžádání v kanceláři
GMimořádně
nehospodárná

5+
360 m2
1700 m2
3
Exkluzivně

Zajímavá cena k jednání - Vícegenerační rodinný dům přes 300 m2, Zájezd u Buštěhradu

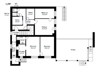
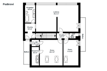
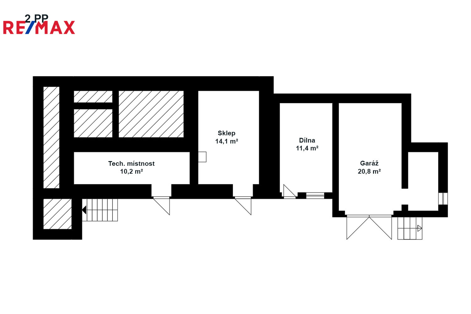
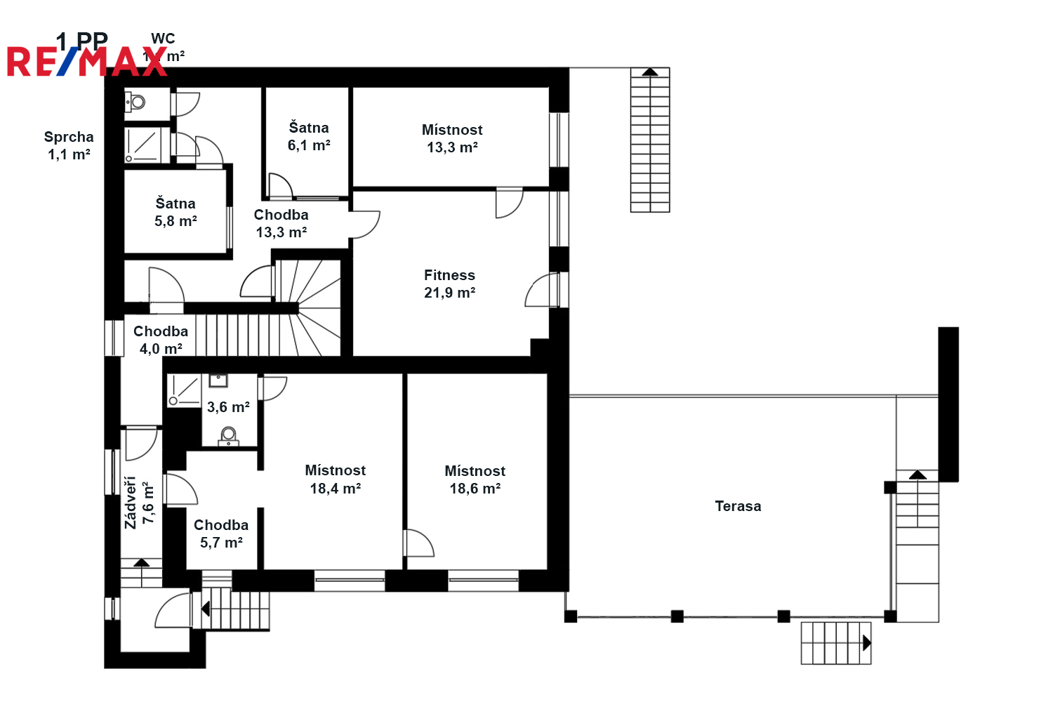
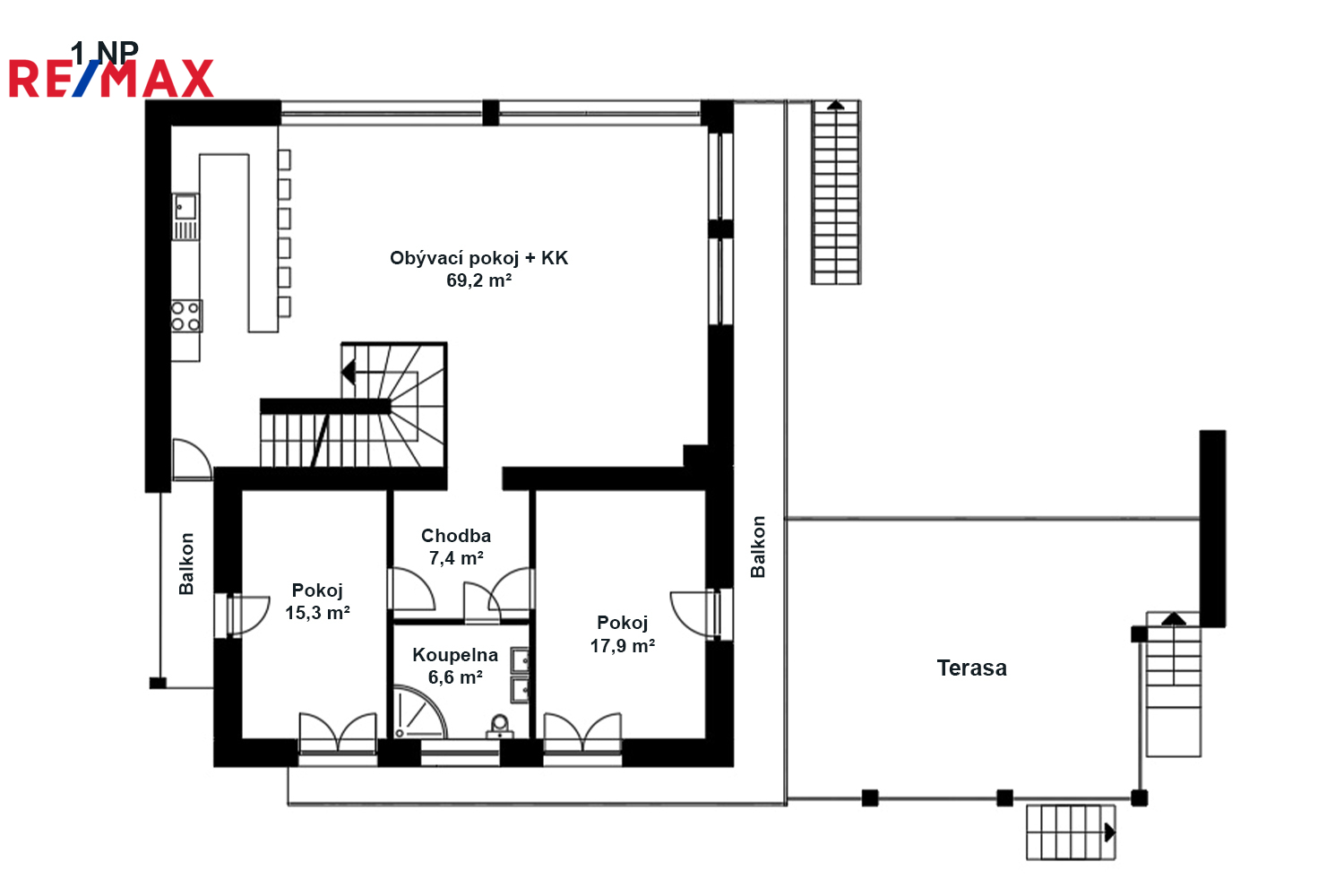
Zajímavá cena - Nabízím k prodeji veliký rodinný dům v Zájezdu u Buštěhradu. Třípatrový dům s půdorysem 140 m2 těsně před dokončením. Ve spodním patře jsou 3 menší byty s technickým zázemím domu. V prvním patře je velkorysý obývací pokoj s kuchyní, 2 větší pokoje, koupelna, 2 balkóny a vstup na terasu.
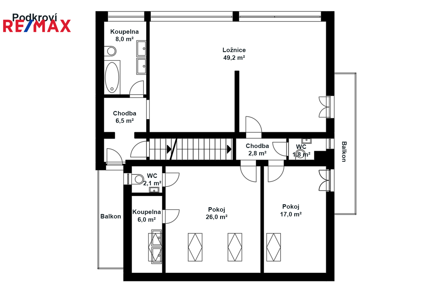
Ve druhém patře je prostorná pracovna, ložnice, 2 pokoje, 2 koupelny, 2 balkóny. Ve štítu je půda, kde je možné vybudovat další 2 místnosti, případně prostorný ateliér.
Celý dům má železobetonové základy a konstrukci. Majitel má veškerou fotodokumentaci stavby domu.
Dům je vhodný pro vícegenerační rodinu, nebo je možné využít i jako penzion.
Lokalita Zájezd leží 10 minut od letiště nebo Kladna, 15 minut od Prahy s přímým napojením na dálnici D7. V Zájezdu je menší ZOO s přátelskou, rodinnou atmosférou. ZOO je na okraji obce s vlastním parkovištěm mimo obec, takže neruší klid pro bydlení.
V obci Zájezd je obecní úřad, hostinec, kaple Rosa Mystica, sportovní hřiště a dětské hřiště.
V okolí jsou turistické zajímavosti, především ZOO park Zájezd, hrad Okoř, poutní stezky a další cíle pro pěší, cyklistické, ale i moto toulky.
Informace o ceně v realitní kanceláři.
Pro prohlídku a více informací mě kontaktujte na 739 899 990.
Cena:
Cena na vyžádání v kanceláři
Poznámka k ceně:
Cena k jednání u RK
Upozornění:
Prodávající si vyhrazuje právo vybrat kupujícího na základě jím zvolených kritérií.
Lukáš Hrubý
RE/MAX All Up
Pražská 454
Lety u Dobřichovic, 25229
Česká republika
Tel. na makléře: +420 739 899 990
Tel. do kanceláře: +420 739 899 990
E-mail: lukas.hruby@re-max.cz

Potřebujete poradit/máte zájem o prohlídku?

* – toto pole je nutné vyplnit

Podrobné informace

Číslo zakázky:
ID 318-NP00121
Poloha objektu:
Samostatný
Počet podlaží v objektu:
3
Užitná plocha:
360 m²
Plocha parcely:
1 700 m²
Druh objektu:
Smíšená
Stav objektu:
Velmi dobrý
Typ nemovitosti:
Domy a vily
Charakter okolní zástavby:
Obytná
K nastěhování:
1. 9. 2025
Doprava:
Silnice, Autobus
Elektřina:
230 V, 400 V
Odpad:
Septik
Plocha zahrady:
1 200 m²
Zastavěná plocha:
139 m²
Počet parkovacích míst:
2
Typ domu:
Patrový
Umístění objektu:
Klidná část obce
Voda:
Dálkový rozvod
Vybaveno:
Ano
Energetická náročnost budovy:
G