Translate with 
MENU ZAVŘÍT

Pronájem bytu 2+kk v osobním vlastnictví 58 m², Praha 10 - Horní Měcholupy (ID 335-NP00129)

ulice Mantovská, Praha 10 – Horní Měcholupy mapa

24 000 Kč ( za měsíc)
BVelmi
úsporná

kk
2x
58 m2
4/6
Exkluzivně

Moderní 2+kk s nízkými náklady a parkováním

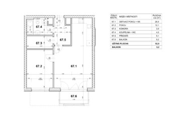
K dlouhodobému pronájmu nabízíme 2+kk o výměře 52m² v Javorové čtvrti. Dům je tichý, klidný, spořádaný a takové hledáme i nájemníky do tohoto s láskou vybaveného bytu!

Vybavení: větší kusy nábytku zůstávají (vestavné skříně, postel), ostatní na domluvě – stůl, gauč, poličky, stolek ad. Kvalitní kuchyně ze studia Hanák s vestavnými spotřebiči Electrolux je krásná! Obývák je prodloužen balkonem s posezením (5,2m²), orientace na západ, předokenní rolety. Skvělý úložný prostor poskytuje komora na chodbě, koupelna je spojena s wc a je vybavena vanou.

Kvalitní výstavba od Central Group v nízkoenergetickém standardu, který zaručuje minimální náklady na vytápění, k bytu náleží parkovací stání ve společných garážích pod domem.

V nejbližším okolí se nachází obchodní centrum Retail park, zastávka MHD a na nádraží dojdete za 15min, vlaky směrem Hlavní nádraží (17min), Benešov u Prahy. Tanzania Park, Krtkův svět, bruslení, restaurace, skate park, nespočet hřišť (jedno hned před domem), obchody a služby všeho druhu, kopec přírody za domem… = vítejte v Horních Měcholupech!

Přednost mají zájemci o dlouhodobý pronájem v horizontu (desítek) let, nekuřáci, bez pejsků. Volné od 1.10.

Cena: 24.000,- nájemné měsíčně + 3.000,- zálohy na poplatky (přeplatky dle vyúčtování) + elektrická energie. Kauce dva nájmy, provize RK.
Cena:
24 000 CZK / za měsíc
Poznámka k ceně:
Upozornění:
Pronajímající si vyhrazuje právo vybrat nájemce na základě jím zvolených kritérií.
Zuzana Havelková
RE/MAX Central
Záběhlická 3156/65
Praha 10, 10600
Česká republika
Tel. na makléře: +420 737 354 544
Tel. do kanceláře: +420 724 601 255
E-mail: zuzana.havelkova@re-max.cz

Potřebujete poradit/máte zájem o prohlídku?

* – toto pole je nutné vyplnit

Podrobné informace

Číslo zakázky:
ID 335-NP00129
Dispozice:
2+kk
Číslo podlaží:
4
Počet podlaží v objektu:
6
Podlahová plocha:
58 m²
Druh objektu:
Cihlová
Stav objektu:
Velmi dobrý
Vlastnictví:
Osobní
Typ nemovitosti:
Byty
Charakter okolní zástavby:
Obytná
K nastěhování:
1. 10. 2025
Doprava:
Vlak, Silnice, MHD, Autobus
Garáž:
Ano
Užitná plocha:
53 m²
Telekomunikace:
Internet
Umístění objektu:
Sídliště
Vybaveno:
Ano
Výtah:
Ano
Energetická náročnost budovy:
B