Translate with 
MENU ZAVŘÍT

Pronájem výrobních prostor 6688 m², Týn nad Vltavou (ID 111-NP08574)

Týn nad Vltavou, okres České Budějovice mapa

100 Kč ( m²/měsíc)
AMimořádně
úsporná

6688 m2
Exkluzivně

Skladovací a výrobní prostory k pronájmu, Týn nad Vltavou

Exkluzivně nabízíme k pronájmu nové, moderní skladovací a výrobní prostory ve vyhrazené části průmyslové výrobní haly v Týně nad Vltavou. Součástí pronájmu je 5 kanceláří (každá o velikosti 30m2), společná kuchyňka a zasedací místnost (o velikosti 90m2). K dispozici je 40 parkovacích míst.
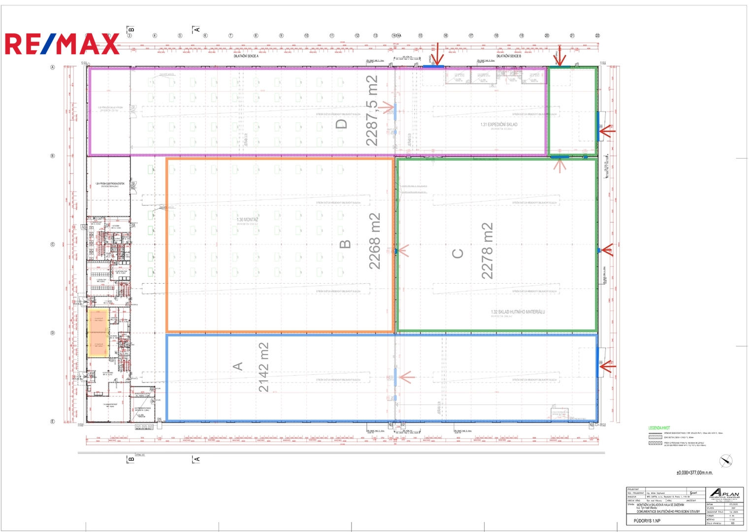
Celková plocha prostor k pronájmu činí 6.688 m2. Viz přiložený plánek.
Je rovněž možné pronajmout pouze část A (o velikosti 2.142m2) nebo části B+C (o velikosti 4.546m2) dle přiloženého plánku.
Prostory jsou protipožární stěnou rozdělené na 2 části.
Prostory mají samostatný vjezd pro nákladní a kamionovou dopravu a samostatný vchod pro personál. K dispozici je také společné sociální zařízení pro celou budovu.
Budova je vytápěna a klimatizována, je vhodná pro výrobní či skladové účely, pro uskladnění materiálu, strojů. Důkladná izolace a stavební materiály udržují konstantní teplotu a vlhkost, objekt splňuje požární normy.
Budova je uzamykatelná a přístup ke vjezdovým vratům oplocený pro zvýšenou ochranu.
Budova se nachází v průmyslové zóně na okraji obce Týn nad Vltavou - Malá Strana, s dobrou dostupností do centra Týna nad Vltavou i do okolních měst jakou jsou Bechyně, Soběslav, Vodňany, Písek, České Budějovice a Veselí nad Lužnicí, kde se nachází i nájezd na dálnici D3.
Měsíční nájemné činí 100 Kč/m2/měsíc. K uvedenému nájemnému je nutno připočítat DPH v zákonné výši.
Měsíční zálohy na služby činí 11 Kč/m2/měsíc.
Pronajímatel požaduje vratnou kauci ve výši 1 měsíčního nájmu.

Prostory o velikosti 6.688 m2 jsou k dispozici od 01.06.2026.
Informace a možnosti prohlídek žádejte u makléře zakázky.
Cena:
100 CZK / m2/měsíc
Poznámka k ceně:
Upozornění:
Pronajímající si vyhrazuje právo vybrat nájemce na základě jím zvolených kritérií.
Ing. Karel Exl
RE/MAX Dynamic
Kanovnická 75/4
České Budějovice, 37001
Česká republika
Tel. na makléře: +420 724 832 802
Tel. do kanceláře: +420 725 910 910
E-mail: karel.exl@re-max.cz

Potřebujete poradit/máte zájem o prohlídku?

* – toto pole je nutné vyplnit

Podrobné informace

Číslo zakázky:
ID 111-NP08574
Typ nemovitosti:
Komerční prostory
Druh prostor:
Výrobní
Plocha kanceláří:
6 688 m²
Druh objektu:
Montovaná
Stav objektu:
Velmi dobrý
Charakter okolní zástavby:
Průmyslová
K nastěhování:
1. 6. 2026
Celková plocha:
6 688 m²
Počet kanceláří:
5
Počet parkovacích míst:
40
Typ domu:
Přízemní
Umístění objektu:
Okraj obce
Vybavení kanceláří:
Ano
Vybaveno:
Ano
Energetická náročnost budovy:
A