Translate with 
MENU ZAVŘÍT

Prodej pozemku 1582 m², Kladno (ID 023-NP08651)

ulice Klikorkova, Kladno – část obce mapa

8 900 000 Kč ( za nemovitost)

1582 m2
Exkluzivně

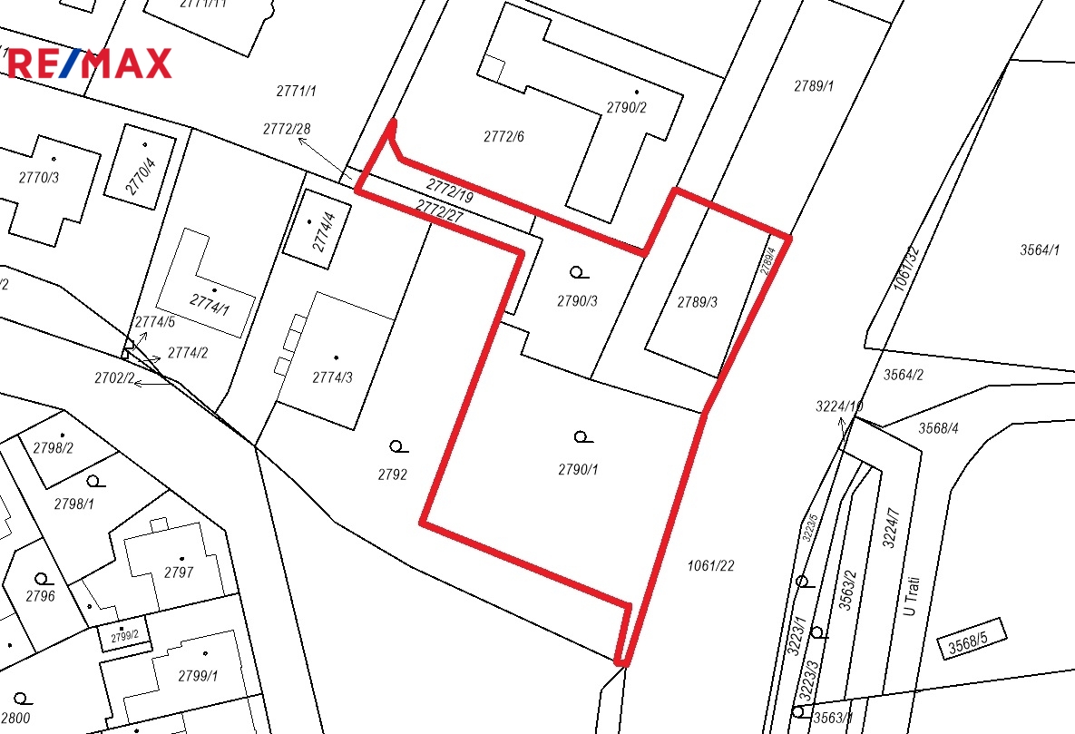
Prodej pozemků s celkovou výměrou 1.582 m2, Kladno, Bresson, ul. Klikorkova.

Prodej souboru šesti pozemků s celkovou výměrou 1.582 m2, Kladno, Bresson, ul. Klikorkova.

Dva pozemky s celkovou výměrou 1.160 m2 jsou územní plánem určené k výstavbě rodinných domů a územně plánovací informace ukládá regulativ zastavěnosti 35% a max. 2 podlaží + podkroví.
Dva pozemky s celkovou výměrou 171 m2 jsou územním plánem vedené "veřejné prostranství"- příjezdová komunikace.
Dva pozemky s celkovu výměrou 251 m2 jsou územním plánem vedené "zeleň ochranná a izolační"- zahrada. Pozemky jsou v zástavbě rodinných domů.

Inženýrské sítě: elektřina bude připojena v průběhu října 2025, přípojka vody s vodoměrem a kanalizace je již na pozemku.

Lokalita Kladno - Bresson je klidná, vilová čtvrť s výbornou dostupností centra Kladna a zároveň v blízkosti lesa a cyklostezek. Jedná se o rovinatý pozemek.

Veškerá občanská vybavenost (mateřská škola, základní škola, dětské hřiště, pošta, nemocnice, lékárna, restaurace, supermarket, sportovní areály - hokej, fotbal, tenis, aquapark).

Možnost financování hypoteční úvěrem, který vám v případě zájmu vyřídíme v rámci našich služeb.

Těším se na Vás při prohlídce...
Cena:
8 900 000 CZK / za nemovitost
Poznámka k ceně:
kupní cena včetně právního servisu, advokátní úschovy a odměny RK
Upozornění:
Prodávající si vyhrazuje právo vybrat kupujícího na základě jím zvolených kritérií.
RX finance

Spočítejte si splátku hypotéky

Na kolik vás vyjde pořízení vlastního bydlení? Zadejte pár informací do naší hypoteční kalkulačky a hned si prohlédněte výsledek.

Kupní cena nemovitosti

8 900 000 Kč

Výše hypotéky

Doba splácení

Vypočítaná měsíční splátka

Úroková sazba 3.6%

260 990 Kč

Hypotéku zařídíme za vás

Ušetřete svůj čas i nervy. Naši makléři zařídí veškeré papírování a dovedou vás až k úspěšnému podpisu smlouvy v bance.

Nechte nám kontakt, náš makléř se v pracovní dny ozve do 24 hodin

* – toto pole je nutné vyplnit
Lukáš Hajník
RE/MAX G8 Reality 2
Kleinerova 1466
Kladno, 27201
Česká republika
Tel. na makléře: +420 731 618 477
Tel. do kanceláře: +420 312 240 239
E-mail: lukas.hajnik@re-max.cz

Potřebujete poradit/máte zájem o prohlídku?

* – toto pole je nutné vyplnit

Podrobné informace

Číslo zakázky:
ID 023-NP08651
Druh pozemku:
Pro bydlení
Celková plocha:
1 582 m²
Inženýrské sítě:
Vodovod, Kanalizace, Elektřina
Typ nemovitosti:
Pozemky
K nastěhování:
31. 8. 2022
Doprava:
Vlak, Dálnice, Silnice, MHD, Autobus
Občanská vybavenost:
Škola, Školka, Zdravotnická zařízení, Pošta, Supermarket, Kompletní síť obchodů a služeb
Umístění objektu:
Klidná část obce