Translate with 
MENU ZAVŘÍT

Prodej domu 120 m², Libomyšl (ID 273-NP04309)

Libomyšl, okres Beroun mapa

5 890 000 Kč ( za nemovitost)
GMimořádně
nehospodárná

3x
120 m2
1921 m2
1
Exkluzivně

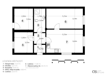
Rodinný dům 120 m2, na pozemku 1921 m2

Nabízíme rodinný dům s velkým potenciálem jen 25 minut od Prahy.
V klidné obci Libomyšl na vás čeká dům k celkové rekonstrukci, situovaný na prostorném pozemku o výměře 1921 m², plném ovocných stromů a zeleně.

Nemovitost je ideální volbou pro mladou rodinu hledající klidné bydlení nebo pro zručného stavebníka, který ocení potenciál této nabídky. Na pozemku se nachází kůlna, kterou lze přestavět na garáž nebo menší dům pro hosty, dále sklep a studna s dostatečným množstvím vody pro zahradní využití.

Dům je napojen na vodovodní řad. Elektřina je původní, vytápění zajišťují kamna, odpad je septik/jímka. Nemovitost byla doposud využívána jako chalupa, nicméně je zkolaudována jako rodinný dům a má přidělené číslo popisné.

V obci a jejím okolí najdete školu, poštu, fotbalové i dětské hřiště. Nedaleká Chodouň je známá plánovaným rozšířením Levandulového údolí, které brzy nabídne okouzlující výhledy na rozkvetlá pole.

Dům je bez právních i faktických vad, což umožňuje bezproblémové financování hypotékou.
Budu se na Vás těšit na prohlídce.
Cena:
5 890 000 CZK / za nemovitost
Poznámka k ceně:
Upozornění:
Prodávající si vyhrazuje právo vybrat kupujícího na základě jím zvolených kritérií.
RX finance

Spočítejte si splátku hypotéky

Na kolik vás vyjde pořízení vlastního bydlení? Zadejte pár informací do naší hypoteční kalkulačky a hned si prohlédněte výsledek.

Kupní cena nemovitosti

5 890 000 Kč

Výše hypotéky

Doba splácení

Vypočítaná měsíční splátka

Úroková sazba 3.6%

260 990 Kč

Hypotéku zařídíme za vás

Ušetřete svůj čas i nervy. Naši makléři zařídí veškeré papírování a dovedou vás až k úspěšnému podpisu smlouvy v bance.

Nechte nám kontakt, náš makléř se v pracovní dny ozve do 24 hodin

* – toto pole je nutné vyplnit
Bajtik Toktobajev
RE/MAX Partner
Řeporyjské náměstí 16
Praha 5 - Řeporyje, 15500
Česká republika
Tel. na makléře: +420 773 953 231
Tel. do kanceláře: +420 800 434 434
E-mail: bajtik.toktobajev@re-max.cz

Potřebujete poradit/máte zájem o prohlídku?

* – toto pole je nutné vyplnit

Podrobné informace

Číslo zakázky:
ID 273-NP04309
Poloha objektu:
Řadový
Počet podlaží v objektu:
1
Užitná plocha:
120 m²
Plocha parcely:
1 921 m²
Druh objektu:
Cihlová
Stav objektu:
Velmi dobrý
Typ nemovitosti:
Domy a vily
Bezbariérový byt:
Ano
Doprava:
Vlak, Dálnice, Silnice, MHD, Autobus
Elektřina:
230 V
Odpad:
Septik
Ostatní rozvody:
Satelit
Zastavěná plocha:
96 m²
Telekomunikace:
Telefon, Internet
Typ domu:
Přízemní
Umístění objektu:
Klidná část obce
Voda:
Dálkový rozvod
Energetická náročnost budovy:
G