Translate with 
MENU ZAVŘÍT

Prodej domu 170 m², Mimoň (ID 061-NP03036)

Mimoň – část obce Mimoň IV mapa

4 500 000 Kč ( za nemovitost)
GMimořádně
nehospodárná

5+
170 m2
499 m2
3
Exkluzivně Zlevněno

Stylový rodinný dům s panoramatickým výhledem

Nabízíme k prodeji prostorný stylový řadový dům z 18. století s vlastním pozemkem o výměře 499 m², který se nachází v klidné části města Mimoň. Nemovitost nabízí panoramatický výhled na zříceninu hradu Ralsko a v blízkosti severní hranice města navazuje Chráněná krajinná oblast Kokořínsko.

Dům prošel rozsáhlou rekonstrukcí a je připraven k dokončení podle představ nového majitele. Aktuální dispozice zahrnuje tři podlaží a menší sklepní prostor.

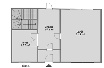
V přízemí se nachází prostorná garáž se dvěma vraty, která umožňují pohodlný průjezd na zahradu umístěnou za domem. Dále je zde rozlehlá vstupní hala, samostatný pokoj a praktický úložný prostor pod schodištěm.

První patro tvoří otevřený a vzdušný obytný prostor s moderní kuchyní vybavenou vestavěnými spotřebiči a samostatným velkorysým kuchyňským ostrůvkem. Na kuchyň navazuje jídelna a obývací pokoj, kde je umístěna jedna ze dvou klimatizačních jednotek. Součástí patra je i samostatný pokoj, který lze využít jako ložnici, dětský pokoj či pracovnu.

Ve druhém patře se nachází odpočinková zóna, technická místnost s pračkou, sušičkou a umyvadlem, prostor pro šatnu, druhá klimatizační jednotka a prostorná ložnice s přímým vstupem do moderní koupelny vybavené sprchovým koutem, umyvadlem a toaletou.

Za domem se rozprostírá udržovaná zahrada s několika vzrostlými stromy, bazénem, ovocnými keři, výběhem pro drobná zvířata a zastřešenou venkovní terasou. Velkou výhodou je přímý přístup k Panenskému potoku na konci pozemku, odkud lze odebírat vodu pro závlahu zahrady.

V případě zájmu o více informací nebo sjednání prohlídky mě neváhejte kontaktovat. Budu se těšit na viděnou.

PENB - se zpracovává.
Cena:
4 500 000 CZK / za nemovitost
Poznámka k ceně:
Včetně kompletního právního servisu, advokátní úschovy, vkladu vlastnického práva a provize RK.
Upozornění:
Prodávající si vyhrazuje právo vybrat kupujícího na základě jím zvolených kritérií.
RX finance

Spočítejte si splátku hypotéky

Na kolik vás vyjde pořízení vlastního bydlení? Zadejte pár informací do naší hypoteční kalkulačky a hned si prohlédněte výsledek.

Kupní cena nemovitosti

4 500 000 Kč

Výše hypotéky

Doba splácení

Vypočítaná měsíční splátka

Úroková sazba 3.6%

260 990 Kč

Hypotéku zařídíme za vás

Ušetřete svůj čas i nervy. Naši makléři zařídí veškeré papírování a dovedou vás až k úspěšnému podpisu smlouvy v bance.

Nechte nám kontakt, náš makléř se v pracovní dny ozve do 24 hodin

* – toto pole je nutné vyplnit
Ing. Martin Bejvančický
RE/MAX 4 You II
Antala Staška 511/40
Praha 4 - Krč, 14000
Česká republika
Tel. na makléře: +420 607 900 550
Tel. do kanceláře: +420 733 152 553
E-mail: martin.bejvancicky@re-max.cz

Potřebujete poradit/máte zájem o prohlídku?

* – toto pole je nutné vyplnit

Podrobné informace

Číslo zakázky:
ID 061-NP03036
Poloha objektu:
Řadový
Počet podlaží v objektu:
3
Užitná plocha:
170 m²
Plocha parcely:
499 m²
Druh objektu:
Smíšená
Stav objektu:
Velmi dobrý
Typ nemovitosti:
Domy a vily
Charakter okolní zástavby:
Obytná
Doprava:
Vlak, Silnice, Autobus
Elektřina:
230 V
Garáž:
Ano
Odpad:
Kanalizace
Plocha zahrady:
329 m²
Zastavěná plocha:
166 m²
Typ domu:
Patrový
Umístění objektu:
Klidná část obce
Voda:
Dálkový rozvod
Vybaveno:
Ano
Energetická náročnost budovy:
G