Translate with 
MENU ZAVŘÍT

Prodej bytu 1+1 v osobním vlastnictví 34 m², Hodonín (ID 268-NP03306)

ulice Slunečná, Hodonín mapa

2 440 000 Kč ( za nemovitost)
GMimořádně
nehospodárná

1x
1x
34 m2
4/9
Exkluzivně

Byt 1+1, 33,6m2 ul. Slunečná Hodonín

Ve výhradním zastoupení majitele nabízím k prodeji bytovou jednotku 1+1 o výměře 33,6 m², která se nachází ve 4. nadzemním podlaží osmipodlažního domu s výtahem na ulici Slunečná v Hodoníně.
Byt je v původním stavu a nabízí možnost rekonstrukce dle vlastních představ – ideální jako startovací bydlení nebo chytrá investice.

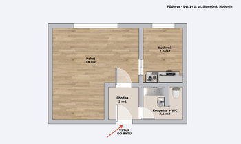
Dispozice dle prohlášení vlastníka:
• Chodba: 3,0 m²
• Koupelna: 2,1 m²
• Kuchyně: 7,6 m²
• Pokoj: 18,0 m²
• WC: 1,0 m²
• Sklep: 1,9 m²
Celková plocha bytu: 33,6 m²

Byt je orientován na východ, takže je příjemně prosluněný ranním světlem.
V domě aktuálně probíhá revitalizace – zateplení fasády.

Měsíční náklady na provoz bytu:
• Příspěvek do fondu oprav: 840 Kč
• Pojištění domu: 12 Kč
• Vodoměry: 48 Kč
• Správa domu: 907 Kč
• Příspěvek předsedy SVJ: 330 Kč
• Úklid společných prostor: 95 Kč
• Elektřina společných prostor: 96 Kč
• Záloha na vodné a stočné: 269 Kč
• Záloha na teplo: 1 263 Kč
• Záloha na teplou vodu: 548 Kč
Celkem služby: 3 541 Kč + elektřina 990 Kč + pojištění 300 Kč

Parkování je možné v blízkosti domu – ve vnitrobloku.
V případě většího počtu zájemců bude nemovitost prodána nejvýhodnější nabídce dle kritérií stanovených majitelem, který si zároveň vyhrazuje právo zvolit kupujícího.
Všechny uvedené údaje mají informativní charakter a nepředstavují nabídku ve smyslu § 1731 nebo § 1732 občanského zákoníku ani veřejný příslib dle § 1733 občanského zákoníku.
Z této nabídky nevzniká právní nárok na uzavření smlouvy.

Cena:
2 440 000 CZK / za nemovitost
Poznámka k ceně:
Upozornění:
Prodávající si vyhrazuje právo vybrat kupujícího na základě jím zvolených kritérií.
RX finance

Spočítejte si splátku hypotéky

Na kolik vás vyjde pořízení vlastního bydlení? Zadejte pár informací do naší hypoteční kalkulačky a hned si prohlédněte výsledek.

Kupní cena nemovitosti

2 440 000 Kč

Výše hypotéky

Doba splácení

Vypočítaná měsíční splátka

Úroková sazba 3.6%

260 990 Kč

Hypotéku zařídíme za vás

Ušetřete svůj čas i nervy. Naši makléři zařídí veškeré papírování a dovedou vás až k úspěšnému podpisu smlouvy v bance.

Nechte nám kontakt, náš makléř se v pracovní dny ozve do 24 hodin

* – toto pole je nutné vyplnit
Lenka Šomanová
RE/MAX Delux
Křenová 538/22
Brno, 60200
Česká republika
Tel. na makléře: +420 603 285 848
Tel. do kanceláře: +420 602 703 897
E-mail: lenka.somanova@re-max.cz

Potřebujete poradit/máte zájem o prohlídku?

* – toto pole je nutné vyplnit

Podrobné informace

Číslo zakázky:
ID 268-NP03306
Dispozice:
1+1
Číslo podlaží:
4
Počet podlaží v objektu:
9
Podlahová plocha:
34 m²
Druh objektu:
Panelová
Stav objektu:
Dobrý
Vlastnictví:
Osobní
Typ nemovitosti:
Byty
K nastěhování:
9. 10. 2025
Odpad:
Kanalizace
Užitná plocha:
34 m²
Zastavěná plocha:
473 m²
Plyn:
Plynovod
Umístění objektu:
Sídliště
Vybaveno:
Ano
Výtah:
Ano
Energetická náročnost budovy:
G