Translate with 
MENU ZAVŘÍT

Prodej bytu 2+1 v osobním vlastnictví 55 m², Mohelnice (ID 349-NP00109)

ulice Ztracená, Mohelnice mapa

2 750 000 Kč ( za nemovitost)
DMéně
úsporná

1x
2x
55 m2
3/4
Exkluzivně Rezervace

Prodej panelového bytu 2+1 ul. Ztracená v Mohelnici

Vážení klienti,

nově vám nabízím bytovou jednotku o dispozici 2+1 po částečné rekonstrukci na ulici Ztracená v Mohelnici.
Byt v osobním vlastnictví se nachází ve 3. nadzemním podlaží (2. patře) z celkem 4 nadzemních podlaží zrekonstruovaného bytového domu.
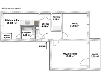
Celková plocha bytu s příslušenstvím je 53 m2, podlahová plocha bytu má výměru necelých 47 m2, sklepní kóje 2,7 m2 a lodžie 3,5 m2. Rozměry jednotlivých místností najdete v přiloženém půdorysu.
V kuchyni je kuchyňská linka, digestoř a plynový sporák s elektrickou troubou. Původní bytové jádro je částečně rekonstruované a je zde vana, umyvadlo a místo na pračku. WC je samostatně. V chodbě je komora a vestavěná skříň. Okna jsou plastová s dvojsklem. Ohřev vody a vytápění je zajištěno dálkově.
K dispozici jsou společné prostory: kolárny, sušárna, mandlovna.
Bytový dům prošel rekonstrukcí stoupaček a v roce 2013 byl zateplen. Další investice plánované v dohledné době nejsou.

Měsíční zálohové platby na 1 osobu byly ve výši: za elektřinu 800,- Kč, za plyn 300,- Kč, měsíční platba za služby pro jednu osobu byly 3 820,- Kč, z čehož fond oprav je 940,- Kč.
Ve fondu oprav je naspořeno cca 1.500.000,-Kč.

Objekt má zpracovaný Průkaz energetické náročnosti budovy (PENB), který jej řadí do kategorie D.

Bytový dům je součástí sídliště, přesto se jedná o klidnější lokalitu. Zastávka MHD je 150 m od domu, stejně jako Penny market a ZŠ na ulici Vodní, mateřská škola je 50 m od bytu. Na náměstí Svobody je to zhruba 500 m.
Město Mohelnice leží v okrese Šumperk, v příjemné dojezdové vzdálenosti 20 min po D35 do krajského města Olomouc. Sídlo zde mají jedni z největších zaměstnavatelů v kraji. Město nabízí ideální zázemí pro rodiny s dětmi, jsou zde 3 základní školy, 2 mateřské školy, několik supermarketů, hobbymarket atd. Najdete zde bohaté kulturní a sportovní vyžití. V blízkém okolí se nachází hrad Bouzov, zámek Úsov, věznice Mírov, město Loštice a její světoznámé tvarůžky. Nedaleké Litovelské Pomoraví láká vodáky a cyklisty.

Pomohu Vám s financováním této nemovitosti.
Zvu vás na prohlídku!
Cena:
2 750 000 CZK / Rezervováno
Poznámka k ceně:
Majitel si vyhrazuje právo prodat nemovitost nejvýhodnější nabídce na základě svých vlastních kritérií.
Upozornění:
Prodávající si vyhrazuje právo vybrat kupujícího na základě jím zvolených kritérií.
RX finance

Spočítejte si splátku hypotéky

Na kolik vás vyjde pořízení vlastního bydlení? Zadejte pár informací do naší hypoteční kalkulačky a hned si prohlédněte výsledek.

Kupní cena nemovitosti

2 750 000 Kč

Výše hypotéky

Doba splácení

Vypočítaná měsíční splátka

Úroková sazba 3.6%

260 990 Kč

Hypotéku zařídíme za vás

Ušetřete svůj čas i nervy. Naši makléři zařídí veškeré papírování a dovedou vás až k úspěšnému podpisu smlouvy v bance.

Nechte nám kontakt, náš makléř se v pracovní dny ozve do 24 hodin

* – toto pole je nutné vyplnit
Ing. Adéla Vaňková
RE/MAX Relations
Staškova 169/69
Mohelnice, 78985
Česká republika
Tel. na makléře: +420 731 305 955
Tel. do kanceláře: +420 731 305 955
E-mail: adela.vankova@re-max.cz

Potřebujete poradit/máte zájem o prohlídku?

* – toto pole je nutné vyplnit

Podrobné informace

Číslo zakázky:
ID 349-NP00109
Dispozice:
2+1
Číslo podlaží:
3
Počet podlaží v objektu:
4
Podlahová plocha:
55 m²
Druh objektu:
Panelová
Stav objektu:
Velmi dobrý
Vlastnictví:
Osobní
Typ nemovitosti:
Byty
K nastěhování:
21. 10. 2025
Doprava:
Vlak, Dálnice, Silnice, MHD, Autobus
Elektřina:
230 V
Odpad:
Kanalizace
Ostatní rozvody:
Kabelová televize
Užitná plocha:
55 m²
Zastavěná plocha:
490 m²
Plyn:
Plynovod
Počet podlaží pod zemí:
1
Telekomunikace:
Internet
Umístění objektu:
Sídliště
Voda:
Dálkový rozvod
Energetická náročnost budovy:
D