Translate with 
MENU ZAVŘÍT

Prodej bytu 2+kk v osobním vlastnictví 97 m², Karlovy Vary (ID 294-NP01649)

ulice Ondřejská, Karlovy Vary mapa

6 200 000 Kč ( za nemovitost)
CÚsporná

kk
2x
97 m2
3/5
Exkluzivně

Luxusní byt v 2kk barokním stylu – elegance a noblesa v každém detailu! Karlovy Vary, ul. Ondřejská

Chcete žít jako na zámku? Tento byt je ideální volbou. Nabízíme k prodeji výjimečný byt, zařízený ve stylu připomínajícím zlatou éru evropských zámků. Tento interiér spojuje bohatě zdobený nábytek, křišťálové lustry a elegantní detaily do jedinečného celku. Nachází se v lázeňské zóně Karlových Varů, na prestižní Ondřejské ulici, v bezprostřední blízkosti Vřídelní kolonády a romantických lázeňských parků.

Vybavení a dispozice:
- Obývací pokoj s designovým zlatým gaučem, ručně vyřezávaným konferenčním stolkem a jídelním koutem s čalouněnými židlemi
- Plně vybavená kuchyně s vestavnými spotřebiči a klasickými bílými skříňkami
- Ložnice jako z pohádky: postel s bohatě zdobeným čelem a baldachýnem, nábytek ve stylu Ludvíka XV., impozantní toaletka a zdobné závěsy
- Podlahy z kvalitní laminátové dřevěné krytiny v teplém dekoru
- Vysoké stropy, štukové lišty, dekorativní sloupy a nástěnné rámy
- Doplňky jako vintage lampa, velké zrcadlo, stylové osvětlení a luxusní textilie

K bytové jednotce náleží samostatná garsonka se sociálním zařízením, vybavená samostatným odběrným místem pro elektřinu i vodu. Spotřeba je tak zcela pod kontrolou. V současné době je jednotka pronajímána, přičemž výnos z nájmu pokrývá veškeré provozní náklady a tvoří pasivní příjem.

Lokalita:
Ondřejská ulice je jednou z nejkrásnějších a nejklidnějších částí lázeňského centra. Dům se nachází jen pár kroků od Vřídla, Mlýnské kolonády a známého Grandhotelu Pupp. Výhled z okna nabízí krásný pohled na pramen Svoboda. Perfektní pro vlastní bydlení, víkendový apartmán i investici do krátkodobých pronájmů.
Cena:
6 200 000 CZK / za nemovitost
Poznámka k ceně:
Upozornění:
Prodávající si vyhrazuje právo vybrat kupujícího na základě jím zvolených kritérií.
RX finance

Spočítejte si splátku hypotéky

Na kolik vás vyjde pořízení vlastního bydlení? Zadejte pár informací do naší hypoteční kalkulačky a hned si prohlédněte výsledek.

Kupní cena nemovitosti

6 200 000 Kč

Výše hypotéky

Doba splácení

Vypočítaná měsíční splátka

Úroková sazba 3.6%

260 990 Kč

Hypotéku zařídíme za vás

Ušetřete svůj čas i nervy. Naši makléři zařídí veškeré papírování a dovedou vás až k úspěšnému podpisu smlouvy v bance.

Nechte nám kontakt, náš makléř se v pracovní dny ozve do 24 hodin

* – toto pole je nutné vyplnit
Alexandr Mizjuk
RE/MAX Glorion
Krymská 1056/5
Karlovy Vary, 36001
Česká republika
Tel. na makléře: +420 776 395 579
Tel. do kanceláře: +420 776 395 579
E-mail: alexandr.mizjuk@re-max.cz

Potřebujete poradit/máte zájem o prohlídku?

* – toto pole je nutné vyplnit

Podrobné informace

Číslo zakázky:
ID 294-NP01649
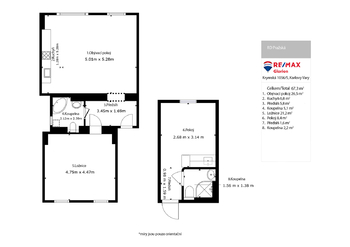
Dispozice:
2+kk
Číslo podlaží:
3
Počet podlaží v objektu:
5
Podlahová plocha:
97 m²
Druh objektu:
Smíšená
Stav objektu:
Dobrý
Vlastnictví:
Osobní
Typ nemovitosti:
Byty
Charakter okolní zástavby:
Obytná
Doprava:
Silnice, MHD, Autobus
Elektřina:
230 V
Odpad:
Kanalizace
Užitná plocha:
97 m²
Plyn:
Plynovod
Telekomunikace:
Internet
Umístění objektu:
Klidná část obce
Voda:
Dálkový rozvod
Vybaveno:
Ano
Energetická náročnost budovy:
C