Translate with 
MENU ZAVŘÍT

Prodej zemědělského objektu 218 m², Kojice (ID 285-NP00308)

Kojice, okres Pardubice mapa

4 499 031 Kč ( za nemovitost)

218 m2
2446 m2
218 m2
2
Exkluzivně

Usedlost s potenciálem – 2 budovy, stodola, sklípek a velký pozemek 2446m, kousek od Labe, Kojice 31

Toto je to ideální místo, kde se snoubí klid, čisté ovzduší a potenciál pro bydlení, rekreaci i hospodaření!
Za ještě lepší cenu můžete mít pestrý soubor budov s užitnou plochou 218m2 a hlavně velkým potenciálem úprav plus rozšíření v malebné obci Kojice, nedaleko řeky Labe a místních rybníků.

Na rozlehlém slunném pozemku o celkové výměře 2 446 m² najdete dvě obytné budovy, prostornou stodolu a samostatný sklípek. Usedlost je obklopena úrodnou půdou a ovocným sadem, který poskytuje nejen krásné prostředí, ale i možnost vlastní úrody.

Hlavní přednosti:
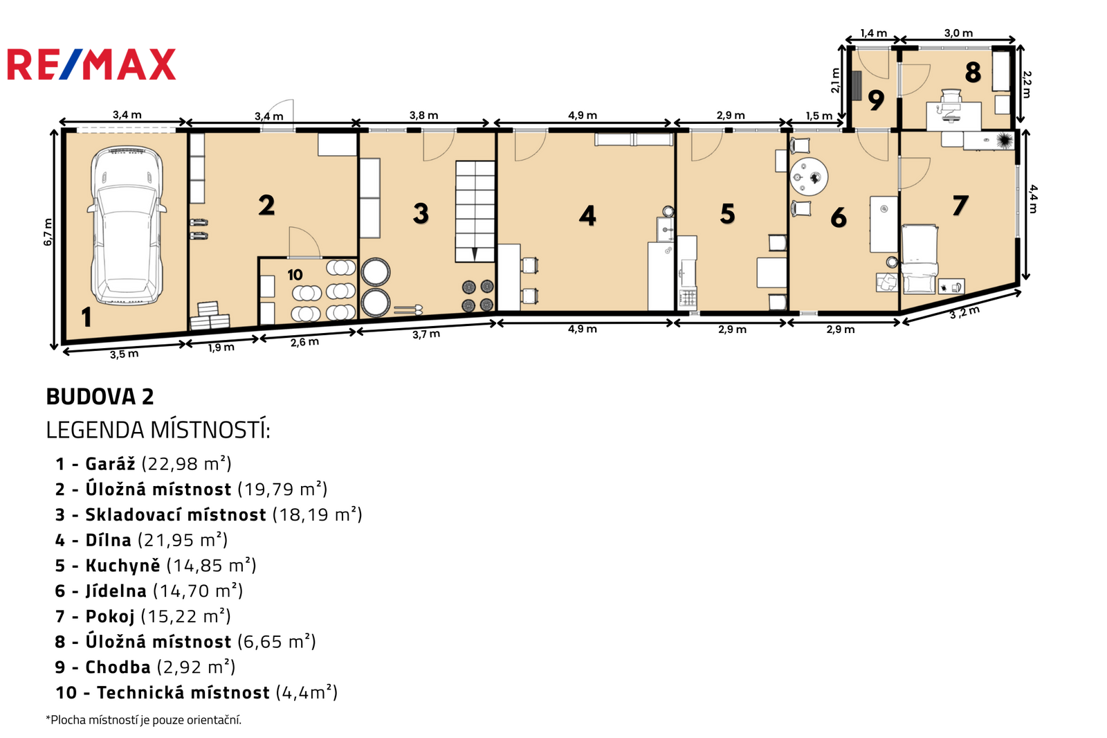
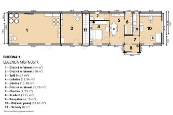
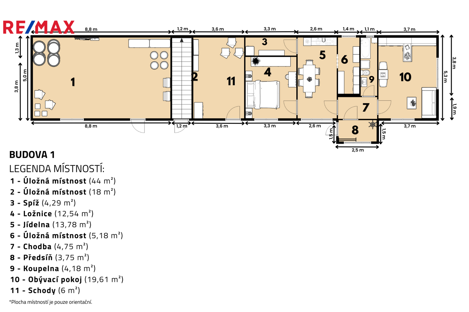
Dvě obytné budovy, první ihned obyvatelná s nově udělanou elektřinou a plynovým topením, vše s možností dalších úprav a rozšíření dle vlastních představ
Ideální prostředí a dostatek místa i pro chovná a domácí zvířata
Velké půdní prostory (165m2+32m2) vhodné k vestavbě či rozšíření obytné plochy
Stodola – ideální pro hospodářské využití, skladování nebo přestavbu na ateliér či dílnu
Vinný sklípek – autentický prvek s atmosférou, vhodný pro uchování vína či potravin a posezení s výhledem
Ovocný sad, zahrada a úrodná půda – možnost pěstování, zahradničení nebo drobného hospodaření
Vlastní studna – nezávislý zdroj vody, obecní přípojka vody u domu
Plyn a elektřina – kompletní inženýrské sítě zavedeny
Klidná lokalita s čistým ovzduším, ideální pro rodinný život i odpočinek

Obec Kojice leží v malebném prostředí Polabí, s výbornou dostupností autem (obchvat) i vlakem do Pardubic, Kolína i Prahy. Díky okolní přírodě, rybníkům a blízkosti Labe je to skvělé místo pro milovníky klidu, rybaření, myslivosti, cykloturistiky i procházky v přírodě. Potraviny, hřiště s hospodou, MŠ na místě, vše ostatní v blízkém okolí, viz web obce.

Možnosti využití:
Rodinné bydlení s velkou zahradou a hospodářským zázemím pro zvířata - bio farma
Rekreační usedlost pro klidné víkendové pobyty a odpočinek i pro větší počet lidí
Investiční příležitost – přestavba na ubytovnu, agroturistiku, vícegenerační bydlení nebo jiný druh podnikání v souladu s územním plánem

Tato usedlost v Kojicích nabízí jedinečnou kombinaci tradiční atmosféry, velkého pozemku a širokých možností využití. Je ideální pro ty, kteří hledají klidné místo k životu, chtějí hospodařit, nebo naopak hledají zajímavou investici s velkým potenciálem zhodnocení...

Nenechte si uniknout tuto unikátní příležitost!
S případnou hypotékou vám rádi pomůžeme
Pište či volejte pro více informací a termín prohlídky.
Díky a budu se těšit
Cena:
4 499 031 CZK / za nemovitost
Poznámka k ceně:
Cena zahrnuje veškerý právní servis
Upozornění:
Prodávající si vyhrazuje právo vybrat kupujícího na základě jím zvolených kritérií.
RX finance

Spočítejte si splátku hypotéky

Na kolik vás vyjde pořízení vlastního bydlení? Zadejte pár informací do naší hypoteční kalkulačky a hned si prohlédněte výsledek.

Kupní cena nemovitosti

4 499 031 Kč

Výše hypotéky

Doba splácení

Vypočítaná měsíční splátka

Úroková sazba 3.6%

260 990 Kč

Hypotéku zařídíme za vás

Ušetřete svůj čas i nervy. Naši makléři zařídí veškeré papírování a dovedou vás až k úspěšnému podpisu smlouvy v bance.

Nechte nám kontakt, náš makléř se v pracovní dny ozve do 24 hodin

* – toto pole je nutné vyplnit
Bc. Petr Kubášek
RE/MAX Prestige
Vídeňská 52/140
Praha 4 - Kunratice, 14800
Česká republika
Tel. na makléře: +420 603 417 599
Tel. do kanceláře: +420 605 945 005
E-mail: petr.kubasek@re-max.cz

Potřebujete poradit/máte zájem o prohlídku?

* – toto pole je nutné vyplnit

Podrobné informace

Číslo zakázky:
ID 285-NP00308
Poloha objektu:
Samostatný
Počet podlaží v objektu:
2
Užitná plocha:
218 m²
Plocha parcely:
2 446 m²
Druh objektu:
Smíšená
Stav objektu:
Před rekonstrukcí
Typ nemovitosti:
Zemědělské objekty
Charakter okolní zástavby:
Obytná
K nastěhování:
1. 11. 2025
Doprava:
Vlak, Dálnice, Silnice, Autobus
Elektřina:
230 V, 400 V
Garáž:
Ano
Odpad:
Septik
Ostatní rozvody:
Satelit
Celková plocha:
218 m²
Zastavěná plocha:
218 m²
Plyn:
Plynovod
Počet parkovacích míst:
4
Telekomunikace:
Internet
Typ domu:
Patrový
Umístění objektu:
Okraj obce