Translate with 
MENU ZAVŘÍT

Prodej bytu 2+kk v osobním vlastnictví 70 m², Mladé Buky (ID 023-NP08672)

Mladé Buky – část obce Hertvíkovice mapa

4 590 000 Kč ( za nemovitost)
GMimořádně
nehospodárná

kk
2x
70 m2
1/2
Exkluzivně

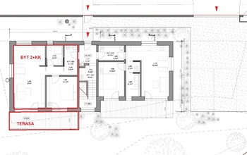
PRODEJ BYTU 2+KK, 51,7 m2, Hertvíkovice - Mladé Buky

Exkluzivně nabízíme prodej bytové jednotky (BJ) 2+kk s užitnou plochou 51,7 m2, terasou, zahradou, parkovacím stáním, boxem na kola či lyže. BJ se nachází v části obce Hertvíkovice, která je součástí městečka Mladé Buky.
Dispozice BJ : prostorný obývací pokoj s kuchyňským koutem a jídelní částí (27 m²), ložnice (13 m²), koupelna s WC (4,2 m²), vstupní prostory (7,4 m²), terasa (16,5 m²), jedno parkovací stání a uzamykatelný box vhodný pro uložení lyží či kol a v neposlední řadě dostatečný zahradní prostor pro relaxaci.
Technologie: vytápění i ohřev vody zajišťuje úsporný elektro kotel s podlahovým topením. Bezklíčový vstup do objektu (vhodné ke krátkodobému pronájmu).
Příprava u PS na WALL BOX (nabíječku na elektromobil)
Možnost úprav v rámci klientských změn : obklady, dlažby či kuchyňskou linku která není součástí vybavení BJ.
Bytová jednotka je určená k trvalému bydlení ale i krátkodobému pronájmu. Samotný byt se nachází v 1.NP s orientací terasy na jih.

Moderní projekt zahrnuje pouze tři bytové jednotky v domě, čímž je zajištěno soukromí i dostatek prostoru pro pohodlné bydlení.

Atraktivní lokalita a vysoká poptávka po ubytování zaručují výhodnou investici. Mladé Buky jsou malebnou obcí s výjimečnou polohou mezi městem Trutnov a horskými středisky Krkonoš. Pouhých 15 minut od Trutnova a 20 minut od Pece pod Sněžkou nabízí snadný přístup ke všem potřebným službám, stejně jako k lyžařským areálům, turistickým trasám či golfovému hřišti. Samotná lokalita je ideálním místem pro klidný život, rekreaci i aktivní odpočinek.

V případě dotazů či pomoc s financováním mě kdykoliv kontaktujte pro více informací či osobní prohlídku.
Cena:
4 590 000 CZK / za nemovitost
Poznámka k ceně:
včetně provize RK a právních služeb
Upozornění:
Prodávající si vyhrazuje právo vybrat kupujícího na základě jím zvolených kritérií.
RX finance

Spočítejte si splátku hypotéky

Na kolik vás vyjde pořízení vlastního bydlení? Zadejte pár informací do naší hypoteční kalkulačky a hned si prohlédněte výsledek.

Kupní cena nemovitosti

4 590 000 Kč

Výše hypotéky

Doba splácení

Vypočítaná měsíční splátka

Úroková sazba 3.6%

260 990 Kč

Hypotéku zařídíme za vás

Ušetřete svůj čas i nervy. Naši makléři zařídí veškeré papírování a dovedou vás až k úspěšnému podpisu smlouvy v bance.

Nechte nám kontakt, náš makléř se v pracovní dny ozve do 24 hodin

* – toto pole je nutné vyplnit
Ing. Martin Dudek
RE/MAX G8 Reality 2
Kleinerova 1466
Kladno, 27201
Česká republika
Tel. na makléře: +420 603 212 387
Tel. do kanceláře: +420 312 240 239
E-mail: martin.dudek@re-max.cz

Potřebujete poradit/máte zájem o prohlídku?

* – toto pole je nutné vyplnit

Podrobné informace

Číslo zakázky:
ID 023-NP08672
Dispozice:
2+kk
Číslo podlaží:
1
Počet podlaží v objektu:
2
Podlahová plocha:
70 m²
Druh objektu:
Cihlová
Stav objektu:
Ve výstavbě (hrubá stavba)
Vlastnictví:
Osobní
Typ nemovitosti:
Byty
K nastěhování:
1. 3. 2026
Elektřina:
230 V
Odpad:
Kanalizace
Užitná plocha:
52 m²
Počet parkovacích míst:
1
Umístění objektu:
Okraj obce
Vybaveno:
Ano
Energetická náročnost budovy:
G