Translate with 
MENU ZAVŘÍT

Prodej domu 130 m², Bohdalice-Pavlovice (ID 058-NP04430)

Bohdalice-Pavlovice – část obce Bohdalice mapa

6 500 000 Kč ( za nemovitost)
GMimořádně
nehospodárná

5+
130 m2
1165 m2
2
Exkluzivně Rezervace

Rodinný dům s velkým pozemkem v Bohdalicích – vhodný k bydlení i rekonstrukci

K prodeji nabízíme rodinný dům v obci Bohdalice-Pavlovice (okres Vyškov), postavený na pozemku o celkové výměře 1 165 m² – z toho 494 m² zastavěná plocha a nádvoří a 671 m² zahrada.
Užitná plocha domu je přibližně 130 m².
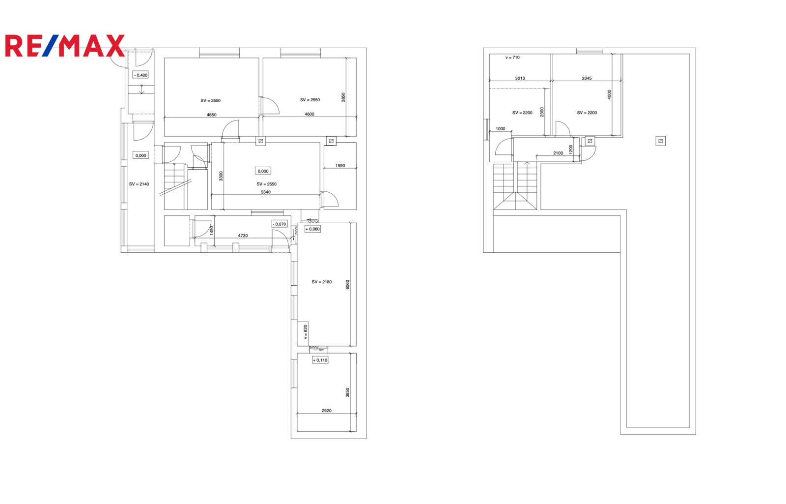
Dům má dispozici 5+1 a je rozdělený do dvou podlaží.
V 1. NP (přízemí) se nachází zádveří, spíž, prostorná chodba (17,5 m²), obývací pokoj (18 m²), ložnice (18 m²), kuchyně (17,5 m²), pokoj (11 m²), koupelna s WC (5 m²), samostatné WC a lodžie (7 m²).
V 2. NP (první patro) jsou dva pokoje (12 a 13 m²) a velká půda, kde je možné rozšířit obytnou část.
Dům je napojen na všechny sítě – elektřinu, plyn, vodovod i kanalizaci.
Na dvoře se nachází garáž a několik přístavků.
Před domem je vyhrazené parkovací stání pro tři osobní auta.
Interiér domu je v udržovaném stavu a ihned obyvatelný. Exteriér nabízí prostor pro modernizaci podle vlastních představ.

Na rekonstrukci je možné čerpat dotaci z programu Nová zelená úsporám až do výše cca 1,3 mil. Kč, podle rozsahu plánovaných prací a splnění podmínek programu. Dále je možné využít i zvýhodněný energoúvěr až do výše dvojnásobku poskytnuté dotace. Více informací o možnostech získání dotace a zvýhodněného energoúvěru u makléře.

Lokalita
Bohdalice-Pavlovice leží 10 km od Vyškova a 40 km od Brna.
V obci je obchod, škola, školka, pošta, restaurace i obecní úřad.
Dopravní spojení zajišťují autobusové linky. Okolí tvoří příroda Drahanské vrchoviny, která nabízí klid, zeleň a spoustu možností pro procházky i cykloturistiku.

Shrnutí
- Dispozice: 5+1, možnost rozšíření podkroví
- Užitná plocha: cca 130 m²
- Pozemek celkem: 1 165 m² (z toho zahrada 671 m²)
- Sítě: voda, elektřina, plyn, kanalizace
- Parkování: 3 stání + možnost parkovat ve dvoře
- Dotace až 1,3 mil. Kč
- Klidná lokalita s dobrou dostupností do Vyškova i Brna

Pro více informací nás neváhejte kontaktovat.
Zajišťujeme finanční poradenství.
Cena:
6 500 000 CZK / Rezervováno
Poznámka k ceně:
včetně provize a právních služeb
Upozornění:
Prodávající si vyhrazuje právo vybrat kupujícího na základě jím zvolených kritérií.
RX finance

Spočítejte si splátku hypotéky

Na kolik vás vyjde pořízení vlastního bydlení? Zadejte pár informací do naší hypoteční kalkulačky a hned si prohlédněte výsledek.

Kupní cena nemovitosti

6 500 000 Kč

Výše hypotéky

Doba splácení

Vypočítaná měsíční splátka

Úroková sazba 3.6%

260 990 Kč

Hypotéku zařídíme za vás

Ušetřete svůj čas i nervy. Naši makléři zařídí veškeré papírování a dovedou vás až k úspěšnému podpisu smlouvy v bance.

Nechte nám kontakt, náš makléř se v pracovní dny ozve do 24 hodin

* – toto pole je nutné vyplnit
Jan Sedlmajer
RE/MAX Atraktiv
Purkyňova 143/18
Vyškov, 68201
Česká republika
Tel. na makléře: +420 734 355 843
Tel. do kanceláře: +420 733 149 010
E-mail: jan.sedlmajer@re-max.cz

Potřebujete poradit/máte zájem o prohlídku?

* – toto pole je nutné vyplnit

Podrobné informace

Číslo zakázky:
ID 058-NP04430
Poloha objektu:
Řadový
Počet podlaží v objektu:
2
Užitná plocha:
130 m²
Plocha parcely:
1 165 m²
Druh objektu:
Cihlová
Stav objektu:
Dobrý
Typ nemovitosti:
Domy a vily
Odpad:
Kanalizace
Zastavěná plocha:
152 m²
Plyn:
Plynovod
Typ domu:
Patrový
Voda:
Dálkový rozvod
Energetická náročnost budovy:
G