Translate with 
MENU ZAVŘÍT

Prodej bytu 4+kk v osobním vlastnictví 123 m², Kladno (ID 023-NP08670)

ulice Poštovní náměstí, Kladno mapa

6 590 000 Kč ( za nemovitost)
GMimořádně
nehospodárná

kk
4x
123 m2
4/4
Exkluzivně Rezervace

Byt 4+kk, 123 m2, Kladno, Poštovní nám.

Velmi prostorný cihlový byt v centru Kladna s možnost parkování v uzamčeném dvoře.
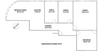
Byt 4+kk s nadstandardní obytnou plochou 123,29 m2 se nachází ve 3. patře staršího činžovního domu v Kladně, na právě rekonstruovaném Poštovním náměstí 190 (nad hlavní poštou). Originální a pohodlné bydlení, v domě je jen osm bytů. Možnost pronájmu parkovacího místa v uzavřeném dvoře, v suterénu je sklep 9,54 m2.
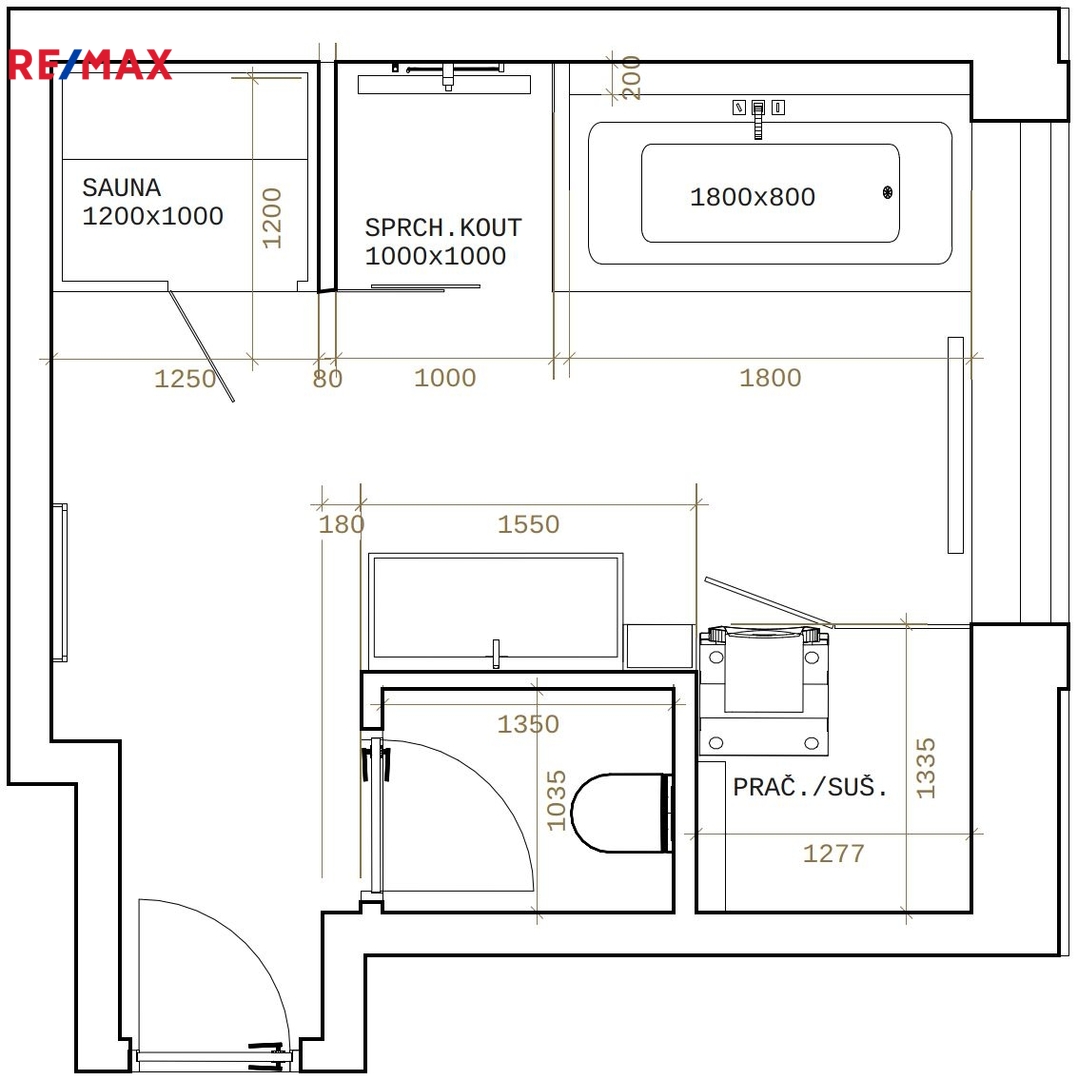
Byt je po částečné rekonstrukci (nové rozvody topení, vody a odpadů, plastová okna, nové podlahy, dveře a zárubně, výmalba). Zbývá osadit kuchyňskou linku, plynový kotel, radiátory a zejména vybudovat novou koupelnu se dvěma okny na úžasném prostoru 16,57 m2! Ve fotogalerii je vizualizace a plánek příkladu koupelny s vanou, sprchovým koutem, toaletou a saunou!
Díky vlastnímu kotli nebudete závislí na dálkovém topení ani na rozpočítávání ztrátového tepla. Výborný poměr ceny a výměry jen 53.500 Kč/m2. Osobní vlastnictví, hypotéku rádi vyřídíme.
Cena:
6 590 000 CZK / Rezervováno
Poznámka k ceně:
Upozornění:
Prodávající si vyhrazuje právo vybrat kupujícího na základě jím zvolených kritérií.
RX finance

Spočítejte si splátku hypotéky

Na kolik vás vyjde pořízení vlastního bydlení? Zadejte pár informací do naší hypoteční kalkulačky a hned si prohlédněte výsledek.

Kupní cena nemovitosti

6 590 000 Kč

Výše hypotéky

Doba splácení

Vypočítaná měsíční splátka

Úroková sazba 3.6%

260 990 Kč

Hypotéku zařídíme za vás

Ušetřete svůj čas i nervy. Naši makléři zařídí veškeré papírování a dovedou vás až k úspěšnému podpisu smlouvy v bance.

Nechte nám kontakt, náš makléř se v pracovní dny ozve do 24 hodin

* – toto pole je nutné vyplnit
Miroslav Chadima
RE/MAX G8 Reality 2
Kleinerova 1466
Kladno, 27201
Česká republika
Tel. na makléře: +420 605 220 600
Tel. do kanceláře: +420 312 240 239
E-mail: miroslav.chadima@re-max.cz

Potřebujete poradit/máte zájem o prohlídku?

* – toto pole je nutné vyplnit

Podrobné informace

Číslo zakázky:
ID 023-NP08670
Dispozice:
4+kk
Číslo podlaží:
4
Počet podlaží v objektu:
4
Podlahová plocha:
123 m²
Druh objektu:
Cihlová
Stav objektu:
Dobrý
Vlastnictví:
Osobní
Typ nemovitosti:
Byty
K nastěhování:
18. 7. 2025
Elektřina:
230 V
Odpad:
Kanalizace
Užitná plocha:
123 m²
Plyn:
Plynovod
Počet podlaží pod zemí:
1
Umístění objektu:
Centrum obce
Voda:
Dálkový rozvod
Energetická náročnost budovy:
G