Translate with 
MENU ZAVŘÍT

Pronájem bytu 3+1 v osobním vlastnictví 70 m², Praha 5 - Radlice (ID 340-NP00132)

ulice Tetínská, Praha 5 – Radlice mapa

24 000 Kč ( za měsíc)
CÚsporná

1x
3x
70 m2
3/3
Exkluzivně

Prostorný byt 3+1 s výhledy na Prahu, ul. Tetínská Praha 5 Radlice - klid a zeleň na dosah

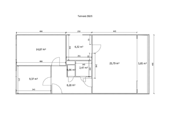
K dlouhodobému pronájmu nabízím částečně vybavenou bytovou jednotku o dispozici 3+1 a užitné ploše 70,34 m². Nachází se v klidné ulici Tetínská na Praze 5 – Radlice, ve 3.NP panelového domu bez výtahu. Byt má lodžii (5,85 m2) s nádhernými výhledy na Prahu.
V bytě je samostatná kuchyň vybavená plynovým vařičem, elektrickou troubou a myčkou nádobí. Je zapotřebí si dovybavit vlastní lednicí. Koupelna je s vanou, umyvadlem a přípravou na pračku, toaleta je oddělená. K dispozici je komora na stejném patře a sklepní kóje v suterénu. Internet je přiveden optickým kabelem.
Dispozice bytu i poloha jsou ideální pro rodinu s dětmi nebo pár. Lokalita nabízí kompletní občanskou vybavenost v docházkové vzdálenosti a zároveň bohaté možnosti volnočasových aktivit – nedaleko se nachází Dívčí hrady, Prokopské údolí, vyhlídková místa na Prahu a také lezecké centrum SmíchOFF.
Parkování je řešeno před domem pro jedno místo - nájemce obdrží kartičku pro povolení parkování před domem nebo na ulici na modrých zónách (lze si zařídit roční povolení parkování v určité lokalitě městské části za výhodnější cenu nebo lze zařídit celoroční parkování pro celou městskou část za poplatek).
Stanice metra B Radlická je vzdálena pouhých 13 minut chůze nebo 4 zastávky autobusem č. 153.
Měsíční nájemné činí 24 000 Kč + poplatky. Vratná kauce je ve výši jednoho a půl měsíčního nájmu. Elektřina i plyn se převádí na nájemce. Elektřina cca 1500,- Kč a plyn 350,- Kč. Provize RK činí jeden měsíční nájem + DPH.
V případě zájmu o více informací nebo domluvení prohlídky mě prosím kontaktujte na e-mail. Budu se těšit na osobní setkání.
Cena:
24 000 CZK / za měsíc
Poznámka k ceně:
Měsíční nájemné 24 000,- Kč + poplatky, vratná kauce 1 a půl měsíčního nájmu, provize RK 1 měsíční nájem + DPH
Upozornění:
Pronajímající si vyhrazuje právo vybrat nájemce na základě jím zvolených kritérií.
Ing. Vladislav Pavlík
RE/MAX Miramar II
Pražská 709
Dolní Břežany, 25241
Česká republika
Tel. na makléře: +420 733 740 351
Tel. do kanceláře: +420 739 555 554
E-mail: vladislav.pavlik@re-max.cz

Potřebujete poradit/máte zájem o prohlídku?

* – toto pole je nutné vyplnit

Podrobné informace

Číslo zakázky:
ID 340-NP00132
Dispozice:
3+1
Číslo podlaží:
3
Počet podlaží v objektu:
3
Podlahová plocha:
70 m²
Druh objektu:
Panelová
Stav objektu:
Dobrý
Vlastnictví:
Osobní
Typ nemovitosti:
Byty
Charakter okolní zástavby:
Obytná
K nastěhování:
1. 6. 2025
Doprava:
Silnice, MHD
Elektřina:
230 V
Odpad:
Kanalizace
Ostatní rozvody:
Kabelové rozvody
Užitná plocha:
70 m²
Plyn:
Plynovod
Rok rekonstrukce:
2009
Telekomunikace:
Internet
Umístění objektu:
Klidná část obce
Voda:
Zdroj pro celý objekt
Vybaveno:
Ano
Energetická náročnost budovy:
C
Měrná vypočtená roční spotřeba energie v kWh/m²/rok:
89