Translate with 
MENU ZAVŘÍT

Prodej domu 354 m², Ráječko (ID 268-NP03307)

ulice nám. 1. máje, Ráječko mapa

9 980 000 Kč ( za nemovitost)
GMimořádně
nehospodárná

5+
354 m2
1128 m2
2
Exkluzivně

Prodej rodinného domu Ráječko, okr. Blansko

V zastoupení majitele Vám ke koupi nabízíme řadový podkrovní rodinný dům o hrubé podlahové ploše 354 m², nacházející se v oblíbené lokalitě v obci Ráječko, okres Blansko. Nemovitost je ideální pro vícegenerační bydlení, kombinaci bydlení s podnikáním nebo investici – nabízí dva samostatné vstupy a možnost vytvořit více bytových jednotek.

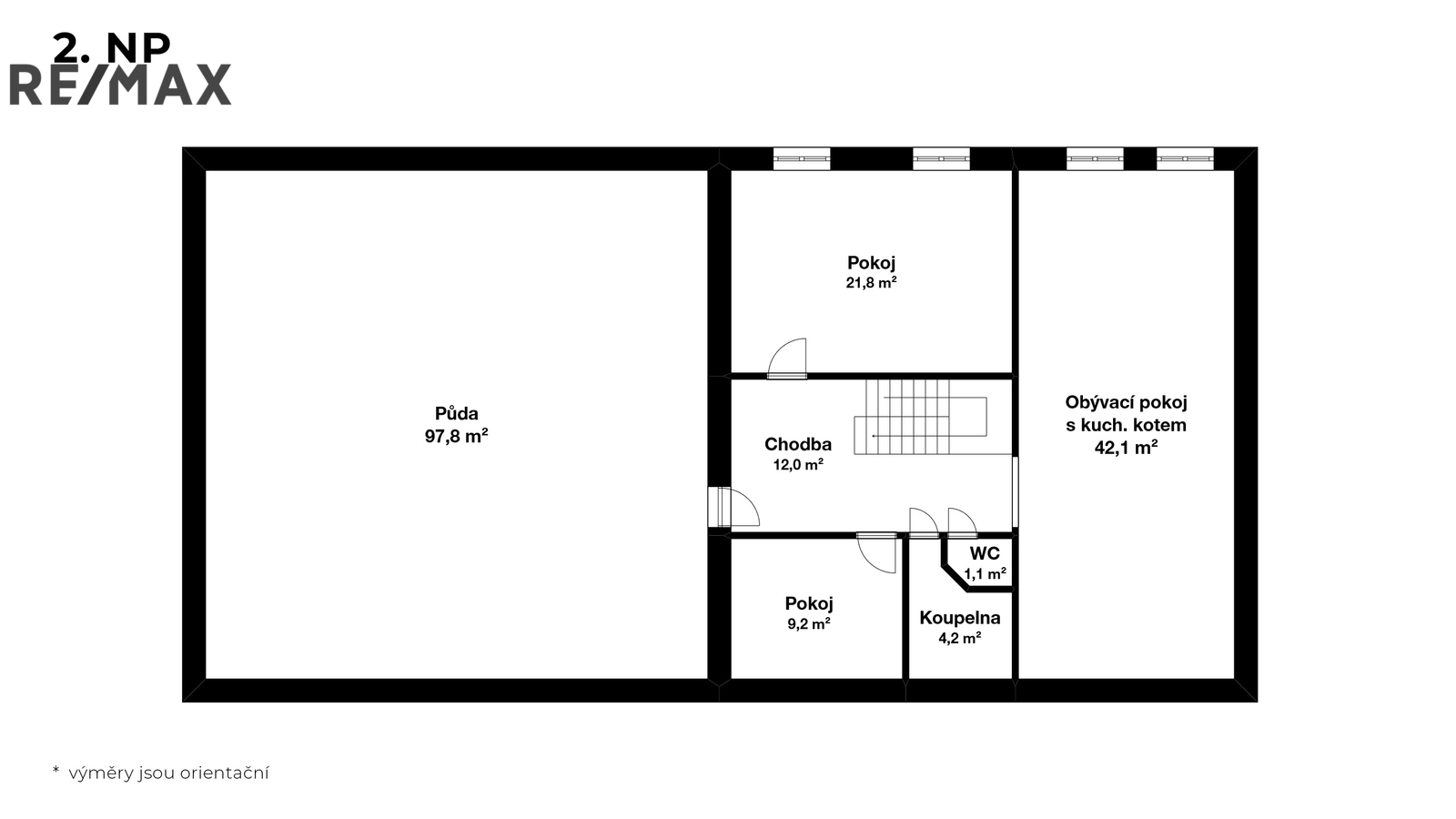
Dispozice:
1. patro – po rekonstrukci:
• 2 ložnice
• obývací pokoj s krbem, kuchyňským a jídelním koutem
• koupelna s vanou i sprchou
• samostatné WC
• klimatizace
• přístup do velkého půdního prostoru vhodného k vestavbě

Přízemí – starší rekonstrukce:
• vstupní hala
• obývací pokoj + kuchyně
• 2 ložnice
• koupelna, WC
• vstup do velké garáže (40 m2)

+ samostatná část se vstupem z ulice nebo chodby domu:
• pokoj/šatna
• koupelna, WC, spíž
• kotelna

Technicé informace:
• Dům napojen na vodovod a kanalizaci
• Vytápění a ohřev vody zajišťuje plynový kondenzační kotel značky EMBA
• Radiátory ve všech místnostech, v podkroví navíc krb
• Zdivo: cihla
• Střecha: sedlová, pálená taška
• Fasáda zateplena cca v r. 2017
• Na pozemku hospodářské stavení, studna s užitkovou vodou

Výhody:
• Klidná lokalita s výbornou dostupností do Blanska i Brna
• Velkorysé prostory vhodné pro vícegenerační bydlení nebo investiční záměr
• Dva samostatné vstupy, vjezd z obou stran pozemku
• Rekonstruované horní patro, připravené k okamžitému bydlení
• Možnost dalšího rozšíření obytné plochy v podkroví
• Kompletní občanská vybavenost v obci (škola, školka, obchod, restaurace, lékař, lékárna, dětské hřiště...)

Neváhejte kontaktovat makléřku nabídky pro více informací a domluvení termínu prohlídky.

Průkaz energetické náročnosti je ve zpracování, uvádíme tedy nyní v souladu s právními předpisy energetickou třídu G. Majitel si vyhrazuje právo zvolit kupujícího na základě jím stanovených kritérií. Všechny uvedené údaje mají pouze informativní charakter a nepředstavují nabídku ve smyslu § 1731 nebo § 1732 občanského zákoníku, ani veřejný příslib dle § 1733 občanského zákoníku. Z této nabídky tak nevzniká nárok na uzavření smlouvy.
Cena:
9 980 000 CZK / za nemovitost
Poznámka k ceně:
vč. realitního a právního servisu
Upozornění:
Prodávající si vyhrazuje právo vybrat kupujícího na základě jím zvolených kritérií.
RX finance

Spočítejte si splátku hypotéky

Na kolik vás vyjde pořízení vlastního bydlení? Zadejte pár informací do naší hypoteční kalkulačky a hned si prohlédněte výsledek.

Kupní cena nemovitosti

9 980 000 Kč

Výše hypotéky

Doba splácení

Vypočítaná měsíční splátka

Úroková sazba 3.6%

260 990 Kč

Hypotéku zařídíme za vás

Ušetřete svůj čas i nervy. Naši makléři zařídí veškeré papírování a dovedou vás až k úspěšnému podpisu smlouvy v bance.

Nechte nám kontakt, náš makléř se v pracovní dny ozve do 24 hodin

* – toto pole je nutné vyplnit
Veronika Zbořilová
RE/MAX Delux
Křenová 538/22
Brno, 60200
Česká republika
Tel. na makléře: +420 775 674 320
Tel. do kanceláře: +420 602 703 897
E-mail: veronika.zborilova@re-max.cz

Potřebujete poradit/máte zájem o prohlídku?

* – toto pole je nutné vyplnit

Podrobné informace

Číslo zakázky:
ID 268-NP03307
Poloha objektu:
Řadový
Počet podlaží v objektu:
2
Užitná plocha:
354 m²
Plocha parcely:
1 128 m²
Druh objektu:
Cihlová
Stav objektu:
Dobrý
Typ nemovitosti:
Domy a vily
Odpad:
Kanalizace
Plyn:
Plynovod
Počet podlaží pod zemí:
2
Typ domu:
Patrový
Umístění objektu:
Centrum obce
Voda:
Dálkový rozvod
Vybaveno:
Ano
Energetická náročnost budovy:
G