Translate with 
MENU ZAVŘÍT

Pronájem jiných prostor 14 m², Rožnov pod Radhoštěm (ID 133-NP02493)

ulice Pivovarská, Rožnov pod Radhoštěm mapa

2 600 Kč ( za měsíc)
CÚsporná

14 m2
Exkluzivně

Pronájem světlých komerčních prostor po poskytování služeb – Rožnov pod Radhoštěm.

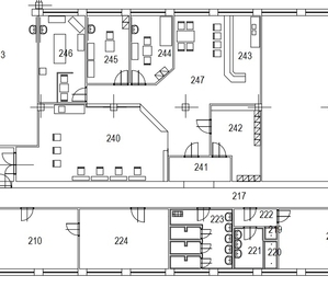
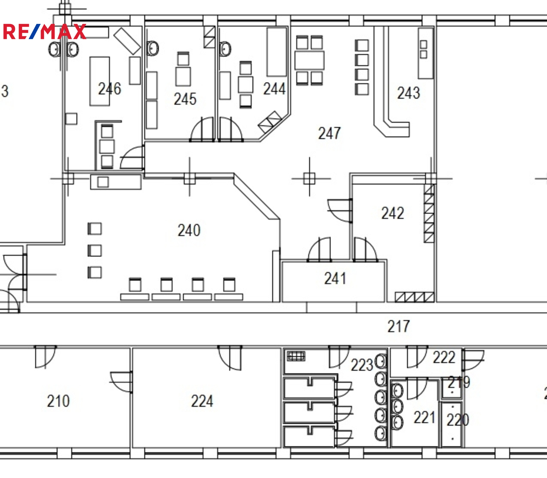
245 - PRONÁJEM PROSTOR PRO SLUŽBY KOSMETIKY, MANIKURY - 14m2
Nabízíme k pronájmu prosvětlený prostor pro poskytování služeb (kosmetika, manikura, pedikura, masáže, solarium-příprava elektroinstalace již provedena, koučink, poradenství...).
Předmět nájmu opatřen vlastním umyvadlem a zkolaudován přímo pro poskytování služeb spojených s péčí o tělo.
V případě zájmu k dispozici také čekárna s recepcí pro hosty a zázemí pro personál.
Prostor o výměře 14m2 (m.č.245) se nachází v 1.NP. multifunkčního objektu na ulici Pivovarská ca.300m od náměstí v Rožnově pod Radhoštěm (5min chůze).
Cena:
- nájemné: 2600Kč/měsíc
- služby: 2100Kč + DPH/měsíc (vytápění, elektřina společných prostor, vodné - stočné, svoz komunálního odpadu, každodenní úklid všech společných prostor včetně doplnění hygienických potřeb).
Budova i okolí je po celkové revitalizaci (...zateplena, vlastní kotelna, vlastní trafostanice, výtahy 1000kg), areál je oplocen a hlídán pomocí CCTV a pravidelně udržován.
K dispozici: od 1.12.2025
Moderní, bezpečné a dobře situované prostory, které poskytnou vašemu podnikání skvělé zázemí.
Kontaktujte mě ještě dnes a domluvte si prohlídku.

Cena:
2 600 CZK / za měsíc
Poznámka k ceně:
Upozornění:
Pronajímající si vyhrazuje právo vybrat nájemce na základě jím zvolených kritérií.
Jitka Fröhlichová
RE/MAX Actual
Kadláčkova 360/19
Kopřivnice, 74221
Česká republika
Tel. na makléře: +420 776 257 694
Tel. do kanceláře: +420 725 686 530
E-mail: jitka.frohlichova@re-max.cz

Potřebujete poradit/máte zájem o prohlídku?

* – toto pole je nutné vyplnit

Podrobné informace

Číslo zakázky:
ID 133-NP02493
Typ nemovitosti:
Komerční prostory
Druh prostor:
Jiné
Číslo podlaží:
1
Počet podlaží v objektu:
2
Plocha kanceláří:
14 m²
Druh objektu:
Cihlová
Stav objektu:
Velmi dobrý
K nastěhování:
1. 12. 2025
Elektřina:
230 V
Odpad:
Kanalizace
Celková plocha:
14 m²
Typ domu:
Patrový
Umístění objektu:
Centrum obce
Voda:
Dálkový rozvod
Energetická náročnost budovy:
C