Translate with 
MENU ZAVŘÍT

Pronájem kancelářských prostor 200 m², Paskov (ID 344-NP00537)

ulice Místecká, Paskov mapa

20 000 Kč ( za měsíc)
DMéně
úsporná

200 m2
Exkluzivně

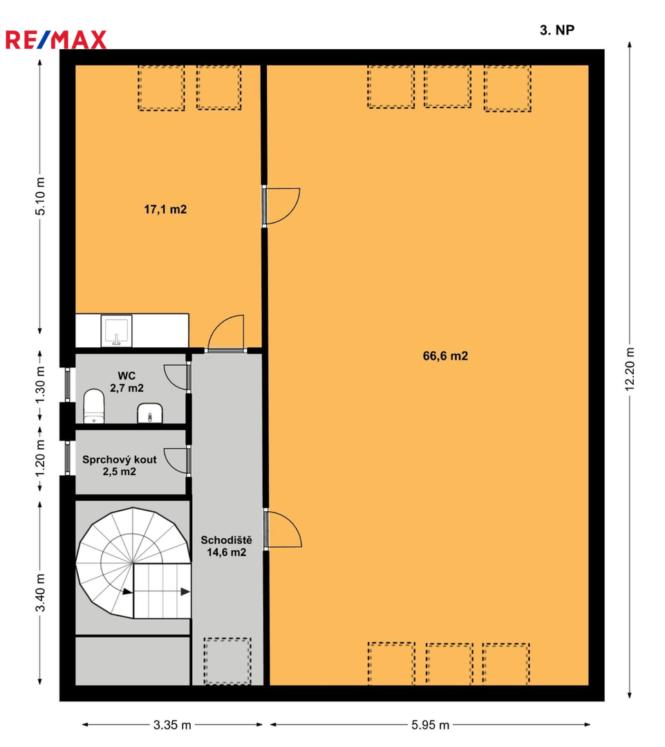
Pronájem kancelářských prostor, 200 m2, Paskov

Nabízíme k pronájmu prostorné kancelářské prostory o celkové výměře 200 m², které se nacházejí ve dvou nadzemních podlažích komerční budovy na ulici Místecká v Paskově. Budova se nachází v atraktivní a strategicky výhodné lokalitě s výbornou dopravní dostupností – v blízkosti dálnice D56, která zajišťuje rychlé spojení do Ostravy, Frýdku-Místku i dalších okolních měst.

Prostory jsou vhodné pro zřízení kanceláří, sídla firmy nebo administrativního zázemí společnosti. Nabízejí dostatek prostoru pro pohodlné a funkční pracovní prostředí.

Požadované měsíční nájemné činí 20 000 Kč + DPH. Při podpisu nájemní smlouvy se skládá kauce ve výši dvou měsíčních nájmů. Elektřina bude nájemci účtována dvakrát ročně dle skutečné spotřeby.

Pokud hledáte reprezentativní kancelářské prostory na dobře dostupném místě v Paskově, neváhejte nás kontaktovat pro více informací nebo domluvení osobní prohlídky.
Cena:
20 000 CZK / za měsíc
Poznámka k ceně:
Upozornění:
Pronajímající si vyhrazuje právo vybrat nájemce na základě jím zvolených kritérií.
David Patera
RE/MAX Easy
28. října 1610/95
Ostrava, 70200
Česká republika
Tel. na makléře: +420 725 878 423
Tel. do kanceláře: +420 722 484 787
E-mail: david.patera@re-max.cz

Potřebujete poradit/máte zájem o prohlídku?

* – toto pole je nutné vyplnit

Podrobné informace

Číslo zakázky:
ID 344-NP00537
Typ nemovitosti:
Komerční prostory
Druh prostor:
Kanceláře
Číslo podlaží:
2
Počet podlaží v objektu:
3
Plocha kanceláří:
200 m²
Druh objektu:
Cihlová
Stav objektu:
Velmi dobrý
Charakter okolní zástavby:
Obchodní a obytná
K nastěhování:
10. 10. 2025
Odpad:
Kanalizace
Celková plocha:
200 m²
Typ domu:
Patrový
Voda:
Dálkový rozvod
Energetická náročnost budovy:
D
Měrná vypočtená roční spotřeba energie v kWh/m²/rok:
65