Translate with 
MENU ZAVŘÍT

Prodej chaty / chalupy 60 m², Všeradice (ID 318-NP00127)

Všeradice, okres Beroun mapa

3 990 000 Kč ( za nemovitost)
GMimořádně
nehospodárná

3x
60 m2
348 m2
1
Exkluzivně

Chalupa/domek v srdci Všeradic s vlastním pozemkem a garáží

Vlastní domek za cenu malého bytu?
Rekreační chalupa uprostřed obce Všeradice, zděná, připojená na elektřinu, vodovod, kanalizaci a plyn. Stav je původní, velmi dobře udržovaný.
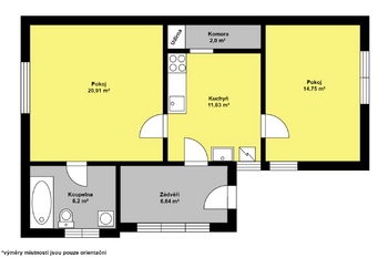
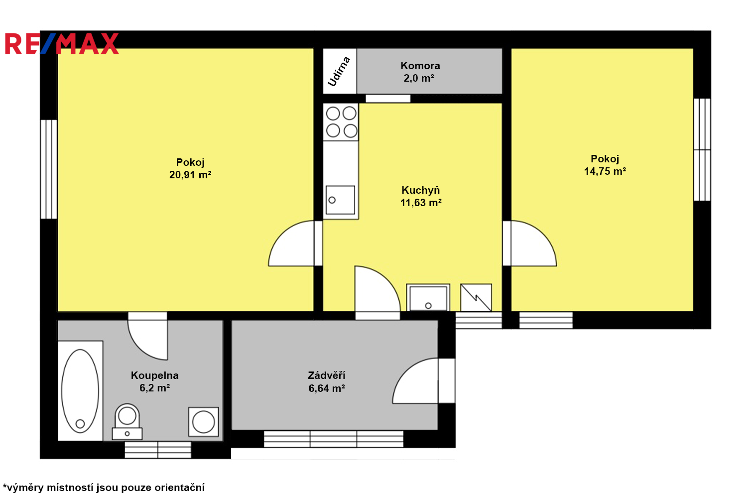
Dům tvoří 3 obytné místnosti - obývací pokoj se vstupem do koupelny, kuchyně se spižírnou a udírnou, též útulná ložnice.
Vstup do domu je přes prostornou verandu.
V suterénu je sklípek, dílna a dřevník + technická místnost s původní kotelnou, nyní se již topí plynovým kotlem.
Zahrada je menší a dobře udržovatelná. V zadní části je zděný chlívek s dřevníkem, suché WC (nepoužívá se) a králíkárna.
Pod domem u cesty je zděná garáž.
Podlahová plocha domu je 60 m2, suterén 40 m2, hospodářské budovy 20 m2, garáž 26 m2, zahrada cca 180 m2, celková plocha pozemku je 348 m2.
Umístění rekreačního domu je naproti hospody Na Růžku, nedaleko kostela sv. Bartoloměje, kousek od zámeckého dvora s pivovarem Všerad, muzeem Magdalény Dobromily Rettigové, a krůček od kavárny Tady a tak. V obci je též obecní úřad, školka, obchod Coop, cukrárna Somnium, fotbalové hřiště, zastávka vlaku i autobusu...
Dopravní dostupnost do Prahy, Berouna, Hostomic, Dobříše, Hořovic nebo Příbrami je velmi dobrá.
Všeradice jsou krásná starobylá obec se zmínkami ze 13. století, stávala zde tvrz, následně přestavěná na barokní zámek.
Obec leží naproti Brdům, na okraji Českého krasu, takže krásná příroda je všude kolem.
Jedinečná nabídka v okolí, neváhejte mě kontaktovat pro prohlídku!
Cena:
3 990 000 CZK / za nemovitost
Poznámka k ceně:
Cena nemovitosti včetně právních služeb, převodu na Katastru nemovitostí a provize realitní kanceláře!
Upozornění:
Prodávající si vyhrazuje právo vybrat kupujícího na základě jím zvolených kritérií.
RX finance

Spočítejte si splátku hypotéky

Na kolik vás vyjde pořízení vlastního bydlení? Zadejte pár informací do naší hypoteční kalkulačky a hned si prohlédněte výsledek.

Kupní cena nemovitosti

3 990 000 Kč

Výše hypotéky

Doba splácení

Vypočítaná měsíční splátka

Úroková sazba 3.6%

260 990 Kč

Hypotéku zařídíme za vás

Ušetřete svůj čas i nervy. Naši makléři zařídí veškeré papírování a dovedou vás až k úspěšnému podpisu smlouvy v bance.

Nechte nám kontakt, náš makléř se v pracovní dny ozve do 24 hodin

* – toto pole je nutné vyplnit
Lukáš Hrubý
RE/MAX All Up
Pražská 454
Lety u Dobřichovic, 25229
Česká republika
Tel. na makléře: +420 739 899 990
Tel. do kanceláře: +420 739 899 990
E-mail: lukas.hruby@re-max.cz

Potřebujete poradit/máte zájem o prohlídku?

* – toto pole je nutné vyplnit

Podrobné informace

Číslo zakázky:
ID 318-NP00127
Poloha objektu:
Samostatný
Počet podlaží v objektu:
1
Užitná plocha:
60 m²
Plocha parcely:
348 m²
Druh objektu:
Cihlová
Stav objektu:
Dobrý
Typ nemovitosti:
Chaty a rekreační objekty
Charakter okolní zástavby:
Obytná
K nastěhování:
10. 10. 2025
Doprava:
Vlak, Silnice, Autobus
Elektřina:
230 V
Garáž:
Ano
Odpad:
Kanalizace
Celková plocha:
60 m²
Plocha zahrady:
180 m²
Zastavěná plocha:
166 m²
Plyn:
Plynovod
Počet podlaží pod zemí:
1
Typ domu:
Přízemní
Umístění objektu:
Centrum obce
Umístění v chráněných lokalitách:
Ochranné pásmo
Voda:
Dálkový rozvod
Vybaveno:
Ano
Energetická náročnost budovy:
G