Translate with 
MENU ZAVŘÍT

Prodej obchodních prostor 487 m², Litvínov (ID 094-NP06216)

Litvínov – část obce Záluží u Litvínova mapa

6 990 000 Kč ( za nemovitost)
GMimořádně
nehospodárná

487 m2
Exkluzivně

Prodej administrativní budovy v těsné blízkosti Orlen Unipetrol Záluží - vynikající stav budovy

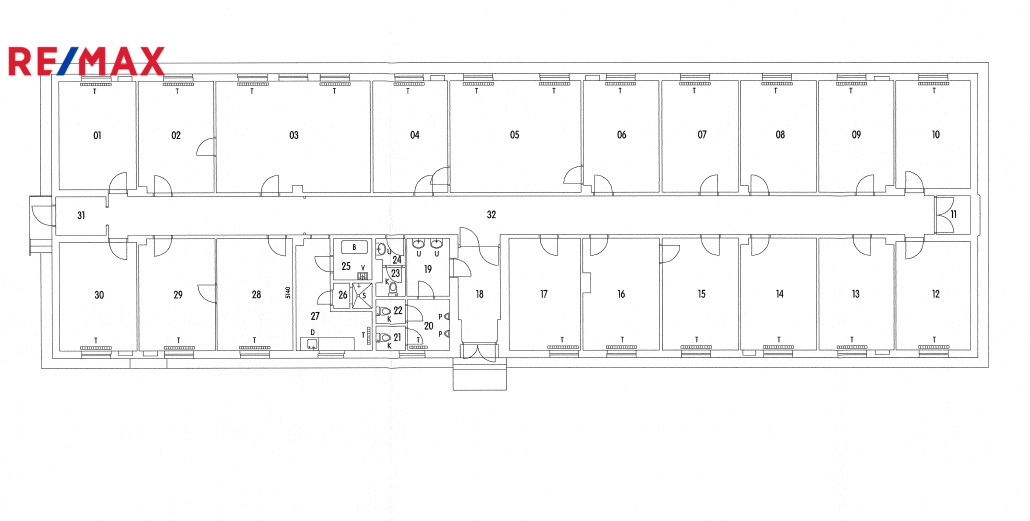
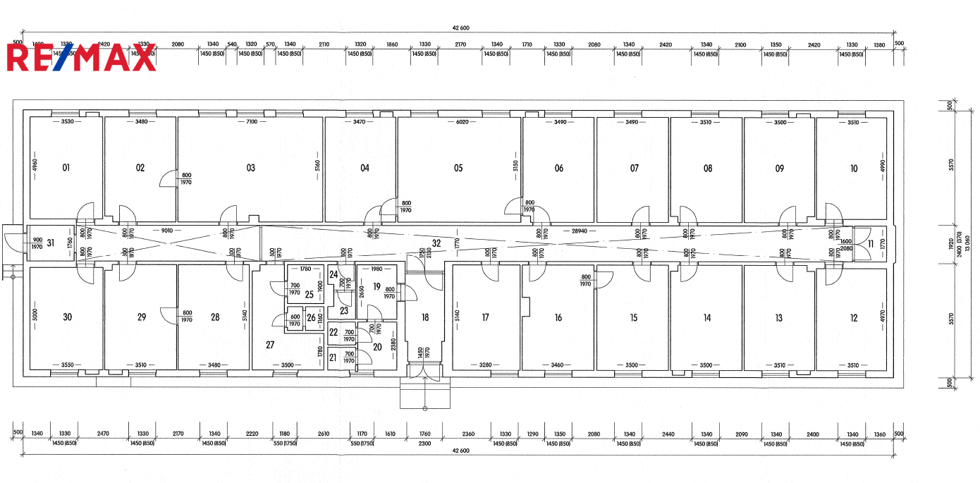
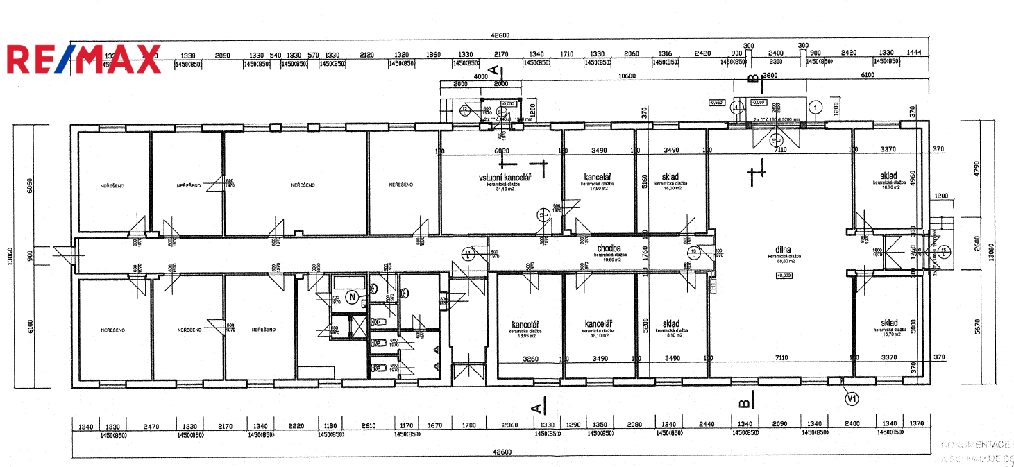
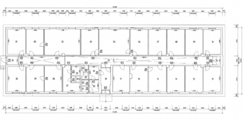
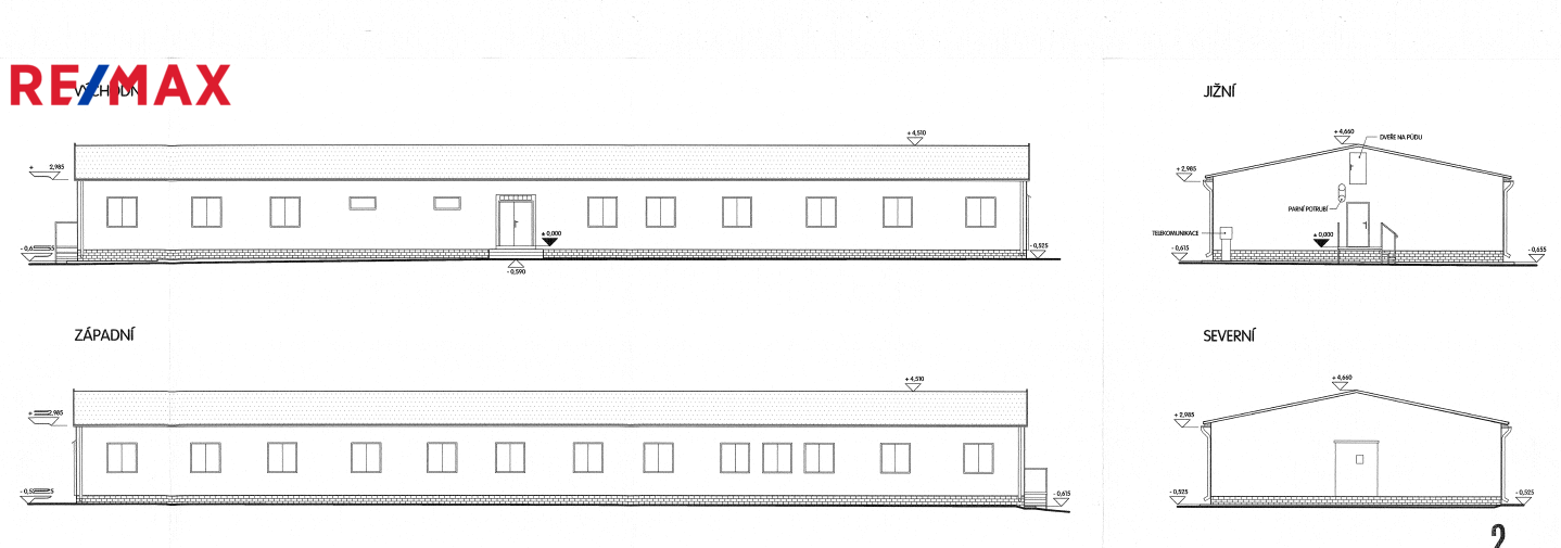
V zastoupení majitele nabízíme k prodeji kompletní zázemí pro Vaší společnost - kancelářská budova, o podlahové ploše 487 m2!!, umístěná ve vyhledávané komerční/průmyslové zóně v Záluží u Litvínova, a to v těsné blízkosti areálu společnosti Orlen Unipetrol Záluží u Litvínova (strategické místo, přímo u kruhového objezdu před hl. vjezdem do areálu Orlen Unipetrol), okr. Most. Zastavěná plocha budovy je 568 m2 (v KN zapsáno jako budova pro administrativu), pozemek je o výměře 708m2 (v KN zapsáno jako ostatní plocha, manipulační plocha), předmětem prodeje je také podíl 1/6 na příjezdové komunikaci 506 m2.
Nabízené prostory jsou tvořeny nepřeberným množstvím zrekonstruovaných kancelářských prostor s instalovanými datovými rozvody, některé vybavené kvalitním nábytkem, včetně klimatizace, sociálního zařízení i kuchyněk, zasedací místnosti atd.
Celý areál je oplocen, možnost parkování cca 20 vozidel kolem budovy. Napojeno na ele. energii, vodovod, kanalizaci, otop zajištěn dálkový z teplárny. Samostatné měření spotřebovaných energií i vody je samozřejmostí. Tato zděná a zateplená administrativní budova je v perfektním stavu, chráněna elektronickým zabezpečovacím systémem napojeným na PCO. Technický stav objektu je vynikající. Prostory odpovídají všem bezpečnostním a technickým předpisům a jsou připraveny k okamžitému využití. Napojení objektu na veškerou infrastrukturu zvyšuje jeho využitelnost, kdy celý areál vytváří reprezentativní ucelené zázemí pro nové sídlo Vaší společnosti.
Jsou zde opravdu široké možnosti využití, pokud hledáte reprezentativní zázemí pro svou společnost, včetně perfektní dopravní dostupnosti, pak volejte pro více informací či pro objednání termínu prohlídky, makléři této nabídky. Pomohu také s případným financováním. PENB bude upřesněno (ve zpracování).
Pro více informací kontaktujte makléře nabídky.
Cena:
6 990 000 CZK / za nemovitost
Poznámka k ceně:
Upozornění:
Prodávající si vyhrazuje právo vybrat kupujícího na základě jím zvolených kritérií.
RX finance

Spočítejte si splátku hypotéky

Na kolik vás vyjde pořízení vlastního bydlení? Zadejte pár informací do naší hypoteční kalkulačky a hned si prohlédněte výsledek.

Kupní cena nemovitosti

6 990 000 Kč

Výše hypotéky

Doba splácení

Vypočítaná měsíční splátka

Úroková sazba 3.6%

260 990 Kč

Hypotéku zařídíme za vás

Ušetřete svůj čas i nervy. Naši makléři zařídí veškeré papírování a dovedou vás až k úspěšnému podpisu smlouvy v bance.

Nechte nám kontakt, náš makléř se v pracovní dny ozve do 24 hodin

* – toto pole je nutné vyplnit
Ing. Tomáš Kocman
RE/MAX Synergy
Krupská 30/26
Teplice, 41501
Česká republika
Tel. na makléře: +420 776 330 071
Tel. do kanceláře: +420 731 618 492
E-mail: tomas.kocman@re-max.cz

Potřebujete poradit/máte zájem o prohlídku?

* – toto pole je nutné vyplnit

Podrobné informace

Číslo zakázky:
ID 094-NP06216
Typ nemovitosti:
Komerční prostory
Druh prostor:
Obchodní
Plocha kanceláří:
487 m²
Druh objektu:
Cihlová
Stav objektu:
Velmi dobrý
Charakter okolní zástavby:
Průmyslová
K nastěhování:
6. 2. 2026
Elektřina:
230 V, 400 V
Odpad:
Kanalizace
Ostatní rozvody:
Kabelové rozvody
Celková plocha:
487 m²
Plocha zahrady:
708 m²
Zastavěná plocha:
568 m²
Počet parkovacích míst:
20
Telekomunikace:
Internet
Typ domu:
Přízemní
Voda:
Dálkový rozvod
Vybavení kanceláří:
Ano
Vybaveno:
Ano
Energetická náročnost budovy:
G