Translate with 
MENU ZAVŘÍT

Prodej skladovacích prostor 1220 m², Skorošice (ID 211-NP04492)

Skorošice, okres Jeseník mapa

11 980 000 Kč ( za nemovitost)

1220 m2
Exkluzivně

Prodej výrobně skladovacího areálu - Skorošice

Ve výhradním zastoupení společností RE/MAX Future, Vám tímto nabízíme ke koupi výrobně skladovací areál se 2 bytovými jednotkami a pozemkem o celkové výměře včetně zastavěných ploch 2 442 m², který díky své poloze a velikosti nabízí širokou škálu možného využití.

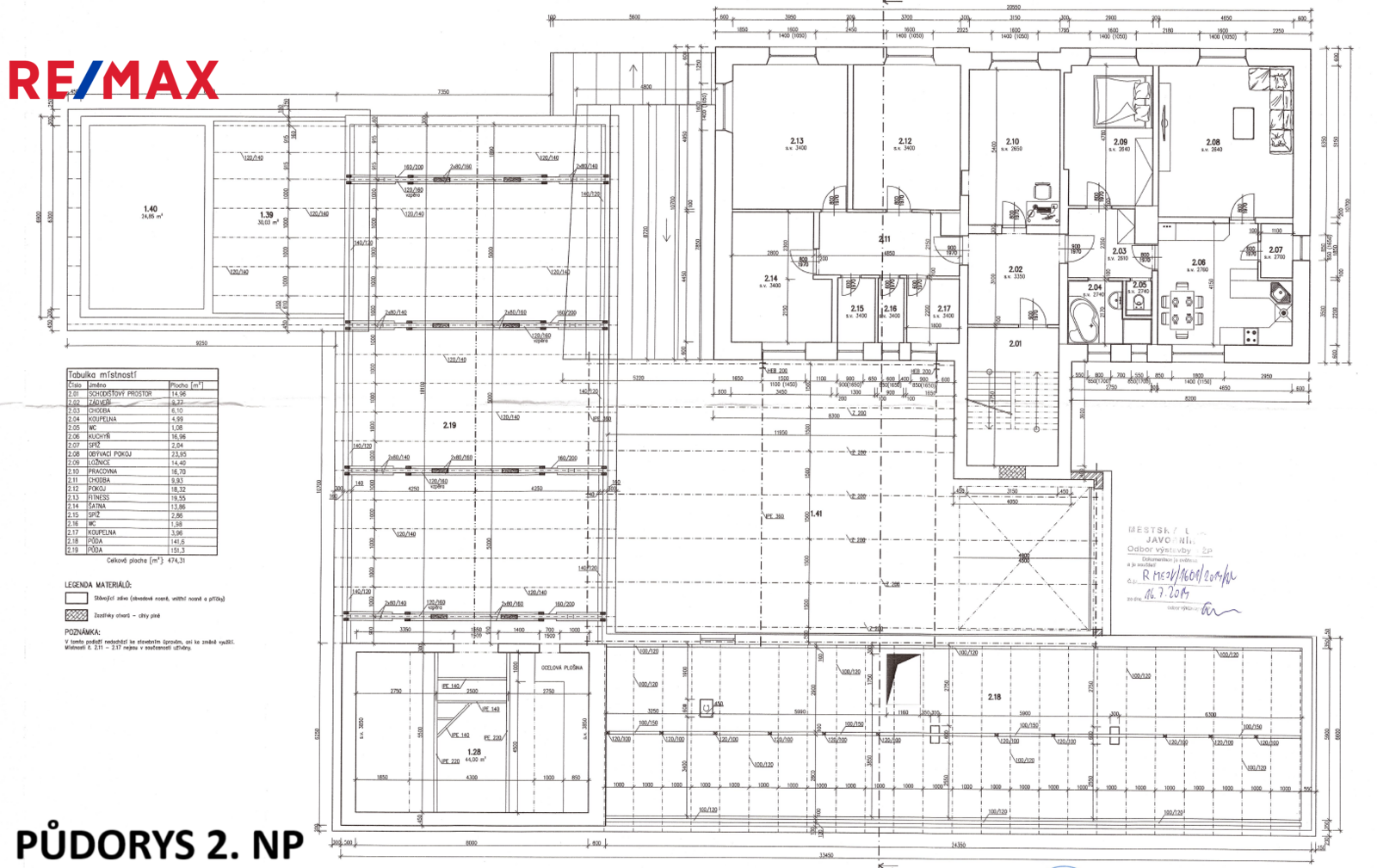
Dvoupodlažní budova s celkovou užitnou plochou 1 220 m², je aktuálně v 1. nadzemním podlaží dispozičně rozdělena na prostory výrobní, skladové a administrativní s odpovídajícím sociálním zázemím. Dominantním prostorem je 148 m² veliká dílna s výsuvnými vraty, která byla využívána pro servisování nákladních automobilů. K dispozici jsou rovněž 2 dvojgaráže.

Druhé nadzemní podlaží, do kterého se dostanete pohodlně skrze široké schodiště, nabízí 2 bytové jednotky. První byt o dispozici 2+1 a výměře 70 m² je rozdělen na obývací pokoj, ložnici, kuchyň s jídelnou, spíž, koupelnu s vanou a sprchovým koutem, toaletu, chodbu. Byt je připraven k užívání. Druhý byt o dispozici 3+1 a výměře 87 m² nabízí 3 samostatné pokoje, přípravu pro kuchyň, spíž, přípravu pro koupelnu, přípravu pro toaletu, chodbu.

Další prostory s možností budoucího užívání představuje prostorná půda a sklep.

Areál se nachází u silnice I. třídy I/60, která vede z Jeseníku přes Žulovou a Javorník až do Polska. Jedná se o výborně dopravně dostupnou lokalitu.

Vzhledem k užitné ploše, velikosti pozemku a celkovému objemu budovy, tuto nabídku za naši kancelář hodnotíme jako vysoce zajímavou.

V případě zájmu o bližší informace mě prosím kontaktujte pomocí e-mailu nebo telefonicky.

Jiří Samek - výhradní prodejce
Cena:
11 980 000 CZK / za nemovitost
Poznámka k ceně:
včetně provize a právního servisu spojeného s převodem nemovitosti
Upozornění:
Prodávající si vyhrazuje právo vybrat kupujícího na základě jím zvolených kritérií.
RX finance

Spočítejte si splátku hypotéky

Na kolik vás vyjde pořízení vlastního bydlení? Zadejte pár informací do naší hypoteční kalkulačky a hned si prohlédněte výsledek.

Kupní cena nemovitosti

11 980 000 Kč

Výše hypotéky

Doba splácení

Vypočítaná měsíční splátka

Úroková sazba 3.6%

260 990 Kč

Hypotéku zařídíme za vás

Ušetřete svůj čas i nervy. Naši makléři zařídí veškeré papírování a dovedou vás až k úspěšnému podpisu smlouvy v bance.

Nechte nám kontakt, náš makléř se v pracovní dny ozve do 24 hodin

* – toto pole je nutné vyplnit
Jiří Samek
RE/MAX Future
U Koruny 1742/16
Hradec Králové, 50002
Česká republika
Tel. na makléře: +420 774 293 860
Tel. do kanceláře: +420 739 486 404
E-mail: jiri.samek@re-max.cz

Potřebujete poradit/máte zájem o prohlídku?

* – toto pole je nutné vyplnit

Podrobné informace

Číslo zakázky:
ID 211-NP04492
Typ nemovitosti:
Komerční prostory
Druh prostor:
Skladovací
Počet podlaží v objektu:
2
Plocha kanceláří:
1 220 m²
Druh objektu:
Cihlová
Stav objektu:
Dobrý
Elektřina:
230 V, 400 V
Odpad:
Kanalizace
Celková plocha:
1 220 m²
Plocha zahrady:
2 442 m²
Zastavěná plocha:
869 m²
Typ domu:
Patrový
Umístění objektu:
Okraj obce
Voda:
Dálkový rozvod