Translate with 
MENU ZAVŘÍT

Prodej pozemku 37224 m², Roudné (ID 261-NP01129)

Roudné, okres České Budějovice mapa

Cena na vyžádání v kanceláři

37224 m2
Exkluzivně

Prodej pozemku 37.224m2 - České Budějovice

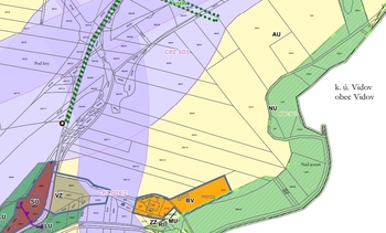
ROUDNÉ U ČESKÝCH BUDĚJOVIC – INVESTIČNÍ POZEMEK VEDLE DÁLNICE D3

Nabízíme na prodej strategicky umístěný pozemek o výměře 37.224 m² přímo u sjezdu č. 141 z dálnice D3 (Roudné – Plav – Včelná – Letiště).
Pozemek má lichoběžníkový tvar, výbornou dopravní dostupnost a přímou viditelnost z dálnice – ideální poloha pro developerský projekt komerčního využití.

✅ vhodné pro skladové a logistické centrum, výrobní areál, showroom nebo servisní zónu
✅ přímý přístup z veřejné komunikace
✅ mimo záplavové území
✅ část pozemku zasahuje do ochranného pásma dopravní infrastruktury
✅ pacht s krátkou výpovědní lhůtou – rychlá možnost realizace

Tento pozemek nabízí vysoký investiční potenciál díky poloze u hlavní dopravní tepny Praha–České Budějovice–Rakousko.
V okolí se připravují další komerční zóny, což zvyšuje hodnotu a atraktivitu lokality.
V případě zájmu kontaktujte makléře nabídky.
Cena:
Cena na vyžádání v kanceláři
Poznámka k ceně:
Upozornění:
Prodávající si vyhrazuje právo vybrat kupujícího na základě jím zvolených kritérií.
Aleš Kudrlička
RE/MAX Optimal
tř. Národní svobody 181/26
Písek, 39701
Česká republika
Tel. na makléře: +420 731 110 367
Tel. do kanceláře: +420 731 110 367
E-mail: ales.kudrlicka@re-max.cz

Potřebujete poradit/máte zájem o prohlídku?

* – toto pole je nutné vyplnit

Podrobné informace

Číslo zakázky:
ID 261-NP01129
Druh pozemku:
Pro komerční výstavbu
Celková plocha:
37 224 m²
Typ nemovitosti:
Pozemky
Doprava:
Dálnice, Silnice
Umístění objektu:
Okraj obce