Translate with 
MENU ZAVŘÍT

Pronájem kancelářských prostor 21 m², Plzeň (ID 179-NP02366)

ulice Písecká, Plzeň – městská část Plzeň 2-Slovany mapa

4 990 Kč (bez DPH, za měsíc)
CÚsporná

21 m2
Exkluzivně

Podnájem kanceláře 21 m2 Písecká ulice v Plzni (u Olympie)

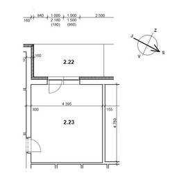
Nabízíme podnájem kanceláře o ploše 21,12 m2 v novostavbě u Olympie, Písecká ulice, Plzeň. K dispozici od 1.11.2025. K podnájmu kanceláře s velkou lodžií (8,6 m2) umístěné v 1. patře náleží jedno parkovací stání za domem a krátkodobě (pro klienty) lze parkovat před budovou. Kancelář s klimatizací není vybavena nábytkem. Půdorys a plochy jsou patrné s přiloženého plánku. Nájemné je uvedeno včetně služeb a energií týkajících se společných prostor (elektřina, úklid, ostraha, vodné), které se nevyúčtovávají. Jedenkrát ročně se vyúčtovává vlastní spotřeba elektřiny (vč. klimatizace) kanceláře a činí cca 7 000 Kč + DPH/rok.
K dispozici je sociální zařízení v přízemí budovy, která nemá výtah. V kanceláři je zaveden vysokorychlostní internet, jehož připojení si nájemce zajistí smluvně s externím poskytovatelem. Velkou výhodou kanceláře je umístění čidla zabezpečovacího systému, který je napojený na bezpečnostní agenturu (HLS) a kamerový systém pro celou budovu a parkovací stání před ní. V kanceláři je osazen komunikátor k odzvonění případným návštěvníkům.
Kancelář je orientována jihozápadním směrem do klidné volné krajiny v blízkosti nákupního centra Olympie.
Cena:
4 990 CZK / za měsíc
Poznámka k ceně:
+ DPH, + 2 600 Kč zálohy na služby a energie; kauce 1 měsíční platba, provize RK 6 990 Kč + DPH
Upozornění:
Pronajímající si vyhrazuje právo vybrat nájemce na základě jím zvolených kritérií.
Ing. Dana Heroutová
RE/MAX Cross
Resslova 9
Plzeň, 30100
Česká republika
Tel. na makléře: +420 733 691 061
Tel. do kanceláře: +420 731 618 422
E-mail: dana.heroutova@re-max.cz

Potřebujete poradit/máte zájem o prohlídku?

* – toto pole je nutné vyplnit

Podrobné informace

Číslo zakázky:
ID 179-NP02366
Typ nemovitosti:
Komerční prostory
Druh prostor:
Kanceláře
Číslo podlaží:
2
Počet podlaží v objektu:
2
Plocha kanceláří:
21 m²
Druh objektu:
Cihlová
Stav objektu:
Velmi dobrý
Charakter okolní zástavby:
Obchodní a obytná
K nastěhování:
1. 11. 2025
Doprava:
Dálnice, Silnice
Elektřina:
230 V
Odpad:
Kanalizace
Celková plocha:
21 m²
Počet parkovacích míst:
1
Telekomunikace:
Internet
Typ domu:
Patrový
Umístění objektu:
Okraj obce
Voda:
Zdroj pro celý objekt
Energetická náročnost budovy:
C