Translate with 
MENU ZAVŘÍT

Prodej domu 245 m², Děpoltovice (ID 294-NP01667)

Děpoltovice – část obce Nivy mapa

14 990 000 Kč ( za nemovitost)
AMimořádně
úsporná

5+
245 m2
629 m2
2
Exkluzivně

Prodej patrového rodinného domu se zahradou a bazénem, Nivy-Děpoltovice

Nabízíme k prodeji atraktivní a velmi dobře udržovaný patrový rodinný dům, který se nachází v klidné lokalitě, na konci slepé ulice, v blízkosti přírody. Okolí je charakteristické lesy, louky a klidnější charakter venkova. Blízko se nachází Děpoltovický rybník, který je využíván ke koupání a rekreaci. Oblast nabízí dobré napojení na turistické trasy i na lyžařská střediska v Krušných horách (Plešivec, Pernink, atd.). Dům je ideální pro rodinné bydlení nebo jako rekreační objekt, nabízí pohodlí, soukromí i moderní vybavení.

Interiér:
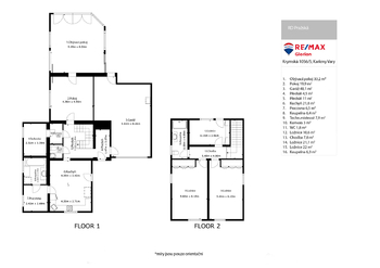
Interiér domu je laděný v přírodním stylu – dřevo dominuje podlahám, stropům i vestavěnému nábytku. První patro nabízí pracovnu, moderní koupelnu s WC, kuchyň, která důmyslně ukrývá pod posunovacím ostrůvkem sklep o velikosti 6m2 (zajištěno odvětrávání-cirkulace vzduchu), hernu pro děti, prostorný obývací prostor s jídelnou a kuchyní v otevřeném konceptu, technické zázemí a garáž. Kuchyňská linka na míru, bohaté úložné prostory, rustikální doplňky, krbová kamna a velké akvárium pod televizí tvoří jedinečnou atmosféru. Ve druhém patře najdeme několik ložnic a koupelnu s WC. Schodiště a detaily z masivu vytváří útulný, ale zároveň reprezentativní vzhled. Nad garáží je prostorná půda (cca 40m2) a nad domem také (cca 80m2), na kterou je přivedené topení což nabízí další možnost vybudovat podkrovní pokoje. Dům je moderně vybavený co se tyká ovládání. Má kamerový systém kolem celého domu a je napojen na bezpečnostní firmu Jablotron. Video telefon připojeny i ke vzdálenému přihlášení. Elektronické venkovní rolety představují moderní a efektivní řešení pro stínění, zabezpečení a tepelnou izolaci oken. Díky elektrickému pohonu a možnosti automatizace poskytnou maximální komfort a ochranu. Navíc přispívají ke snížení energetických nákladů.
Dům je kompletně vytápěný podlahovým topením na tepelné čerpadlo a je pokryt solárními panely o výkonu 34kw. Odpad je řešený čistírnou odpadních vod. Zdroj vody je zajištěn třemi způsoby: Vlastní vrtaná studna na pozemku-používáno k zalévání, studna před domem-splachování WC, zakopaná 12. kubíková nádrž na zahradě na dovezenou pitnou vodu.

Exteriér:
Udržovaná zahrada s trávníkem skrývá vyhřívaný bazén o velikosti 5x3m s terasou a posezením pro letní relax. Dům je situován na rovinatém pozemku s dostatkem soukromí a možností dalšího využití.
Cena:
14 990 000 CZK / za nemovitost
Poznámka k ceně:
Upozornění:
Prodávající si vyhrazuje právo vybrat kupujícího na základě jím zvolených kritérií.
RX finance

Spočítejte si splátku hypotéky

Na kolik vás vyjde pořízení vlastního bydlení? Zadejte pár informací do naší hypoteční kalkulačky a hned si prohlédněte výsledek.

Kupní cena nemovitosti

14 990 000 Kč

Výše hypotéky

Doba splácení

Vypočítaná měsíční splátka

Úroková sazba 3.6%

260 990 Kč

Hypotéku zařídíme za vás

Ušetřete svůj čas i nervy. Naši makléři zařídí veškeré papírování a dovedou vás až k úspěšnému podpisu smlouvy v bance.

Nechte nám kontakt, náš makléř se v pracovní dny ozve do 24 hodin

* – toto pole je nutné vyplnit
Alexandr Mizjuk
RE/MAX Glorion
Krymská 1056/5
Karlovy Vary, 36001
Česká republika
Tel. na makléře: +420 776 395 579
Tel. do kanceláře: +420 776 395 579
E-mail: alexandr.mizjuk@re-max.cz

Potřebujete poradit/máte zájem o prohlídku?

* – toto pole je nutné vyplnit

Podrobné informace

Číslo zakázky:
ID 294-NP01667
Poloha objektu:
Samostatný
Počet podlaží v objektu:
2
Užitná plocha:
245 m²
Plocha parcely:
629 m²
Druh objektu:
Cihlová
Stav objektu:
Velmi dobrý
Typ nemovitosti:
Domy a vily
Doprava:
Silnice, MHD, Autobus
Elektřina:
230 V, 400 V
Garáž:
Ano
Odpad:
Čistička odpadních vod pro celý objekt
Plocha zahrady:
593 m²
Zastavěná plocha:
205 m²
Telekomunikace:
Internet
Typ domu:
Patrový
Energetická náročnost budovy:
A