Translate with 
MENU ZAVŘÍT

Prodej domu 220 m², Brno (ID 353-NP00056)

ulice Klíny, Brno – městská část Brno-Židenice mapa

12 900 000 Kč ( za nemovitost)
ENehospodárná

4x
220 m2
286 m2
4
Exkluzivně

Prodej řadového třípodlažního rodinného domu s předzahrádkou a zahradou ulice Klíny Brno Židenice

K prodeji nabízíme udržovaný rodinný dům v ulici Klíny se zahradou a parkováním na vlastním pozemku před domem.

Dům má tři podlaží a suterén, podlaží jsou spojená vnitřním schodištěm. V domě jsou čtyři obytné místnosti a kuchyň a dvě koupelny a dvě wc. Současný majitel jej v průběhu užívání částečně rekonstruoval a vystavěl v podkroví další obytnou část (kolaudace 2012). Dům o celkové podlahové ploše cca 220 m² je situován na pozemku o výměře 286 m² (z toho zahrada 170 m²) a je napojen na veškeré inženýrské sítě. Dům má pět obytných místností, kuchyni, dvě koupelny a sklep.

Navazující zahrada ve vnitrobloku rodinných domů je oplocená, její součástí je dvůr s pergolou a posezením a zahradní domek. Zahrada je částečně travnatá s okrasnými prvky a částečně využívaná jako užitková se záhony.

Do domu se vstupuje z předzahrádky hlavní chodbou v přízemí, na kterou navazuje schodiště spojující všechna podlaží, chodbou je možné rovněž vstoupit na zahradu domu.

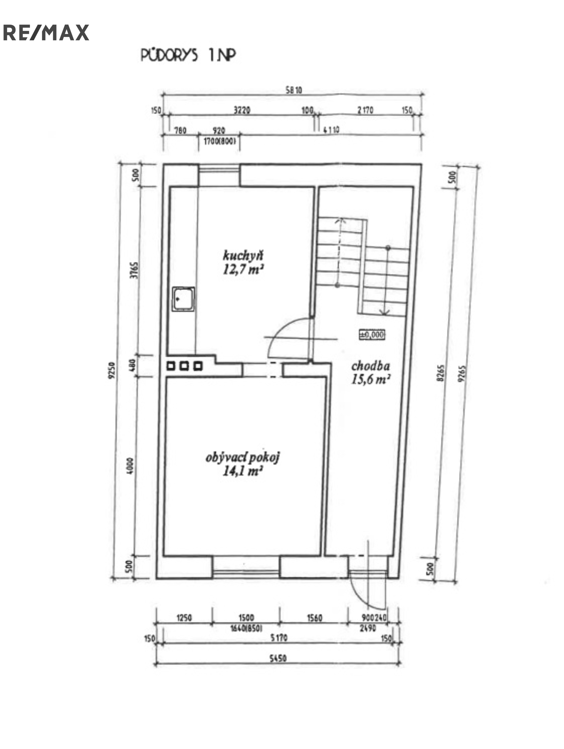
Součástí vstupního přízemí domu (1. NP) je:

- kuchyně orientovaná do dvora a zahrady& spíž, součástí je kuchyňská linka s vestavnými spotřebiči
- obývací pokoj orientovaný do předzahrádky s kachlovými kamny
- vstupní chodba s možností průchodu na zahradu a do dalších podlaží domu

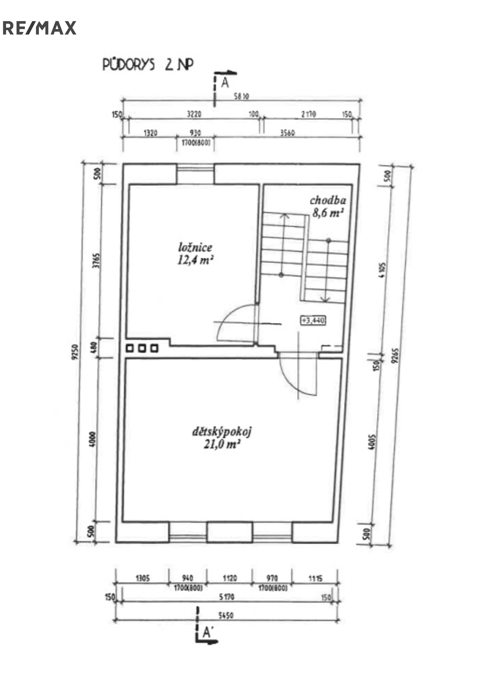
V patře domu (2. NP) jsou dva pokoje:

- velký pokoj orientovaný do ulice západním směrem, pokoj má vestavěné skříně,
- ložnice s vestavěnými skříněmi orientovaná východním směrem do vnitrobloku,
- v mezipatře u schodiště je koupelna se sprchovým koutem a WC.

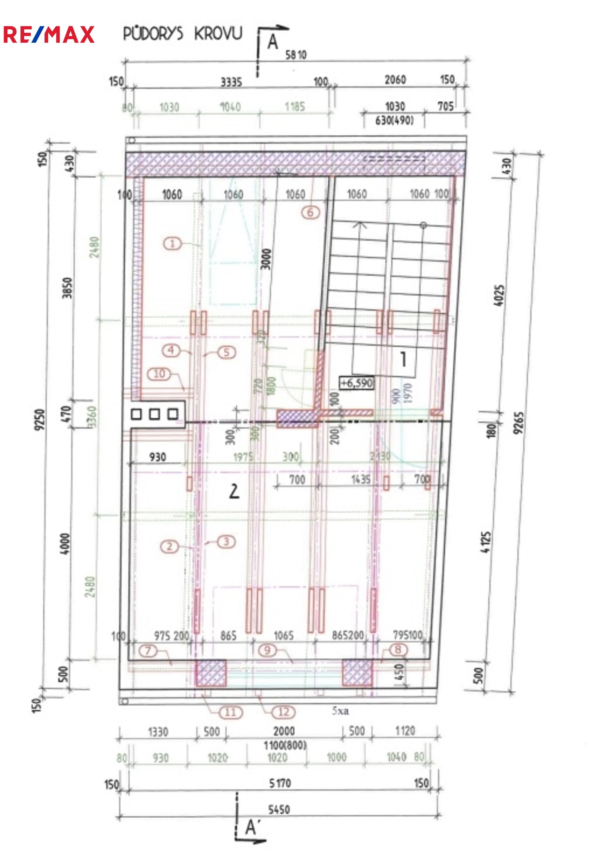
V podkroví domu (3. NP) je jeho nejnovější obytná část:

- dva propojené neoddělené pokoje s vestavnými skříněmi, pokoje jsou orientované do ulice i zahrady



V suterénu domu (1. PP) se nachází:

- technická místnost – sklep
- velká koupelna s rohovou vanou, místem pro pračku, v koupelně je rovněž kondenzační kotel se zásobníkem na teplou vodu, který vytápí celý dům,
- malý odvětrávaný sklep sloužící ke skladování ovoce a zeleniny, fungující rovněž jako vinný sklípek,
- u schodiště do suterénu je umístěno samostatné WC.

Technické informace: Dům je zděný, fasáda zateplená, objekt má plastová okna a vstupní dveře, v domě je elektroinstalace v mědi, byly provedeny nové izolace proti vodě, dům nejeví známky vlhkosti. Schodiště dřevěné, dvouramenné. Vestavba do střechy včetně nové střechy provedena a kolaudována v roce 2012. Vytápění a ohřev vody zajišťuje plynový kondenzační kotel Thermona se zásobníkem na teplou vodu umístěný v suterénu.

Výměry: Šíře domu 5,6 m, hloubka domu 9,3 m. Zastavěná plocha domu: 55 m². Celková podlahová plocha: 220 m². Pozemek: zastavěná plocha domu 55 m2, zastavěná plocha a nádvoří 116 m² (plocha předzahrádky 36 m2, dvůr 25 m2, zahrada 170 m².

Dům je vhodný pro rodinné bydlení, je ihned obyvatelný, udržovaný a připravený na nového majitele.

Na domě nevázne žádné zástavní právo, koupi je možné financovat hypotečním úvěrem. Pro více informací a prohlídky nemovitosti nás kontaktujte.
Cena:
12 900 000 CZK / za nemovitost
Poznámka k ceně:
Upozornění:
Prodávající si vyhrazuje právo vybrat kupujícího na základě jím zvolených kritérií.
RX finance

Spočítejte si splátku hypotéky

Na kolik vás vyjde pořízení vlastního bydlení? Zadejte pár informací do naší hypoteční kalkulačky a hned si prohlédněte výsledek.

Kupní cena nemovitosti

12 900 000 Kč

Výše hypotéky

Doba splácení

Vypočítaná měsíční splátka

Úroková sazba 3.6%

260 990 Kč

Hypotéku zařídíme za vás

Ušetřete svůj čas i nervy. Naši makléři zařídí veškeré papírování a dovedou vás až k úspěšnému podpisu smlouvy v bance.

Nechte nám kontakt, náš makléř se v pracovní dny ozve do 24 hodin

* – toto pole je nutné vyplnit
Ing. František Julínek
RE/MAX Point
Údolní 16
Brno, 60200
Česká republika
Tel. na makléře: +420 733 210 256
Tel. do kanceláře: +420 603 201 623
E-mail: frantisek.julinek@re-max.cz

Potřebujete poradit/máte zájem o prohlídku?

* – toto pole je nutné vyplnit

Podrobné informace

Číslo zakázky:
ID 353-NP00056
Poloha objektu:
Řadový
Počet podlaží v objektu:
4
Užitná plocha:
220 m²
Plocha parcely:
286 m²
Druh objektu:
Cihlová
Stav objektu:
Velmi dobrý
Typ nemovitosti:
Domy a vily
Charakter okolní zástavby:
Obytná
Doprava:
Vlak, Silnice, MHD, Autobus
Elektřina:
230 V, 400 V
Odpad:
Kanalizace
Plocha zahrady:
170 m²
Zastavěná plocha:
116 m²
Plyn:
Plynovod
Počet parkovacích míst:
1
Počet podlaží pod zemí:
1
Typ domu:
Patrový
Umístění objektu:
Klidná část obce
Voda:
Dálkový rozvod
Vybaveno:
Ano
Energetická náročnost budovy:
E