Translate with 
MENU ZAVŘÍT

Prodej nájemního domu 308 m², Rumburk (ID 273-NP04407)

ulice Třída 9. května, Rumburk – část obce Rumburk 1 mapa

12 455 000 Kč ( za nemovitost)
GMimořádně
nehospodárná

308 m2
175 m2
3
Exkluzivně

Prodej činžovního domu 308 m², Třída 9. Května - Rumburk

Prodej zrekonstruovaného činžovního domu v samém centru Rumburku – výnosová investice
Hledáte výnosovou investici s možností dalšího rozšíření? Nabízíme k prodeji kompletně zrekonstruovaný činžovní dům v Rumburku, který kombinuje komerční prostory a byty s dalším rozvojovým potenciálem.

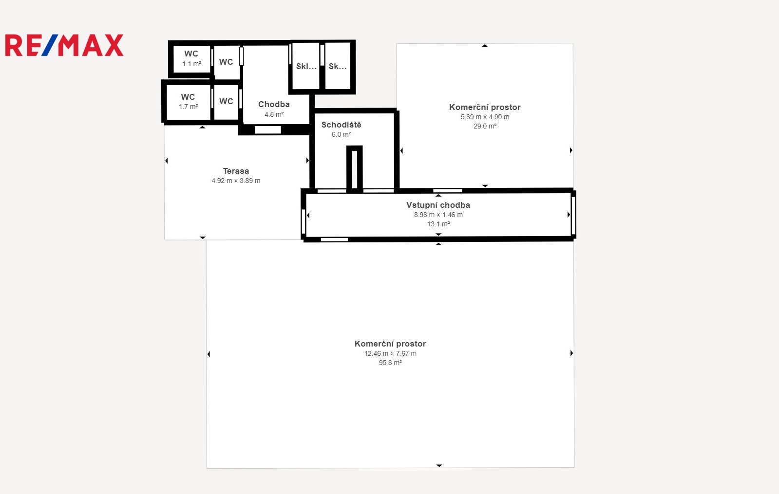
Dispozice nemovitosti:

Přízemí (156,42 m²)
- Dva komerční prostory – (95,8 m² a 29 m²) - již pronajaté
- Chodba a ostatní prostory – 31,62 m²

První patro (152 m²)
Dva byty – levý 4+kk - 80,1 m² / pravý 3+kk - 64 m²
Chodba – 7,9 m²

Podkroví
Připravené pro další dva byty, stačí jen začít - možno vidět na videu.

Aktuální počet jednotek je 4, po dodělání se zvýší na 6.

Během rekonstrukce byly využity ty nejlepší materiály. Koupelny jsou obložené mramorem a v obou bytech se nachází vestavěné skříně pro lepší využití prostoru.
Nemovitost je částečně podsklepena. Sklep je uzavřen bezpečnostními dveřmi, stejně jako hlavní vchod do nemovitosti.

Klíčové výhody:
Kompletní rekonstrukce – bez nutnosti dalších investic
Výnos z pronájmu – stabilní příjem z bytových i nebytových prostor
Možnost rozšíření – potenciál pro celkem 6 bytových jednotek, půda připravená
Výborná lokalita – centrum města, skvělá dostupnost a občanská vybavenost

Tato nemovitost představuje ideální příležitost pro investory, kteří hledají stabilní příjem s možností dalšího rozvoje.

Energetický štítek budovy nebyl dodán, proto zvolena třída G.
Plochy místností jsou orientační.

Pro více informací k nemovitosti, či domluvení prohlídky mě neváhejte kontaktovat.
Cena:
12 455 000 CZK / za nemovitost
Poznámka k ceně:
Upozornění:
Prodávající si vyhrazuje právo vybrat kupujícího na základě jím zvolených kritérií.
RX finance

Spočítejte si splátku hypotéky

Na kolik vás vyjde pořízení vlastního bydlení? Zadejte pár informací do naší hypoteční kalkulačky a hned si prohlédněte výsledek.

Kupní cena nemovitosti

12 455 000 Kč

Výše hypotéky

Doba splácení

Vypočítaná měsíční splátka

Úroková sazba 3.6%

260 990 Kč

Hypotéku zařídíme za vás

Ušetřete svůj čas i nervy. Naši makléři zařídí veškeré papírování a dovedou vás až k úspěšnému podpisu smlouvy v bance.

Nechte nám kontakt, náš makléř se v pracovní dny ozve do 24 hodin

* – toto pole je nutné vyplnit
Lukáš Kukla
RE/MAX Partner
Řeporyjské náměstí 16
Praha 5 - Řeporyje, 15500
Česká republika
Tel. na makléře: +420 702 120 698
Tel. do kanceláře: +420 800 434 434
E-mail: lukas.kukla@re-max.cz

Potřebujete poradit/máte zájem o prohlídku?

* – toto pole je nutné vyplnit

Podrobné informace

Číslo zakázky:
ID 273-NP04407
Počet podlaží v objektu:
3
Celková plocha:
308 m²
Druh objektu:
Cihlová
Stav objektu:
Po rekonstrukci
Typ nemovitosti:
Nájemní domy
Charakter okolní zástavby:
Obchodní a obytná
K nastěhování:
20. 10. 2025
Doprava:
Silnice, MHD, Autobus
Odpad:
Kanalizace
Užitná plocha:
308 m²
Zastavěná plocha:
175 m²
Plyn:
Plynovod
Umístění objektu:
Centrum obce
Voda:
Dálkový rozvod
Vybaveno:
Ano
Energetická náročnost budovy:
G