Translate with 
MENU ZAVŘÍT

Prodej bytu 3+1 v osobním vlastnictví 75 m², Brno (ID 268-NP03325)

ulice Labská, Brno – městská část Brno-Starý Lískovec mapa

7 100 000 Kč ( za nemovitost)
GMimořádně
nehospodárná

1x
3x
75 m2
1/8
Exkluzivně

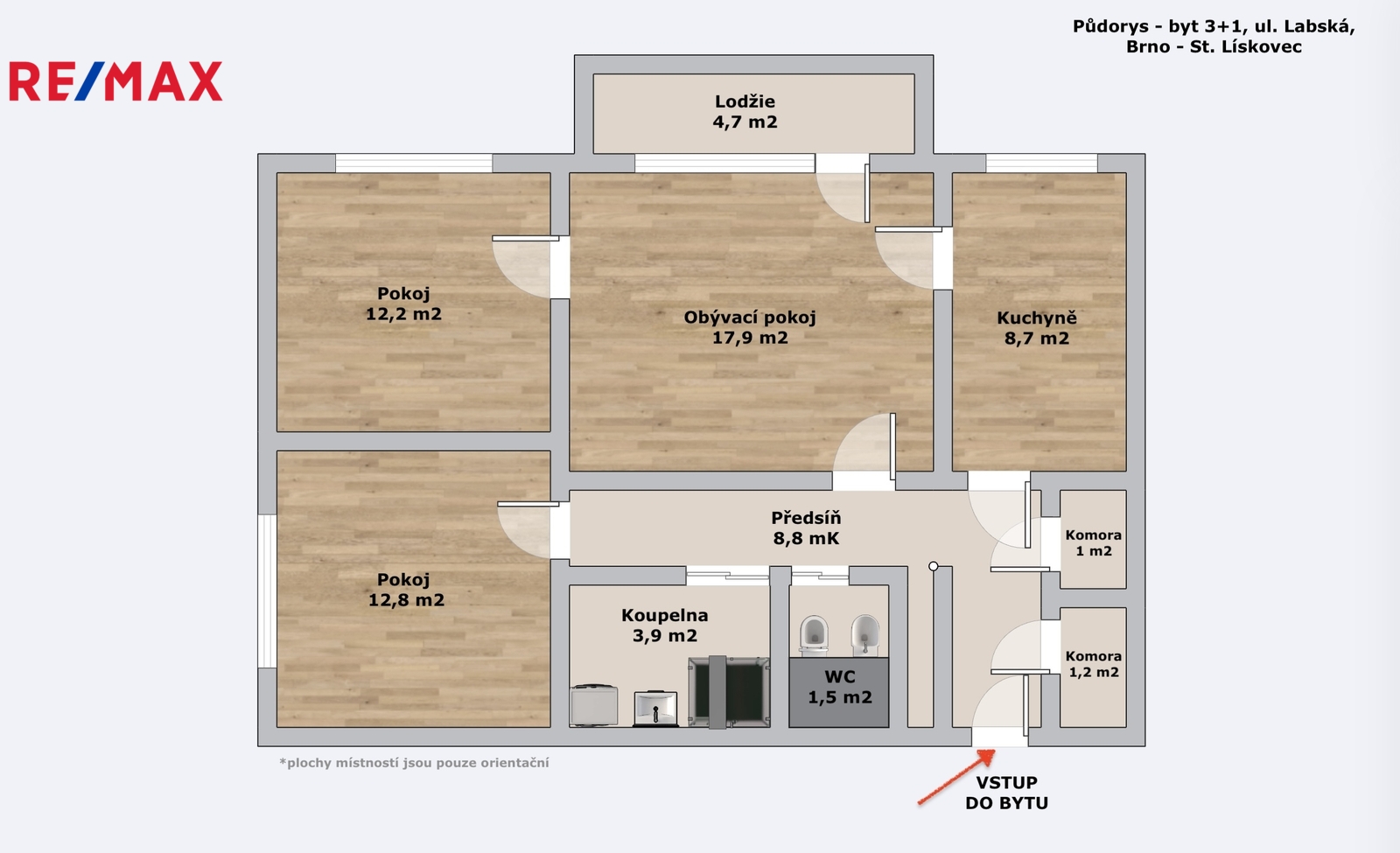
Prodej bytu 3+1, ul. Labská, Brno - Starý Lískovec

V zastoupení majitele Vám ke koupi nabízíme byt 3+1 v žádané lokalitě Brno – Starý Lískovec na ulici Labská.
Jednotka o celkové výměře 74,8 m2 (vč. sklepní kóje a lodžie 4,7 m2) se nachází v 1.NP/8 panelového bytového domu, který prošel kompletní revitalizací – zateplení fasády, plastová okna, nová střecha, stoupací vedení, modernizované výtahy a vstupní prostory.

Dispozice a vybavení:
- Prostorná vstupní chodba s úložným prostorem (2 komory)
- Kuchyň s jídelním koutem a zachovalou, plně funkční kuchyňskou linkou s myčkou
- Obývací pokoj se vstupem na zasklenou lodžii s výhledem do klidné zeleně
- Dvě neprůchozí ložnice, ideální pro rodinu či spolubydlení
- Zděné bytové jádro
- Zrekonstruovaná koupelna se sprchovým koutem, samostatné WC, bidet
- Sklep, možnost využití společných prostor kočárkárny, kolárny a sušárny

Díky orientaci a poloze ve zvýšeném přízemí je v bytě příjemná teplota i během horkých letních dnů, ideální pro ty, kteří hledají komfort bez nutnosti klimatizace.

Bytový dům se nachází v klidné a vyhledávané části Brna s výbornou občanskou vybaveností. V docházkové vzdálenosti zastávky MHD, obchody, školky, školy, Campus Square, FN Bohunice i Univerzitní kampus MU. Lokalita je bohatá na zeleň – v okolí je několik parků i přírodních ploch ideálních k procházkám a odpočinku.

Průkaz energetické náročnosti je ve zpracování, uvádíme tedy nyní v souladu s právními předpisy energetickou třídu G. Majitel si vyhrazuje právo zvolit kupujícího na základě jím stanovených kritérií. Všechny uvedené údaje mají pouze informativní charakter a nepředstavují nabídku ve smyslu § 1731 nebo § 1732 občanského zákoníku, ani veřejný příslib dle § 1733 občanského zákoníku. Z této nabídky tak nevzniká nárok na uzavření smlouvy.
Cena:
7 100 000 CZK / za nemovitost
Poznámka k ceně:
vč. realitního a právního servisu
Upozornění:
Prodávající si vyhrazuje právo vybrat kupujícího na základě jím zvolených kritérií.
RX finance

Spočítejte si splátku hypotéky

Na kolik vás vyjde pořízení vlastního bydlení? Zadejte pár informací do naší hypoteční kalkulačky a hned si prohlédněte výsledek.

Kupní cena nemovitosti

7 100 000 Kč

Výše hypotéky

Doba splácení

Vypočítaná měsíční splátka

Úroková sazba 3.6%

260 990 Kč

Hypotéku zařídíme za vás

Ušetřete svůj čas i nervy. Naši makléři zařídí veškeré papírování a dovedou vás až k úspěšnému podpisu smlouvy v bance.

Nechte nám kontakt, náš makléř se v pracovní dny ozve do 24 hodin

* – toto pole je nutné vyplnit
Veronika Zbořilová
RE/MAX Delux
Křenová 538/22
Brno, 60200
Česká republika
Tel. na makléře: +420 775 674 320
Tel. do kanceláře: +420 602 703 897
E-mail: veronika.zborilova@re-max.cz

Potřebujete poradit/máte zájem o prohlídku?

* – toto pole je nutné vyplnit

Podrobné informace

Číslo zakázky:
ID 268-NP03325
Dispozice:
3+1
Číslo podlaží:
1
Počet podlaží v objektu:
8
Podlahová plocha:
75 m²
Druh objektu:
Panelová
Stav objektu:
Dobrý
Vlastnictví:
Osobní
Typ nemovitosti:
Byty
Odpad:
Kanalizace
Užitná plocha:
70 m²
Zastavěná plocha:
326 m²
Plyn:
Plynovod
Výtah:
Ano
Energetická náročnost budovy:
G