Translate with 
MENU ZAVŘÍT

Prodej domu 165 m², Buštěhrad (ID 023-NP08690)

ulice Za Humny, Buštěhrad mapa

11 950 000 Kč ( za nemovitost)
BVelmi
úsporná

5+
165 m2
441 m2
2
Exkluzivně

Novostavba ŘRD s garáží a terasou, užitná plocha 165 m2, pozemek 441 m2, Buštěhrad.

Nabízíme Vám nízkoenergetickou, zděnou novostavbu řadového rodinného dvojdomu se dvěma bytovými jednotkami. Tato krajní bytová jednotka má dispozici 5+kk s garáží, terasou a půdou. Vnitřní užitná plocha bytové jednotky činí bez půdy 165 m2, výměra pozemku 441 m2. Klidné místo navazující na stávající zástavbu rodinných domů v Buštěhradu. Výstavba probíhá v rámci již III. etapy úspěšného projektu Buštěhrad - Za Humny.

Aktuálně jsou domy zkolaudované, mají přidělené čísla popisné a jsou řádně zapsané v katastru nemovitostí včetně prohlášení vlastníka.

Nyní máte možnost výběru dekorů finálních povrchů (dlažba, vinyl, odklady) a interiérových dveří od firmy Sapeli v rámci našich standardů dle Vašich představ. Vše je již zahrnuto v kupní ceně.

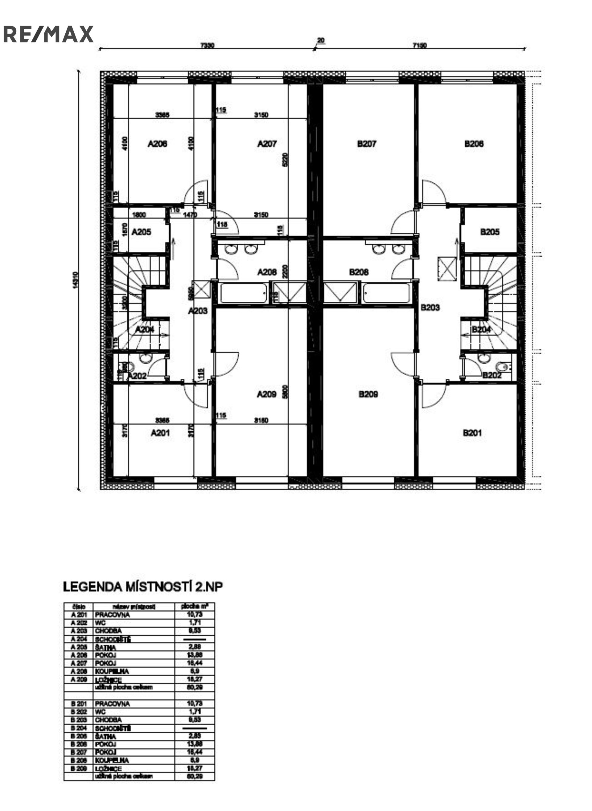
Dispozice:
1. NP: garáž, zádveří, koupelna s WC, chodba, technická místnost, komora, obývací pokoj s kuchyňským koutem a přímým vstupem na terasu.
2. NP: 4 samostatné pokoje, šatna, koupelna s vanou a sprchovým koutem, samostatné WC, chodba s dostatkem denního světla, které zajišťuje světlovod.
Nad 2. NP se dále nachází půda s dostatkem úložného prostoru.

Vybavenost domu:
- podlahy v přízemí dlažba, v patře vinyl,
- interiérové dveře Sapeli,
- keramická dlažba a obklady RAKO,
- plastová izolační trojskla se šesti komorovým rámem,
- zdivo Porotherm,
- zateplení domu polystyrenem greywall,
- sekční garážová vrata Hörmann na dálkové ovládání,
- střešní krytina betonová taška Bramac Classic,
- v oknech stavební připravenost pro montáž předokenních žaluzií,
- vytápění domu zajišťuje plynový kotel zn. Buderus,
- podlahové topení v celém domě s prostorovým termostatem,
- v koupelnách jsou instalované otopné žebříky s elektrickými patronami,
- rekuperačním větráním systému Lunos,
- příprava na pro fotovoltaiku,
- v sanitě jsou zastoupené značky Hansgrohe, Ravak, Geberit, Kolo,...

Inženýrské sítě: voda, kanalizace, elektřina a plyn.

Energetická náročnost B - velmi úsporná.

Parkování v garáži + 2 parkovací místa před domem.

Město Buštěhrad nabízí velmi dobrou občanskou vybavenost (školka, základní škola, základní umělecká škola, lékař, pošta, restaurace, supermarket, fotbalový oddíl SK Buštěhrad, Sokol, Junák). Výborná dopravní dostupnost do Kladna 4 km, Praha 14 km.

Možnost financování hypoteční úvěrem, který Vám v případě zájmu pomůžeme vyřídit v rámci našich služeb.

Těším se na Vás při prohlídce. Přijďte si vybrat dům pro váš nový domov.

Poznámka: některé fotografie interiéru jsou použité z již dokončené II. etapy výstavby pro Vaši představu, v jaké standardu budou domy dokončené.
Cena:
11 950 000 CZK / za nemovitost
Poznámka k ceně:
kupní cena vč. právního servisu, advokátní úschovy kupní ceny a odměny RK
Upozornění:
Prodávající si vyhrazuje právo vybrat kupujícího na základě jím zvolených kritérií.
RX finance

Spočítejte si splátku hypotéky

Na kolik vás vyjde pořízení vlastního bydlení? Zadejte pár informací do naší hypoteční kalkulačky a hned si prohlédněte výsledek.

Kupní cena nemovitosti

11 950 000 Kč

Výše hypotéky

Doba splácení

Vypočítaná měsíční splátka

Úroková sazba 3.6%

260 990 Kč

Hypotéku zařídíme za vás

Ušetřete svůj čas i nervy. Naši makléři zařídí veškeré papírování a dovedou vás až k úspěšnému podpisu smlouvy v bance.

Nechte nám kontakt, náš makléř se v pracovní dny ozve do 24 hodin

* – toto pole je nutné vyplnit
Lukáš Hajník
RE/MAX G8 Reality 2
Kleinerova 1466
Kladno, 27201
Česká republika
Tel. na makléře: +420 731 618 477
Tel. do kanceláře: +420 312 240 239
E-mail: lukas.hajnik@re-max.cz

Potřebujete poradit/máte zájem o prohlídku?

* – toto pole je nutné vyplnit

Podrobné informace

Číslo zakázky:
ID 023-NP08690
Poloha objektu:
Řadový
Počet podlaží v objektu:
2
Užitná plocha:
165 m²
Plocha parcely:
441 m²
Druh objektu:
Cihlová
Stav objektu:
Novostavba
Typ nemovitosti:
Domy a vily
Charakter okolní zástavby:
Obytná
K nastěhování:
21. 10. 2025
Doprava:
Dálnice, Silnice, MHD, Autobus
Elektřina:
230 V, 400 V
Garáž:
Ano
Odpad:
Kanalizace
Ostatní rozvody:
Kabelová televize, Kabelové rozvody, Ostatní rozvody
Zastavěná plocha:
105 m²
Plyn:
Plynovod
Telekomunikace:
Internet
Typ domu:
Patrový
Umístění objektu:
Klidná část obce
Voda:
Dálkový rozvod
Energetická náročnost budovy:
B