Translate with 
MENU ZAVŘÍT

Prodej domu 106 m², Klobouky u Brna (ID 268-NP03333)

ulice Krátká, Klobouky u Brna mapa

3 900 000 Kč ( za nemovitost)
GMimořádně
nehospodárná

4x
106 m2
126 m2
2
Exkluzivně Rezervace

Prodej rodinného domu, ul. Krátká, Klobouky u Brna

V zastoupení majitele Vám ke koupi nabízíme rodinný patrový dům o dispozici 4+1 s verandou, půdou a částečným podsklepením, který se nachází v klidné lokalitě na ul. Krátká jen pár minut chůze od centra města Klobouky u Brna.

Zákládní informace:
- podlahová plocha: 106 m2
- zastavěná plocha: 81 m2
- celková plocha pozemku (zast. ploch a nádvoří): 126 m2
- další plocha k užívání (na základě nájemní smlouvy od obce): 60 m2
- půda, částečně podsklepeno, na pozemku hospodářské stavení

Dispozice domu:
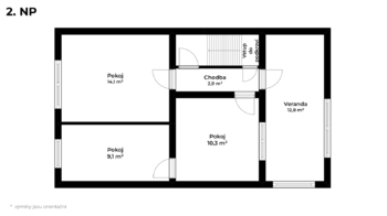
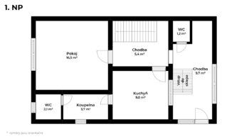
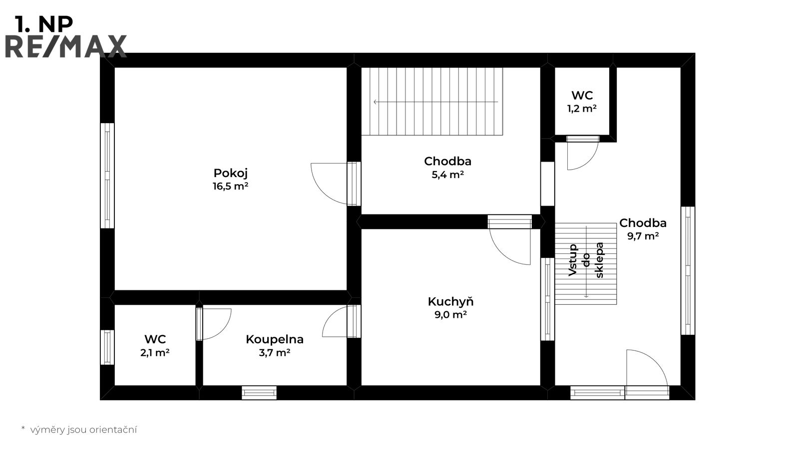
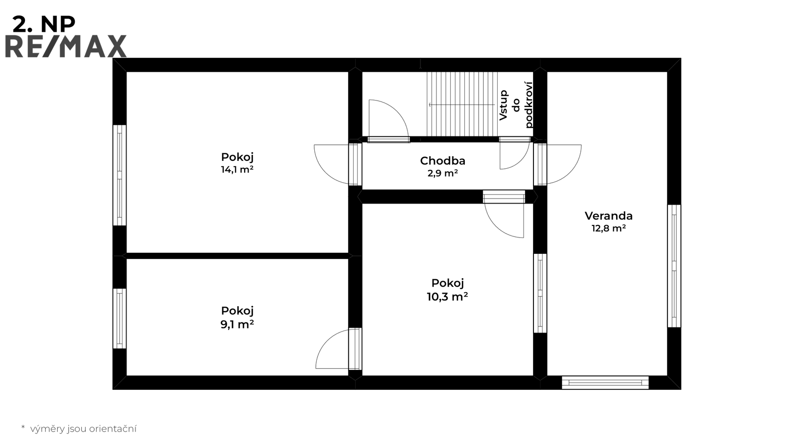
1.NP – prostorné zádveří se vstupem do sklepa, pokoj, kuchyně, koupelna s vanou, 2 x samostatná toaleta, 2x spíž
2.NP - tři pokoje, veranda, z chodby vstup na prostornou čistou půdu

Technický stav a vybavení:
- před cca 10 lety instalována plastová okna, v zádveří nová plastová okna a vstupní dveře (r. 2024)
- stropy kompletně zatepleny, dům zateplen ze severní strany
- napojeno na veřejný vodovod a kanalizaci, studna s užitkovou vodou
- na střeše solární panely – úspora energie a nižší provozní náklady
- elektřina 240/400 V (původní rozvody)
- ohřev vody elektrickým bojlerem
- vytápění plynovým kotlem (k budoucí výměně)
- přípojka kabelové TV
Dům je suchý, udržovaný, volný ihned.

Klobouky u Brna jsou atraktivní lokalitou s dominantou obce - historickým větrným mlýnem, ideální pro rodiny i milovníky přírody a historie. Výborná dopravní dostupnost – do Brna i Hodonína 30 min. autem, pravidelné autobusové spojení - zastávka IDS JMK (konečná zastávka i přestupní linky). V obci kompletní občanská vybavenost – mateřská a základní škola, gymnázium, MěSOŠ, zdravotní středisko, pošta, obchody, restaurace, sportoviště, v blízkosti domu pekárna, večerka, asijské bistro...

Neváhejte kontaktovat makléřku nabídky pro více informací či domluvení termínu prohlídky.

Všechny uvedené údaje mají pouze informativní charakter a nepředstavují nabídku ve smyslu § 1731 nebo § 1732 občanského zákoníku, ani veřejný příslib dle § 1733 občanského zákoníku. Z této nabídky tak nevzniká nárok na uzavření smlouvy. Průkaz energetické náročnosti zatím nebyl předložen, uvádíme proto v souladu s právními předpisy energetickou třídu G. Majitel si vyhrazuje právo zvolit kupujícího na základě jím stanovených kritérií.
Cena:
3 900 000 CZK / Rezervováno
Poznámka k ceně:
vč. realitního a právního servisu
Upozornění:
Prodávající si vyhrazuje právo vybrat kupujícího na základě jím zvolených kritérií.
RX finance

Spočítejte si splátku hypotéky

Na kolik vás vyjde pořízení vlastního bydlení? Zadejte pár informací do naší hypoteční kalkulačky a hned si prohlédněte výsledek.

Kupní cena nemovitosti

3 900 000 Kč

Výše hypotéky

Doba splácení

Vypočítaná měsíční splátka

Úroková sazba 3.6%

260 990 Kč

Hypotéku zařídíme za vás

Ušetřete svůj čas i nervy. Naši makléři zařídí veškeré papírování a dovedou vás až k úspěšnému podpisu smlouvy v bance.

Nechte nám kontakt, náš makléř se v pracovní dny ozve do 24 hodin

* – toto pole je nutné vyplnit
Veronika Zbořilová
RE/MAX Delux
Křenová 538/22
Brno, 60200
Česká republika
Tel. na makléře: +420 775 674 320
Tel. do kanceláře: +420 602 703 897
E-mail: veronika.zborilova@re-max.cz

Potřebujete poradit/máte zájem o prohlídku?

* – toto pole je nutné vyplnit

Podrobné informace

Číslo zakázky:
ID 268-NP03333
Poloha objektu:
Rohový
Počet podlaží v objektu:
2
Užitná plocha:
106 m²
Plocha parcely:
126 m²
Druh objektu:
Smíšená
Stav objektu:
Dobrý
Typ nemovitosti:
Domy a vily
Odpad:
Kanalizace
Zastavěná plocha:
81 m²
Plyn:
Plynovod
Typ domu:
Patrový
Umístění objektu:
Centrum obce
Voda:
Dálkový rozvod
Energetická náročnost budovy:
G