Translate with 
MENU ZAVŘÍT

Prodej bytu 4+kk v osobním vlastnictví 140 m², Ostrava (ID 133-NP02508)

ulice Oblá, Ostrava – městská část Mariánské Hory a Hulváky mapa

8 490 000 Kč ( za nemovitost)
GMimořádně
nehospodárná

kk
4x
140 m2
3/3
Exkluzivně

TOP loftový byt 4+kk s terasou a výhledy – klidná lokalita plná zeleně, ulice Oblá, Ostrava

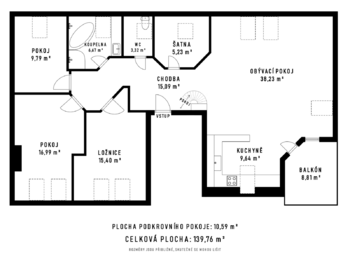
Nabízíme Vám ke koupi jedinečný loftový byt na výjmečné ploše 139,76 m2, pečlivě navržený architektem, který v sobě spojuje promyšlený design, vzdušnost a osobitý styl.

Když se řekne dokonalá rovnováha mezi městem a klidem, přesně to vystihuje tento výjimečný loftový byt.

Prostorný, vzdušný, s duší a stylem, který se v Ostravě hledá jen těžko.

V srdci zelené části ulice Oblá – daleko od ruchu, přesto na dosah všeho – vznikl byt, který vás pohltí světlem, otevřeností a energií prostoru.

Kde se design potkává s klidem

Na ploše 139,76 m² se rozkládá interiér, který působí spíš jako moderní městský dům než byt.
Už při vstupu vás ohromí vysoké stropy, otevřený prostor a přirozené světlo, které proudí ze všech stran.

Dominantou bytu je impozantní obývací prostor s kuchyní, propojený s terasou do zeleně – místo, kde se ráno probouzí s vůní kávy a večer odpočívá s pohledem na západ slunce.

Stylové schodiště do loftu dodává bytu charakter.
Horní galerie dnes slouží jako pracovna, ale může být klidně i relaxační zóna, knihovna, ateliér nebo ložnice snů.

Zbytek bytu doplňují dětský pokoj, útulná pracovna (nebo pokoj pro hosty) a moderní koupelna s vanou i sprchou. Samostatné WC je samozřejmostí.

Proč právě tento byt?
• Dispozice 4+kk s otevřeným loftem – vzdušnost a prostor
• Soukromá terasa s výhledem do zeleně
• Loft ideální pro home office, relax nebo tvorbu
• Slunný obývací pokoj s kuchyní a přímým vstupem na terasu
• Kvalitní materiály, promyšlené detaily, vysoké stropy
• Klidná lokalita ulice Oblá – bez paneláků, s množstvím zeleně
• Skvělá dostupnost – pár minut pěšky k MHD, obchodům i parku


Lokalita, kde se žije jinak

Ulice Oblá patří k těm místům, kde máte pocit, že jste „mimo město“, i když centrum máte doslova pár minut od sebe.
Okolí je tiché, plné stromů a zeleně – ideální prostředí pro ty, kteří chtějí žít moderně, ale s klidem a soukromím.

Byt je vhodný jak pro rodinu, která hledá nadčasové bydlení s prostorem, tak pro pár nebo jednotlivce, kteří milují design, světlo a originalitu.


Tento loft je víc než jen byt.
Je to životní styl – spojení elegance, svobody a pohody.
Bydlení, které má energii velkoměsta, ale duši domova.

Pro sjednání prohlídky mě neváhejte kontaktovat.
Ráda Vám tento jedinečný byt osobně představím.


Jitka Fröhlichová
Vaše realitní makléřka s citem pro detail a prezentaci
Cena:
8 490 000 CZK / za nemovitost
Poznámka k ceně:
Upozornění:
Prodávající si vyhrazuje právo vybrat kupujícího na základě jím zvolených kritérií.
RX finance

Spočítejte si splátku hypotéky

Na kolik vás vyjde pořízení vlastního bydlení? Zadejte pár informací do naší hypoteční kalkulačky a hned si prohlédněte výsledek.

Kupní cena nemovitosti

8 490 000 Kč

Výše hypotéky

Doba splácení

Vypočítaná měsíční splátka

Úroková sazba 3.6%

260 990 Kč

Hypotéku zařídíme za vás

Ušetřete svůj čas i nervy. Naši makléři zařídí veškeré papírování a dovedou vás až k úspěšnému podpisu smlouvy v bance.

Nechte nám kontakt, náš makléř se v pracovní dny ozve do 24 hodin

* – toto pole je nutné vyplnit
Jitka Fröhlichová
RE/MAX Actual
Kadláčkova 360/19
Kopřivnice, 74221
Česká republika
Tel. na makléře: +420 776 257 694
Tel. do kanceláře: +420 725 686 530
E-mail: jitka.frohlichova@re-max.cz

Potřebujete poradit/máte zájem o prohlídku?

* – toto pole je nutné vyplnit

Podrobné informace

Číslo zakázky:
ID 133-NP02508
Dispozice:
4+kk
Číslo podlaží:
3
Počet podlaží v objektu:
3
Podlahová plocha:
140 m²
Druh objektu:
Cihlová
Stav objektu:
Velmi dobrý
Vlastnictví:
Osobní
Typ nemovitosti:
Byty
Charakter okolní zástavby:
Obytná
Elektřina:
230 V
Odpad:
Kanalizace
Užitná plocha:
140 m²
Zastavěná plocha:
190 m²
Plyn:
Plynovod
Umístění objektu:
Klidná část obce
Voda:
Dálkový rozvod
Energetická náročnost budovy:
G