Translate with 
MENU ZAVŘÍT

Prodej malého objektu 300 m², Lesonice (ID 258-NP01086)

Lesonice, okres Třebíč mapa

3 200 000 Kč ( za nemovitost)
GMimořádně
nehospodárná

261 m2
Exkluzivně

Prodej investiční nemovitosti vhodné pro občanské vybavení, služby nebo bydlení v obci Lesonice

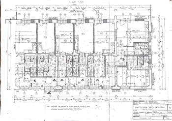
Nabízíme k prodeji objekt, který dříve sloužil jako součást místní školy. Nemovitost o celkové výměře 1848 m², sestávají ze zastavěné plochy a nádvoří 300 m² a navazující ostatní plochou o výměře 1548 m². Stavba je aktuálně ve fázi rozestavěné rekonstrukce – původně s projektem na ubytovnu pro seniory s možností vytvořit až 7 samostatných bytových jednotek 1+kk, každou s vlastním sociálním zázemím.

V objektu jsou provedeny vnitřní příčky a hrubé podlahy, nosné konstrukce jsou původní a stabilní. Střecha je pultová s pozinkovanou krytinou. Odpady v rámci jednotlivých jednotek jsou připraveny, napojení na inženýrské sítě zatím nebylo realizováno.

Hlavní výhody nemovitosti:
Projekt na 7 samostatných jednotek (možnost úprav dle záměru nového vlastníka)
Stabilní nosná konstrukce, částečně provedené stavební práce
Flexibilní využití – vhodné pro občanské služby, sociální či zdravotní zařízení, kanceláře, provozovnu nebo rekreační objekt

Aktuální územní plán – občanské vybavení veřejné (OV):

Hlavní využití:
- stavby a zařízení veřejného občanského vybavení.

Přípustné využití:
- stavby a zařízení pro hromadnou rekreaci;
- stavby a zařízení komerčního a sportovního občanského vybavení;
- dopravní infrastruktura;
- zeleň bez rozlišení převažujícího způsobu využití;
- oplocení;
- vodní plochy, vodní toky a vodohospodářské stavby a zařízení;
- veřejná prostranství a veřejná zeleň.

Podmíněné přípustné využití:
- stavby pro trvalé bydlení, pokud jsou integrovány do staveb a objektů občanského vybavení;
- technická infrastruktura s výjimkou výroben elektřiny z obnovitelných zdrojů energie, které nejsou umisťovány na konstrukcí staveb (fotovoltaické panely na střechách a fasádách objektů).

Nepřípustné využití:
- stavby, zařízení a jiná opatření nesouvisející s hlavním nebo přípustným využitím.

Podmínky prostorového uspořádaní:
- výšková regulace zástavby - respektovat výšku stávající zástavby;
- koeficient zastavění - nestanovuje se;
- koeficient zeleně - nestanovuje se.

Realizace plánovaného projektu není podmínkou, budoucí využití je možné dle záměru nového vlastníka a aktuálnímu ÚP.

Tato nemovitost představuje zajímavou investiční příležitost ideální pro podnikání v oblasti sociálních služeb, ubytování či občanského vybavení.

Pro více informací nebo sjednání prohlídky mě neváhejte kontaktovat. Těším se na Vás!
Cena:
3 200 000 CZK / za nemovitost
Poznámka k ceně:
Upozornění:
Prodávající si vyhrazuje právo vybrat kupujícího na základě jím zvolených kritérií.
RX finance

Spočítejte si splátku hypotéky

Na kolik vás vyjde pořízení vlastního bydlení? Zadejte pár informací do naší hypoteční kalkulačky a hned si prohlédněte výsledek.

Kupní cena nemovitosti

3 200 000 Kč

Výše hypotéky

Doba splácení

Vypočítaná měsíční splátka

Úroková sazba 3.6%

260 990 Kč

Hypotéku zařídíme za vás

Ušetřete svůj čas i nervy. Naši makléři zařídí veškeré papírování a dovedou vás až k úspěšnému podpisu smlouvy v bance.

Nechte nám kontakt, náš makléř se v pracovní dny ozve do 24 hodin

* – toto pole je nutné vyplnit
Michal Cejpek
RE/MAX Miramar
Bělohorská 1397/36
Praha 6 - Břevnov, 16900
Česká republika
Tel. na makléře: +420 737 387 872
Tel. do kanceláře: +420 739 555 554
E-mail: michal.cejpek@re-max.cz

Potřebujete poradit/máte zájem o prohlídku?

* – toto pole je nutné vyplnit

Podrobné informace

Číslo zakázky:
ID 258-NP01086
Počet podlaží v objektu:
1
Celková plocha:
300 m²
Druh objektu:
Cihlová
Stav objektu:
Před rekonstrukcí
Typ nemovitosti:
Malé objekty, garáže
Užitná plocha:
261 m²
Plocha zahrady:
1 548 m²
Zastavěná plocha:
300 m²
Typ domu:
Přízemní
Umístění objektu:
Klidná část obce
Energetická náročnost budovy:
G