Translate with 
MENU ZAVŘÍT

Prodej domu 122 m², Orlová (ID 130-NP03502)

ulice K Zimovudce, Orlová – část obce Lutyně mapa

6 000 000 Kč ( za nemovitost)
GMimořádně
nehospodárná

5+
122 m2
5658 m2
1
Exkluzivně

Prodej rodinného domu 122m², s garáží a hosp.budovou, pozemek 5658m², Orlová - Horní Lutyně

Jako atraktivní investiční příležitost nabízíme ve výhradním zastoupení majitele k prodeji rodinný dům s rozsáhlými pozemky s možností další výstavby v lokalitě Horní Lutyně, ulice K Zimovudce, Orlová.
Jedná se o soubor pozemků o celkové výměře 5887m², sestávající z uvedených pozemků:
Parc.č. 1137, s výměrou 996m² - zastavěná plocha a nádvoří, Parc.č. 1138, výměra 1351m² - zahrada, Parc.č. 1141, výměra 3448m² - orná půda, Parc.č. 1143/1, výměra 92m² – ostatní plocha. Inženýrské sétě vedou u hranice pozemku.
Pozemky jsou rovinaté, umístěné ve velmi klidné lokalitě, v územním plánu obce jsou vedeny jako stavební: kategorie BI – bydlení individuální. Dle aktuálních podmínek výstavby dle informací poskytnutých stavebním úřadem bude možná výstavba až 4 dalších rodinných domů, viz přiložená územní studie a vizualizace budoucí výstavby.
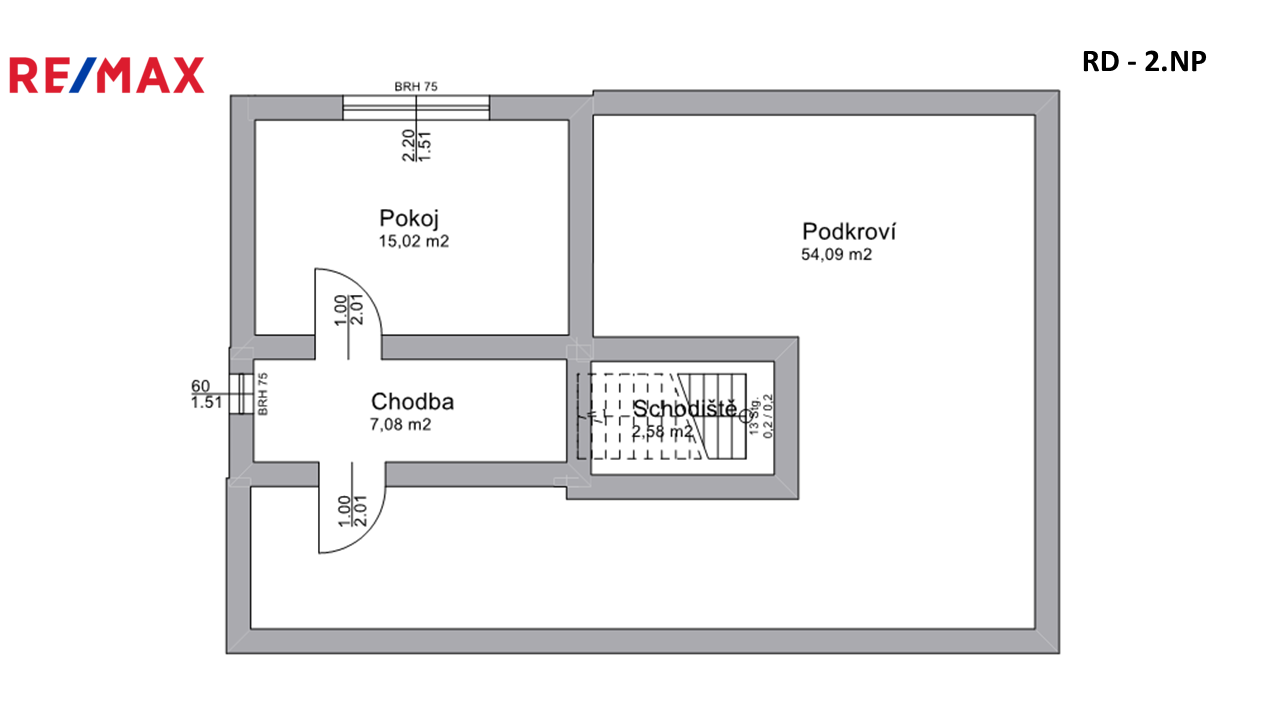
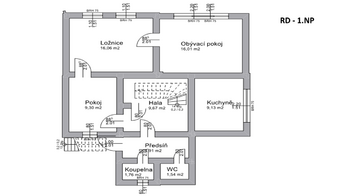
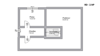
Na parcele č. 1137 je umístěn rodinný dům s užitnou plochou 122m², a dále hosp.budova (76m²) a garáž s přístřeškem (31m²). Všechny umístěné stavby jsou určeny k rekonstrukci nebo kompletní přestavbě, ev. demolici, a vybudování nového rezidenčního bydlení. Dům má dispozici 4+1, a možné další rozšíření o podkrovní část (70m²). Stavba má smíšený základ a svislé konstrukce, vnitřní vyzdívky z cihel, dům je částečně podsklepený. Stropy jsou kombinované, střecha sedlová s nosnou trámovou konstrukcí, krytina hliníkový plech. Podlahy dřevěné. Vytápění bylo původně řešeno lokálními kamny na tuhá paliva. Dům je napojen na obecní vodovod, na pozemku je přípojka zem.plynu, nové napojení na elektřinu od ČEZ Distribuce, odpad je řešen jímkou. Původní rozvody elektřiny NN 240V. Přístup k nemovitosti je po obecní komunikaci. Parcela č.1137 a 1138 jsou navíc oploceny.
Velice klidná lokalita, blízkost centra Orlové - dostupnost chůzí sportovní areál Na Stuchlíkovci a Letní kino. Plná občanská vybavenost v centru Orlové (škola, školka, pošta, obchody a služby, blízkost SŠ&VOŠ Dakol). Výborná dopravní dostupnost: Ostrava-centrum autem 15min., Karviná a Havířov 10min., nájezd D1 EXIT 372 15min., blízké průmyslové zóny, zastávka MHD 3min.
Prohlídka nemovitostí je možná po dohodě. Zdarma zajistíme financování této nemovitosti.
Prodávající si vyhrazuje právo na volbu kupujícího podle jím zvolených kritérií.
Cena:
6 000 000 CZK / za nemovitost
Poznámka k ceně:
včetně provize, právních služeb a úschovy fin.prostředků
Upozornění:
Prodávající si vyhrazuje právo vybrat kupujícího na základě jím zvolených kritérií.
RX finance

Spočítejte si splátku hypotéky

Na kolik vás vyjde pořízení vlastního bydlení? Zadejte pár informací do naší hypoteční kalkulačky a hned si prohlédněte výsledek.

Kupní cena nemovitosti

6 000 000 Kč

Výše hypotéky

Doba splácení

Vypočítaná měsíční splátka

Úroková sazba 3.6%

260 990 Kč

Hypotéku zařídíme za vás

Ušetřete svůj čas i nervy. Naši makléři zařídí veškeré papírování a dovedou vás až k úspěšnému podpisu smlouvy v bance.

Nechte nám kontakt, náš makléř se v pracovní dny ozve do 24 hodin

* – toto pole je nutné vyplnit
Lukáš Dulava
RE/MAX Elite Reality 2
Dělnická 752/78
Havířov - Prostřední Suchá, 73564
Česká republika
Tel. na makléře: +420 731 633 328
Tel. do kanceláře: +420 733 373 964
E-mail: lukas.dulava@re-max.cz

Potřebujete poradit/máte zájem o prohlídku?

* – toto pole je nutné vyplnit

Podrobné informace

Číslo zakázky:
ID 130-NP03502
Poloha objektu:
Řadový
Počet podlaží v objektu:
1
Užitná plocha:
122 m²
Plocha parcely:
5 658 m²
Druh objektu:
Smíšená
Stav objektu:
Velmi dobrý
Typ nemovitosti:
Domy a vily
Charakter okolní zástavby:
Obytná
Doprava:
Silnice, MHD, Autobus
Elektřina:
230 V
Garáž:
Ano
Plocha zahrady:
5 658 m²
Zastavěná plocha:
122 m²
Plyn:
Plynovod
Telekomunikace:
Telefon
Typ domu:
Přízemní
Voda:
Dálkový rozvod
Energetická náročnost budovy:
G