Translate with 
MENU ZAVŘÍT

Prodej bytu 2+kk v osobním vlastnictví 71 m², Praha 5 - Hlubočepy (ID 323-NP00186)

ulice Štěpařská, Praha 5 – Hlubočepy mapa

8 800 000 Kč ( za nemovitost)
BVelmi
úsporná

kk
2x
71 m2
4/7
Exkluzivně

Prodej bytu 2+kk s balkonem, šatnou a garážovým stáním na Barrandově

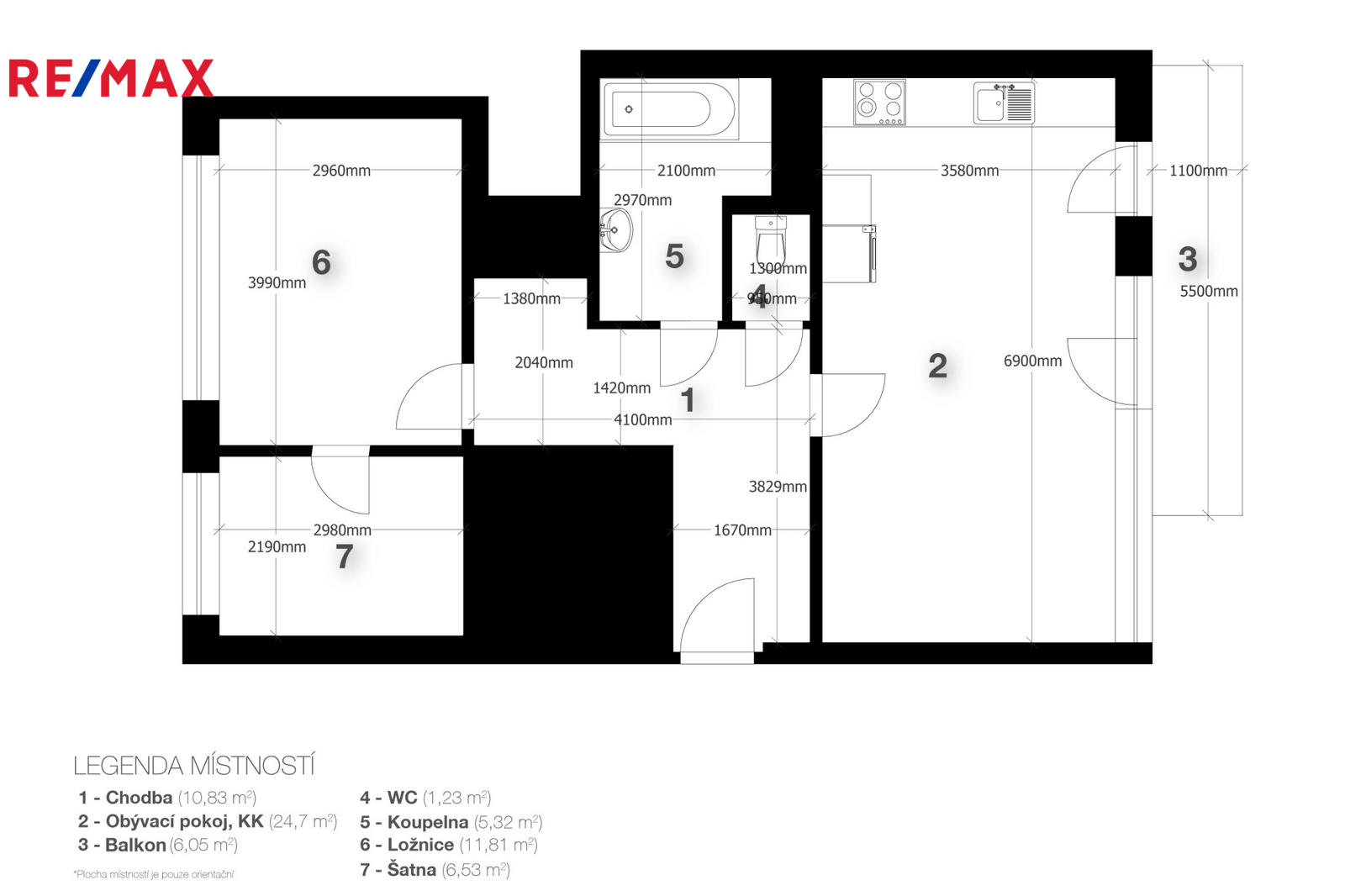
Nabízíme k prodeji světlý a velmi dobře řešený byt o dispozici 2+kk o celkové užitné ploše 68 m² ve 4. nadzemním podlaží bytového domu na oblíbeném Barrandově.

Interiér působí vzdušně a příjemně díky velkým dřevěným oknům s výhledem do klidného vnitrobloku. Komfort bydlení doplňují předokenní rolety, které umožňují regulaci světla i dostatek soukromí.

Obývací část je propojena s kuchyňským koutem, kde je instalována kuchyňská linka na míru s kamennou pracovní deskou a vestavěnými spotřebiči. V celém bytě je položena kvalitní dřevěná podlaha. Úložné prostory jsou řešeny vestavěnými skříněmi a praktickou šatnou přístupnou přímo z ložnice, což výrazně zvyšuje komfort každodenního bydlení.

Dispozici dále tvoří koupelna a oddělené WC. K bytu náleží balkon o velikosti 6 m², sklep o výměře 2 m² a vlastní parkovací stání v podzemní garáži, které je již zahrnuto v ceně.

Byt se prodává kompletně vybavený – včetně nábytku, kožené sedačky, audiosystému i velkoformátové televize. Je tak připraven k okamžitému nastěhování bez nutnosti dalších investic.

Dům má energetickou třídu B, je úsporný s nízkými provozními náklady, vybavený moderním výtahem a dlouhodobě velmi dobře udržovaný.

Klidná část Barrandova, která nabízí pohodlné bydlení s velmi dobrou dopravní dostupností. V bezprostřední blízkosti domu je hypermarket Albert a další obchody pro každodenní nákupy.

Tramvajová zastávka Poliklinika Barrandov je vzdálena přibližně 5 minut chůze a nabízí přímé spojení na Smíchov, kam se pohodlně dostanete zhruba za 15 minut. Lokalita disponuje kompletní občanskou vybaveností – v okolí najdete menší obchody, služby, základní i mateřské školy.

V docházkové vzdálenosti je rovněž Poliklinika Barrandov a Aqua Park Barrandov. Milovníci přírody a aktivního pohybu ocení blízkost Prokopského údolí, které je ideální pro procházky, běh nebo cyklistiku a od domu je vzdálené přibližně 10 minut chůze.

Pokud hledáte pohodlné bydlení s vlastním parkováním, dostatkem úložného prostoru a výbornou dostupností do centra, tento byt stojí za osobní prohlídku.

Rád vám jej osobně představím.
Cena:
8 800 000 CZK / za nemovitost
Poznámka k ceně:
Upozornění:
Prodávající si vyhrazuje právo vybrat kupujícího na základě jím zvolených kritérií.
RX finance

Spočítejte si splátku hypotéky

Na kolik vás vyjde pořízení vlastního bydlení? Zadejte pár informací do naší hypoteční kalkulačky a hned si prohlédněte výsledek.

Kupní cena nemovitosti

8 800 000 Kč

Výše hypotéky

Doba splácení

Vypočítaná měsíční splátka

Úroková sazba 3.6%

260 990 Kč

Hypotéku zařídíme za vás

Ušetřete svůj čas i nervy. Naši makléři zařídí veškeré papírování a dovedou vás až k úspěšnému podpisu smlouvy v bance.

Nechte nám kontakt, náš makléř se v pracovní dny ozve do 24 hodin

* – toto pole je nutné vyplnit
Lukáš Kulík
RE/MAX Life
ČSA 152/11
Milovice, 28923
Česká republika
Tel. na makléře: +420 602 050 282
Tel. do kanceláře: +420 608 068 505
E-mail: lukas.kulik@re-max.cz

Potřebujete poradit/máte zájem o prohlídku?

* – toto pole je nutné vyplnit

Podrobné informace

Číslo zakázky:
ID 323-NP00186
Dispozice:
2+kk
Číslo podlaží:
4
Počet podlaží v objektu:
7
Podlahová plocha:
71 m²
Druh objektu:
Cihlová
Stav objektu:
Velmi dobrý
Vlastnictví:
Osobní
Typ nemovitosti:
Byty
Charakter okolní zástavby:
Obytná
K nastěhování:
14. 2. 2026
Doprava:
MHD
Elektřina:
230 V, 400 V
Garáž:
Ano
Odpad:
Kanalizace
Ostatní rozvody:
Kabelová televize
Užitná plocha:
60 m²
Počet podlaží pod zemí:
2
Telekomunikace:
Internet
Umístění objektu:
Klidná část obce
Voda:
Dálkový rozvod
Vybaveno:
Ano
Výtah:
Ano
Energetická náročnost budovy:
B
Měrná vypočtená roční spotřeba energie v kWh/m²/rok:
75