Translate with 
MENU ZAVŘÍT

Prodej domu 115 m², Nosislav (ID 344-NP00574)

ulice Vinohradská, Nosislav mapa

8 190 000 Kč ( za nemovitost)
GMimořádně
nehospodárná

5+
115 m2
705 m2
1
Exkluzivně

Venkovský rodinný dům Nosislav

Exkluzívně nabízíme k prodeji rodinný dům se sedlovou střechou, nacházející se na ulici Vinohradská v části obce Nosislav, v okrese Brno-venkov. Dům je součástí tradiční řadové venkovské zástavby s funkčním průjezdem do dvora. Je napojen na veřejný vodovod pitné vody a také na veřejnou splaškovou kanalizaci. Ústřední vytápění je zajištěno závěsným kondenzačním plynovým kotlem.
Dům je vhodný jak pro rodinné bydlení, tak pro víkendové pobyty.

Dispozičně se jedná o RD s jednou bytovou jednotkou se třemi pokoji, kuchyní, koupelnou a samostatným WC.
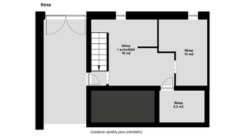
V podkroví se nachází další dva pokoje. Dům je částečně podsklepen prostorným, členěným sklepem, ve kterém je umístěn bojler a kotel. Vstup do sklepa a výstup do podkroví je z průjezdu.

Současný objekt byl postaven přibližně v šedesátých letech minulého století a zkolaudován v roce 1970. Stavební konstrukce jsou původní z doby výstavby. V posledních letech dům prošel částečnou rekonstrukcí, byly vyměněny některé výplně otvorů, zateplena uliční fasáda. V interiéru byly instalovány nové podlahové krytiny. Částečná rekonstrukce proběhla na technických rozvodech (voda, odpady, kanalizace) a zdrojích tepla (kondenzační plynový kotel, elektrický ohřívač vody).

Na pozemku se nachází další stavba, ve které je situována garáž, dílna a bývalá prádelna (přívod vody, kamna). Tento objekt je také částečně podsklepen - nachází se zde malý vinný sklep.
Zadní část zahrady je tvořena několika betonem vyztuženými terasami, na kterých je vysazena vinná réva. Na vrchu pozemku je bývalý včelín.

Nosislav má velice slušnou občanskou vybavenost a co člověk nenajde v Nosislavi, zařídí v 4,5 km vzdálených Židlochovicích. V obci můžeme najít hned několik obchodů, pobočku pošty, obecní knihovnu, restauraci. Nachází se zde relativně nově zrekonstruovaná trojtřídní školka s vlastní zahradou. Na školku navazuje základní škola do 5. třídy. Druhý stupeň ZŠ a Gymnázium je pak v Židlochovicích, případně v Hustopečích. Pro milovníky sportu se nabízí workoutové hřiště, tenisové kurty, fotbalové hřiště, hasiči, pěkné cyklostezky...
Nosislav se nachází v krásné přírodě přírodního parku Výhon (na vrcholu Výhonu je rozhledna Akátová věž). V okolí je romantická kopcovitá krajina, na které se rozkládají rozsáhlé vinohrady a ovocné sady.

S výhodnou polohou v klidné části Nosislavi, obklopené přírodou, se tento rodinný dům stává ideálním místem pro rodinný život nebo relax. Blízkost Brna nabízí široké možnosti kulturního vyžití a služeb, přitom si v Nosislavi užijete poklidnou atmosféru malebného venkovského prostředí.

Pro podrobnější informace o nemovitosti, nebo pro domluvení přesného termínu prohlídky mě neváhejte kontaktovat.

Cena včetně advokátní úschovy kupní ceny a zprostředkovatelské provize.
V případě vícero zájemců, bude nemovitost prodána formou AUKCE a majitel upřednostní nejlepší obdrženou nabídku.
Cena:
8 190 000 CZK / za nemovitost
Poznámka k ceně:
Cena včetně advokátní úschovy kupní ceny a zprostředkovatelské provize.
Upozornění:
Prodávající si vyhrazuje právo vybrat kupujícího na základě jím zvolených kritérií.
RX finance

Spočítejte si splátku hypotéky

Na kolik vás vyjde pořízení vlastního bydlení? Zadejte pár informací do naší hypoteční kalkulačky a hned si prohlédněte výsledek.

Kupní cena nemovitosti

8 190 000 Kč

Výše hypotéky

Doba splácení

Vypočítaná měsíční splátka

Úroková sazba 3.6%

260 990 Kč

Hypotéku zařídíme za vás

Ušetřete svůj čas i nervy. Naši makléři zařídí veškeré papírování a dovedou vás až k úspěšnému podpisu smlouvy v bance.

Nechte nám kontakt, náš makléř se v pracovní dny ozve do 24 hodin

* – toto pole je nutné vyplnit
PhDr. Eva Leňová
RE/MAX Easy
28. října 1610/95
Ostrava, 70200
Česká republika
Tel. na makléře: +420 722 484 787
Tel. do kanceláře: +420 722 484 787
E-mail: eva.lenova@re-max.cz

Potřebujete poradit/máte zájem o prohlídku?

* – toto pole je nutné vyplnit

Podrobné informace

Číslo zakázky:
ID 344-NP00574
Poloha objektu:
Řadový
Počet podlaží v objektu:
1
Užitná plocha:
115 m²
Plocha parcely:
705 m²
Druh objektu:
Cihlová
Stav objektu:
Před rekonstrukcí
Typ nemovitosti:
Domy a vily
Charakter okolní zástavby:
Venkovská
Elektřina:
230 V
Garáž:
Ano
Odpad:
Kanalizace
Zastavěná plocha:
140 m²
Plyn:
Plynovod
Počet parkovacích míst:
3
Typ domu:
Přízemní
Umístění objektu:
Klidná část obce
Voda:
Dálkový rozvod
Energetická náročnost budovy:
G
Měrná vypočtená roční spotřeba energie v kWh/m²/rok:
336