Translate with 
MENU ZAVŘÍT

Prodej domu 152 m², Neratovice (ID 202-NP03052)

ulice Hlavní, Neratovice – část obce Mlékojedy mapa

5 255 000 Kč ( za nemovitost)
GMimořádně
nehospodárná

5+
152 m2
264 m2
2
Exkluzivně

Rodinný dům u Labe – Mlékojedy u Neratovic

Dvoupodlažní rodinný dům o podlahové ploše 152 m² stojí na pozemku o výměře 264 m² v obci Mlékojedy, přímo u řeky Labe a na konci klidné slepé ulice, na kterou navazuje cyklostezka. Dům je určen k celkové rekonstrukci.

Hlavní přednosti nemovitosti:

• Klidné umístění u Labe – dům se nachází na konci slepé ulice s minimálním provozem, pár kroků od cyklostezky a hned u Labe. V okolí je spousta zeleně a nic vás tu nebude rušit.
• Skvělá dostupnost za prací do Prahy a Mělníka – autem jste v Mělníku za 15 minut, v Brandýse nad Labem za 20 minut a v Praze–Letňanech do půl hodiny.
• Dům je prázdný a připravený k rekonstrukci – můžete začít ihned a upravit si dispozici i styl domu přesně podle svých představ.

Dispozice a popis domu:

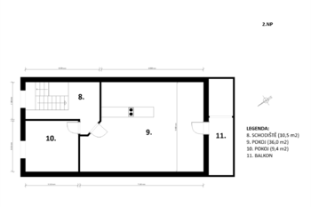
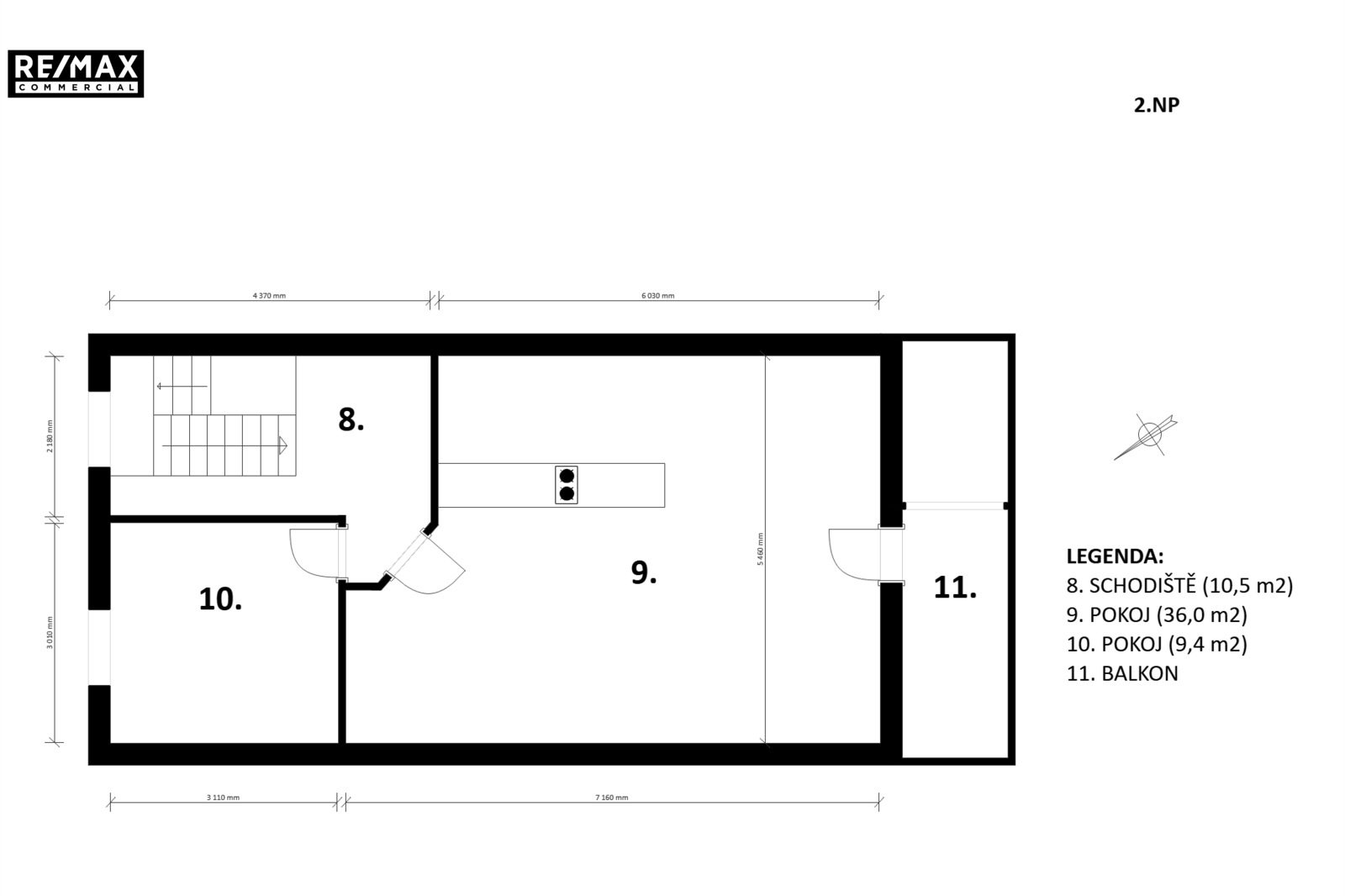
V přízemí se nachází vstupní předsíň, centrální obytná místnost s kuchyňským koutem, krbem a schodištěm do podkroví. Dále jsou zde tři samostatné pokoje a boční vchod. Kuchyň je orientována do zahrady na jihovýchod, obytné místnosti do ulice na severozápad. V podkroví se nachází chodba, dva pokoje a balkon.

Technické a stavební informace:

Dům je zděný, postavený z cihel a tvárnic, se stropy z dřevěných trámů. Střecha je sedlová s plechovou krytinou. Konstrukce odpovídá době výstavby a vyžaduje kompletní rekonstrukci. Úpravy byly již částečně zahájeny, například výměnou oken za plastová. Objekt je napojen na elektřinu, vodovod a kanalizaci. Vytápění v současnosti zajišťuje krb v centrální místnosti.

Lokalita:

Mlékojedy jsou menší, klidná obec přímo u řeky Labe, která navazuje na Tišice. V obci se nachází obchod, mateřská škola a pivnice. Jen pár minut odtud leží pískovna Tišice – oblíbené místo pro koupání, paddleboarding a relaxaci. Okolí je ideální pro cyklistiku, běh i procházky podél řeky. Do okolních měst i do Prahy dojedete pohodlně autem do 30 minut. Do Neratovic, kde je vlakové nádraží, lze dojít pěšky (cca 1,5 km).

Závěr:

Další informace Vám makléř rád poskytne telefonicky nebo při osobní prohlídce.
Cena:
5 255 000 CZK / za nemovitost
Poznámka k ceně:
Exkluzivní nabídka včetně právního servisu a služeb.
Upozornění:
Prodávající si vyhrazuje právo vybrat kupujícího na základě jím zvolených kritérií.
RX finance

Spočítejte si splátku hypotéky

Na kolik vás vyjde pořízení vlastního bydlení? Zadejte pár informací do naší hypoteční kalkulačky a hned si prohlédněte výsledek.

Kupní cena nemovitosti

5 255 000 Kč

Výše hypotéky

Doba splácení

Vypočítaná měsíční splátka

Úroková sazba 3.6%

260 990 Kč

Hypotéku zařídíme za vás

Ušetřete svůj čas i nervy. Naši makléři zařídí veškeré papírování a dovedou vás až k úspěšnému podpisu smlouvy v bance.

Nechte nám kontakt, náš makléř se v pracovní dny ozve do 24 hodin

* – toto pole je nutné vyplnit
Jaroslav Dvořák
RE/MAX Commercial Group
Antala Staška 511/40
Praha 4 - Krč, 14000
Česká republika
Tel. na makléře: +420 733 618 711
Tel. do kanceláře: +420 733 152 553
E-mail: jaroslav.dvorak@re-max.cz

Potřebujete poradit/máte zájem o prohlídku?

* – toto pole je nutné vyplnit

Podrobné informace

Číslo zakázky:
ID 202-NP03052
Poloha objektu:
Samostatný
Počet podlaží v objektu:
2
Užitná plocha:
152 m²
Plocha parcely:
264 m²
Druh objektu:
Smíšená
Stav objektu:
Před rekonstrukcí
Typ nemovitosti:
Domy a vily
Charakter okolní zástavby:
Obytná
K nastěhování:
11. 11. 2025
Odpad:
Kanalizace
Zastavěná plocha:
122 m²
Typ domu:
Patrový
Umístění objektu:
Klidná část obce
Voda:
Dálkový rozvod
Energetická náročnost budovy:
G