Translate with 
MENU ZAVŘÍT

Pronájem kancelářských prostor 38 m², České Budějovice (ID 111-NP08587)

ulice Dr. Stejskala, České Budějovice – část obce České Budějovice 1 mapa

5 500 Kč ( za měsíc)
GMimořádně
nehospodárná

38 m2
Exkluzivně

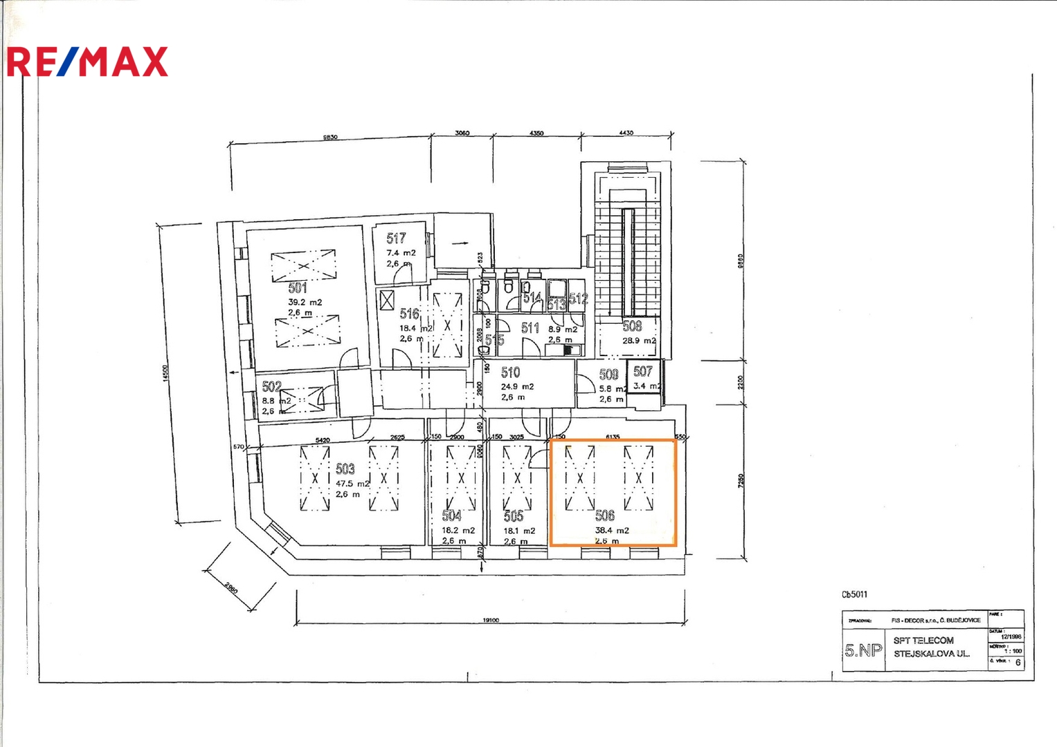
Pronájem kanceláře 38,4 m2 v centru města ČB, Dr. Stejskala

Nabízíme k pronájmu kancelář o velikosti 38,4 m² v 5. nadzemním podlaží administrativní budovy, která se nachází v centru města České Budějovice, konkrétně v historické a zrekonstruované budově v ulici Dr. Stejskala. Objekt je postaven z kvalitní cihly a stav jeho konstrukce i vnitřních prostor je velmi dobrý, což zajišťuje příjemné pracovní prostředí.

V budově je k dispozici výtah, což značně usnadňuje přístup do kanceláře. Vzhledem k výšce, ve které se prostory nachází, je možnost nechat se inspirovat výhledem na historické centrum města. Kancelář má dobrou dispozici a je ideální volbou pro malou firmu hledající reprezentativní prostory v atraktivní lokalitě.
K dispozici je společná kuchyňka a toalety na patře ihned naproti kanceláři.

Nájemné je stanoveno na 5.500 Kč/měsíc , k němuž se připočítávají servisní poplatky ve výši 600 Kč/měsíc a zálohy na energie ve výši 2.000 Kč/měsíc. Při podpisu nájemní smlouvy je požadována kauce ve výši 7.000 Kč. Prostor je k dispozici ihned. Je důležité poznamenat, že parkovací místo není součástí pronájmu. Je možné ke kanceláři pronajmout úložné místo - hák na jízdní kolo za 150 Kč/měsíc.

V případě zájmu o prohlídku nás neváhejte kontaktovat.
Cena:
5 500 CZK / za měsíc
Poznámka k ceně:
+ 600,- serv. poplatky + 2000,- zálohy na energie + 7000,- kauce
Upozornění:
Pronajímající si vyhrazuje právo vybrat nájemce na základě jím zvolených kritérií.
Ing. Karel Exl
RE/MAX Dynamic
Kanovnická 75/4
České Budějovice, 37001
Česká republika
Tel. na makléře: +420 724 832 802
Tel. do kanceláře: +420 725 910 910
E-mail: karel.exl@re-max.cz

Potřebujete poradit/máte zájem o prohlídku?

* – toto pole je nutné vyplnit

Podrobné informace

Číslo zakázky:
ID 111-NP08587
Typ nemovitosti:
Komerční prostory
Druh prostor:
Kanceláře
Číslo podlaží:
5
Plocha kanceláří:
38 m²
Druh objektu:
Cihlová
Stav objektu:
Velmi dobrý
Charakter okolní zástavby:
Obchodní a obytná
K nastěhování:
11. 11. 2025
Elektřina:
230 V
Odpad:
Kanalizace
Celková plocha:
38 m²
Typ domu:
Patrový
Umístění objektu:
Centrum obce
Voda:
Dálkový rozvod
Výtah:
Ano
Energetická náročnost budovy:
G