Translate with 
MENU ZAVŘÍT

Prodej domu 386 m², Dębowiec (ID 344-NP00567)

Dębowiec – část obce mapa

6 289 300 Kč ( za nemovitost)
GMimořádně
nehospodárná

5+
386 m2
1261 m2
1

Prostorný dům na prodej v Dębowiec - ideální poloha blízko Těšína!

Nabízíme k prodeji moderní přízemní rodinný dům s kompletním podsklepením, nacházející se v klidné a vyhledávané lokalitě obce Dębowiec, ulice Rajská, jen pár minut od česko-polských hranic. Ideální volba pro zájemce z České republiky, kteří hledají kvalitní bydlení v klidném prostředí s výbornou dostupností.
Dům je vzdálen přibližně 10 minut jízdy od Cieszyna / Českého Těšína, 30 minut od Frýdku-Místku a cca 45–50 minut od Ostravy. Díky blízkosti hranic je lokalita velmi dobře dostupná i pro každodenní dojíždění z ČR.
Nemovitost byla postavena individuálním investorem pro vlastní bydlení, s důrazem na vysoký standard provedení, funkčnost a moderní technologie. Přízemí i suterén jsou kompletně dokončené a připravené k okamžitému užívání. K dokončení zbývá fasáda, zpevněné plochy a zahrada dle vlastních představ.
Základní údaje:
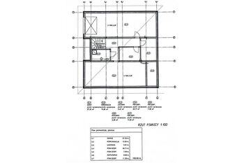
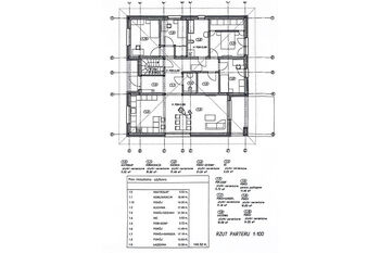
- užitná plocha přízemí: 145,32 m²
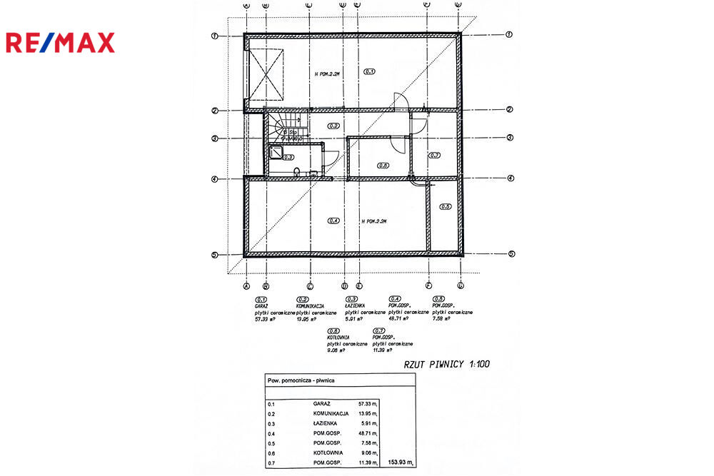
- plocha suterénu: 153,93 m²
- celková plocha domu: 385,9 m²
Dispozice přízemí nabízí prostorný obývací pokoj s kuchyní, několik ložnic (včetně pokoje se šatnou), koupelnu, samostatné WC a technické zázemí. Suterén je plně obytný – nachází se zde velký společenský prostor s kuchyňským koutem, koupelna, technické a skladovací místnosti a garáž o velikosti 57 m². Prostor je vhodný také pro domácí kancelář, relaxační zónu či podnikání.
Technické vybavení a standard:
- tepelné čerpadlo Panasonic 12 kW
- rekuperace
- mechanická čistička odpadních vod
- keramická střešní krytina Roben
- kvalitní okna Veka (HST + fix), hliníkové vstupní dveře
- venkovní rolety na všech oknech
- vinylové podlahy Quick Step
- zateplení 20 cm
- připravená instalace pro fotovoltaiku, monitoring a domofon
Dům nabízí vysoký komfort bydlení, nízké provozní náklady a klidné prostředí v kombinaci s velmi dobrou dostupností do České republiky. Ideální řešení pro rodinné bydlení i pro klienty, kteří chtějí bydlet blízko hranic a využívat výhod obou zemí.
Cena:
6 289 300 CZK / za nemovitost
Poznámka k ceně:
Upozornění:
Prodávající si vyhrazuje právo vybrat kupujícího na základě jím zvolených kritérií.
RX finance

Spočítejte si splátku hypotéky

Na kolik vás vyjde pořízení vlastního bydlení? Zadejte pár informací do naší hypoteční kalkulačky a hned si prohlédněte výsledek.

Kupní cena nemovitosti

6 289 300 Kč

Výše hypotéky

Doba splácení

Vypočítaná měsíční splátka

Úroková sazba 3.6%

260 990 Kč

Hypotéku zařídíme za vás

Ušetřete svůj čas i nervy. Naši makléři zařídí veškeré papírování a dovedou vás až k úspěšnému podpisu smlouvy v bance.

Nechte nám kontakt, náš makléř se v pracovní dny ozve do 24 hodin

* – toto pole je nutné vyplnit
David Patera
RE/MAX Easy
28. října 1610/95
Ostrava, 70200
Česká republika
Tel. na makléře: +420 725 878 423
Tel. do kanceláře: +420 722 484 787
E-mail: david.patera@re-max.cz

Potřebujete poradit/máte zájem o prohlídku?

* – toto pole je nutné vyplnit

Podrobné informace

Číslo zakázky:
ID 344-NP00567
Poloha objektu:
Samostatný
Počet podlaží v objektu:
1
Užitná plocha:
386 m²
Plocha parcely:
1 261 m²
Druh objektu:
Cihlová
Stav objektu:
Velmi dobrý
Typ nemovitosti:
Domy a vily
Zastavěná plocha:
145 m²
Počet podlaží pod zemí:
1
Typ domu:
Přízemní
Voda:
Dálkový rozvod
Energetická náročnost budovy:
G