Translate with 
MENU ZAVŘÍT

Pronájem bytu 3+1 v družstevním vlastnictví 74 m², Kopřivnice (ID 349-NP00120)

ulice Obránců míru, Kopřivnice mapa

14 000 Kč ( za měsíc)
GMimořádně
nehospodárná

1x
3x
74 m2
2/5
Exkluzivně Rezervace

Podnájem bytu 3+1 ul. Obránců míru Kopřivnice

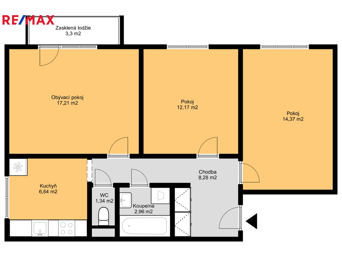
K dlouhodobému podnájmu nabízím družstevní byt 3+1 se zasklenou lodžií na ulici Obránců míru v Kopřivnici. Byt je částečně vybaven. V kuchyni je k dispozici kuchyňská linka včetně spotřebičů (vařič, trouba, digestoř, lednice, myčka), v obývacím pokoji zůstane obývací stěna s lampou, v ložnici postel bez matrací, skříň a komoda, v koupelně pračka. Koupelna a WC prošly rekonstrukcí.
Byt je k nastěhování od 1.12.2025.
Cena podnájmu je 14.000,- Kč (v ceně je voda, topení, úklid společných prostor). Elektřinu a plyn (na vaření) si podnájemník přepíše na sebe.
Kauce: 28.000,- Kč.
Provize RK: 16.940,- Kč.
Pro domluvení prohlídky a další informace jsem k dispozici!
Vaše makléřka pro tuto oblast Pavla Frant.
Cena:
14 000 CZK / Rezervováno
Poznámka k ceně:
Upozornění:
Pronajímající si vyhrazuje právo vybrat nájemce na základě jím zvolených kritérií.
Ing. Pavla Frant
RE/MAX Relations
Staškova 169/69
Mohelnice, 78985
Česká republika
Tel. na makléře: +420 607 993 812
Tel. do kanceláře: +420 731 305 955
E-mail: pavla.frant@re-max.cz

Potřebujete poradit/máte zájem o prohlídku?

* – toto pole je nutné vyplnit

Podrobné informace

Číslo zakázky:
ID 349-NP00120
Dispozice:
3+1
Číslo podlaží:
2
Počet podlaží v objektu:
5
Podlahová plocha:
74 m²
Druh objektu:
Panelová
Stav objektu:
Dobrý
Vlastnictví:
Družstevní
Typ nemovitosti:
Byty
Charakter okolní zástavby:
Obytná
K nastěhování:
1. 12. 2025
Doprava:
Vlak, Silnice, MHD, Autobus
Odpad:
Kanalizace
Užitná plocha:
67 m²
Plyn:
Plynovod
Vybaveno:
Ano
Energetická náročnost budovy:
G