Translate with 
MENU ZAVŘÍT

Pronájem bytu 2+1 v osobním vlastnictví 61 m², Mohelnice (ID 349-NP00119)

ulice nám. Kosmonautů, Mohelnice mapa

11 500 Kč ( za měsíc)
GMimořádně
nehospodárná

1x
2x
61 m2
8/8

Vybavený byt 2+1 po rekonstrukci nám. Kosmonautů Mohelnice

Vážení klienti,
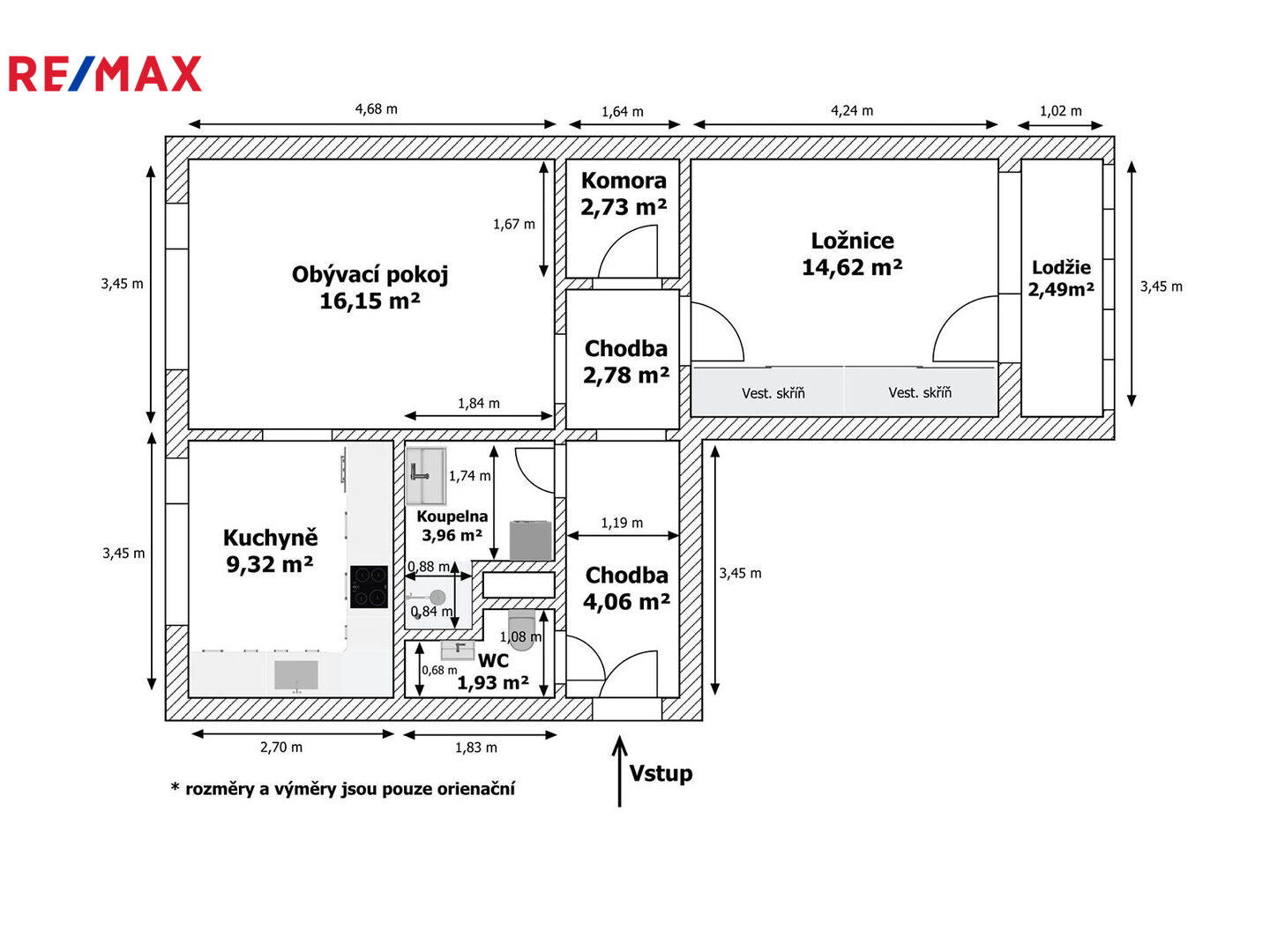
nabízím vám k pronájmu prostorný vkusně zařízený byt 2+1 (55 m2) na nám. Kosmonautů v Mohelnici, který se nachází v 8. nadzemním podlaží zrekonstruovaného panelového domu s výtahem.
Byt 2+1 s balkónem je plně vybaven. Součástí kuchyňské linky jsou spotřebiče Beko: digestoř, varná deska, trouba, mikrovlnná trouba, k dispozici je také lednice, varná konvice a nádobí.
V koupelně je bezbariérový sprchový kout s modulem detekce vody, který je napojen na sací čerpadlo, dále umyvadlo a pračka s horním plněním. WC je samostatné.
V bytě je dostatek úložných prostor: komora a velká šatní skříň v ložnici. K bytu náleží sklepní kóje a k dispozici je kolárna.

Cena pronájmu včetně služeb činí 15.700-Kč. V této ceně je nájemné 11.500,-Kč, platba za služby cca 3.000,-Kč (bude upřesněno podle počtu osob).
zálohová platba za elektřinu činí 1.200,-Kč. Vratná jistota (kauce) činí 30.000,-Kč. Provize RK 8.470,-Kč.

Byt je k nastěhování od 1. ledna 2026.
Cena:
11 500 CZK / za měsíc
Poznámka k ceně:
+ zálohy na služby a energie 4.200,- Kč + kauce 30.000,- Kč + provize RK 8.470,- Kč
Upozornění:
Pronajímající si vyhrazuje právo vybrat nájemce na základě jím zvolených kritérií.
Ing. Adéla Vaňková
RE/MAX Relations
Staškova 169/69
Mohelnice, 78985
Česká republika
Tel. na makléře: +420 731 305 955
Tel. do kanceláře: +420 731 305 955
E-mail: adela.vankova@re-max.cz

Potřebujete poradit/máte zájem o prohlídku?

* – toto pole je nutné vyplnit

Podrobné informace

Číslo zakázky:
ID 349-NP00119
Dispozice:
2+1
Číslo podlaží:
8
Počet podlaží v objektu:
8
Podlahová plocha:
61 m²
Druh objektu:
Panelová
Stav objektu:
Velmi dobrý
Vlastnictví:
Osobní
Typ nemovitosti:
Byty
K nastěhování:
1. 12. 2025
Odpad:
Kanalizace
Užitná plocha:
55 m²
Zastavěná plocha:
463 m²
Plyn:
Plynovod
Počet podlaží pod zemí:
1
Umístění objektu:
Sídliště
Vybaveno:
Ano
Výtah:
Ano
Energetická náročnost budovy:
G