Translate with 
MENU ZAVŘÍT

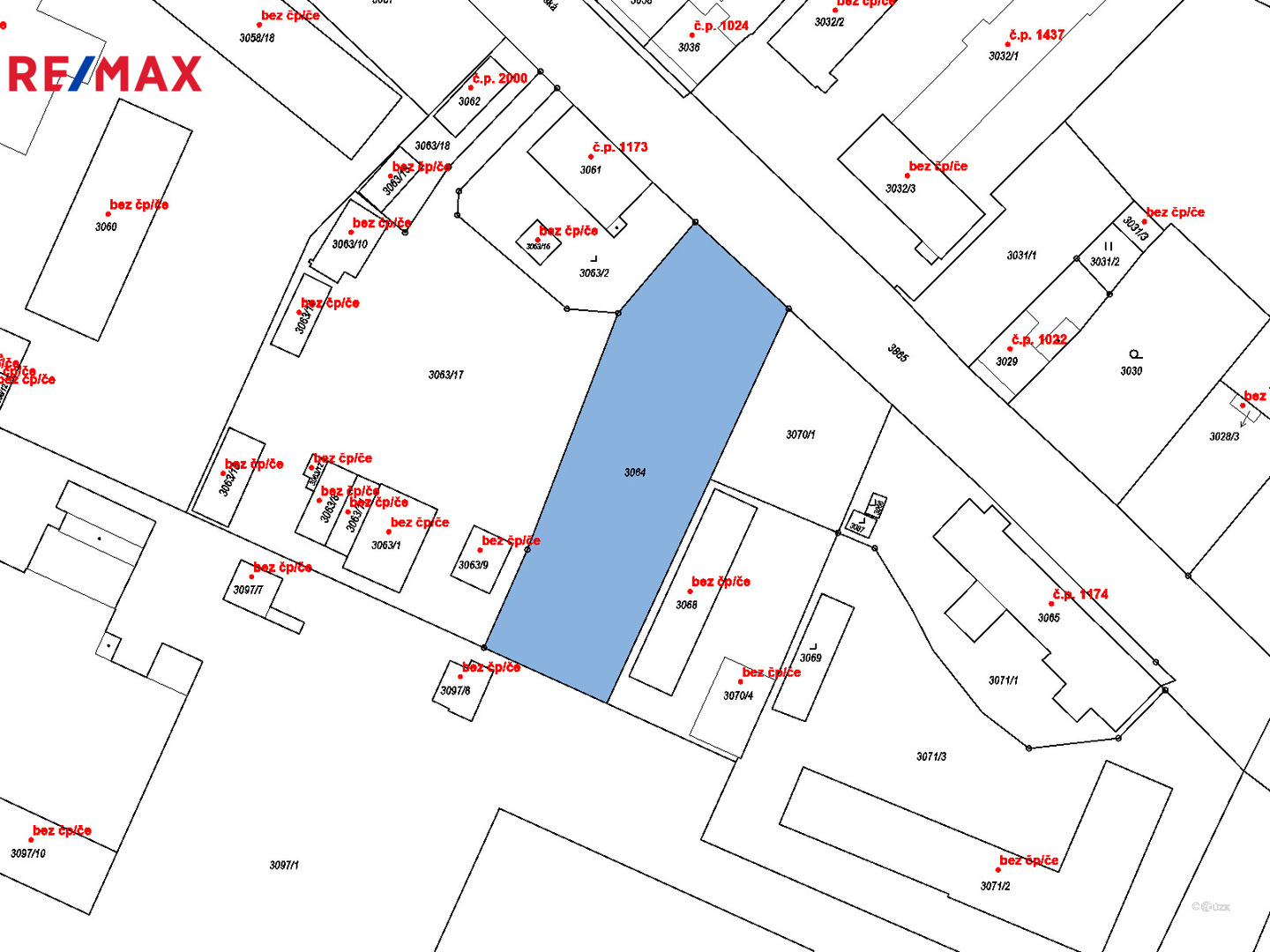
Prodej pozemku 2510 m², Bruntál (ID 158-NP02519)

ulice Opavská, Bruntál – část obce Bruntál-město mapa

5 350 000 Kč ( za nemovitost)

2510 m2
Exkluzivně

Prodej stavebního pozemku v Bruntále

Nabízím vám ke koupi stavební pozemek ke komerčnímu využití v Bruntále. pozemek je přístupný přímo z komunikace první třídy č. 11, z ulice Opavská. k pozemku můžeme dodat projekt k výstavbě samo obslužné myčky pro osobní automobily. Dle územního plánu je plocha určena pro průmyslovou výrobu a sklady. Pro více informací kontaktujte makléře.
Cena:
5 350 000 CZK / za nemovitost
Poznámka k ceně:
včetně provize a právního servisu
Upozornění:
Prodávající si vyhrazuje právo vybrat kupujícího na základě jím zvolených kritérií.
RX finance

Spočítejte si splátku hypotéky

Na kolik vás vyjde pořízení vlastního bydlení? Zadejte pár informací do naší hypoteční kalkulačky a hned si prohlédněte výsledek.

Kupní cena nemovitosti

5 350 000 Kč

Výše hypotéky

Doba splácení

Vypočítaná měsíční splátka

Úroková sazba 3.6%

260 990 Kč

Hypotéku zařídíme za vás

Ušetřete svůj čas i nervy. Naši makléři zařídí veškeré papírování a dovedou vás až k úspěšnému podpisu smlouvy v bance.

Nechte nám kontakt, náš makléř se v pracovní dny ozve do 24 hodin

* – toto pole je nutné vyplnit
Jan Žůrek
RE/MAX Nej
Hlavní třída 436/77
Havířov, 73601
Česká republika
Tel. na makléře: +420 733 164 165
Tel. do kanceláře: +420 777 250 943
E-mail: jan.zurek@re-max.cz

Potřebujete poradit/máte zájem o prohlídku?

* – toto pole je nutné vyplnit

Podrobné informace

Číslo zakázky:
ID 158-NP02519
Druh pozemku:
Pro komerční výstavbu
Celková plocha:
2 510 m²
Inženýrské sítě:
Vodovod, Kanalizace, Plyn, Elektřina
Typ nemovitosti:
Pozemky
Umístění objektu:
Okraj obce