Translate with 
MENU ZAVŘÍT

Prodej bytu 4+kk v osobním vlastnictví 267 m², Montesilvano (ID 331-NP00498)

Montesilvano – část obce mapa

490 000,00 € ( za nemovitost)
CÚsporná

kk
4x
267 m2
2/2
Exkluzivně

Panoramatická italská vila snů: luxus, prostor a výhledy, které si zamilujete

Hledáte výjimečný domov v Itálii s výhledem, který bere dech?

Pak vás osloví tento exkluzivní dvoupodlažní dvojdomek v prestižní části Montesilvana, kde se spojuje elegance, soukromí a panorama moře i hor v jednom jediném pohledu. Je ideální pro náročné klienty, kteří hledají prostorné rodinné bydlení, druhý domov u moře nebo reprezentativní nemovitost s nadčasovou hodnotou. Navíc díky skvělé dostupnosti z Česka můžete být za na místě za méně než 2 hodiny. Tuto nemovitost vám přinášíme ve výhradním zastoupení pod záštitou nejaktivnější kanceláře RE/MAX v Abruzzu.

Popis
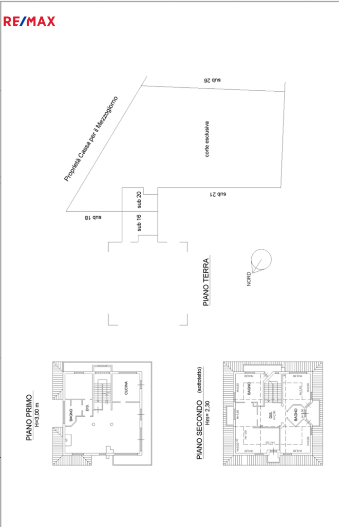
Apartmán o velikosti 234 m² je situován ve druhém patře a podkroví elegantní vily se třemi bytovými jednotkami. Po vstupu vás přivítá velkolepý obývací prostor s kamenným krbem Manoppello, velkými okny a přímým vstupem na panoramatickou terasu. Součástí této úrovně je také světlá kuchyň s jídelnou, pracovna či ložnice s vlastní terasou a koupelna se sprchovým koutem a prádelnou.

Podkroví tvoří komfortní spací část, která působí elegantně díky prosklené pyramidě vpouštějící přirozené světlo. Najdete zde tři prostorné ložnice, každou s přístupem na svou terasu, a dvě luxusní koupelny s mozaikami Bisazza. Hlavní ložnice navíc disponuje privátní koupelnou s vířivkou a terasou s úchvatným výhledem.

K domu náleží přibližně 300 m² soukromé zahrady s altánem a vyhrazené parkovací místo. Nemovitost prošla rozsáhlou rekonstrukcí v roce 2022 – nová fasáda s izolací, fotovoltaika, moderní osvětlení, nabíjecí stanice a opatření proti seismickému poškození zajišťují vysoký standard a dlouhodobou hodnotu.

Lokalita
Montesilvano je jednou z nejkrásnějších obytných částí regionu Abruzzo – historická vesnička na vrcholu kopce, odkud se otevírá výhled na celé pobřeží i majestátní pohoří Gran Sasso. V okolí najdete tradiční restaurace, vinárny a malebné uličky, zatímco pláže Montesilvana a Pescary jsou vzdálené jen pár minut jízdy. Z regionu si můžete užít celoroční životní styl: léto u moře, podzimní výlety do vinic, zimní lyžování necelou hodinu od domu a jarní túry v národních parcích.

Tato vila je jedinečná příležitost pro ty, kteří chtějí spojit život u moře s klidem vyvýšené rezidenční zóny a nadstandardním komfortem. Zamilujete se na první pohled.

Servis pro české klienty
RE/MAX je zárukou profesionality a transparentnosti. Můj tým česky a slovensky mluvících asistentek a více než dvacet let zkušeností v lokalitě vám zajistí hladký proces koupě i následné správy. Postaráme se o administrativu, přepis energií, pojištění, komunikaci se správcem i sousedy. Klíče nám můžete svěřit kdykoliv – zajistíme kontrolu, přípravu před příjezdem i úklid. Navíc zde působí soudržná komunita českých klientů, která vám pomůže rychle se cítit jako doma. O kvalitě našich služeb svědčí i prestižní ocenění Platinum za výjimečné výsledky na italském trhu.

Zavolejte a domluvte si prohlídku
Budu se těšit na viděnou v Montesilvanu
Cena:
490 000 EUR / za nemovitost
Poznámka k ceně:
V ceně jsou zahrnuty provize, DPH, notářské poplatky a daň z převodu nemovitosti a přihlášení na služby + veškerá podpora s čímkoliv s našim týmem.
Upozornění:
Prodávající si vyhrazuje právo vybrat kupujícího na základě jím zvolených kritérií.
Bc. Zuzana Bajgerová
RE/MAX Černá perla
Slavíkova 6068/18
Ostrava - Poruba, 70800
Česká republika
Tel. na makléře: +420 723 824 348
Tel. do kanceláře: +420 724 024 550
E-mail: zuzana.bajgerova@re-max.cz

Potřebujete poradit/máte zájem o prohlídku?

* – toto pole je nutné vyplnit

Podrobné informace

Číslo zakázky:
ID 331-NP00498
Dispozice:
4+kk
Číslo podlaží:
2
Počet podlaží v objektu:
2
Podlahová plocha:
267 m²
Druh objektu:
Smíšená
Stav objektu:
Velmi dobrý
Vlastnictví:
Osobní
Typ nemovitosti:
Byty
Bezbariérový byt:
Ano
Charakter okolní zástavby:
Obytná
Doprava:
Vlak, Silnice, Autobus
Elektřina:
230 V
Odpad:
Kanalizace
Ostatní rozvody:
Kabelové rozvody
Užitná plocha:
234 m²
Plyn:
Plynovod
Počet parkovacích míst:
1
Umístění objektu:
Klidná část obce
Voda:
Dálkový rozvod
Vybaveno:
Ano
Energetická náročnost budovy:
C