Translate with 
MENU ZAVŘÍT

Prodej bytu 3+1 v družstevním vlastnictví 89 m², České Budějovice (ID 343-NP00662)

ulice N. Frýda, České Budějovice – část obce České Budějovice 2 mapa

4 990 000 Kč ( za nemovitost)
CÚsporná

1x
3x
89 m2
3/9
Exkluzivně Rezervace

Nabízíme ke koupi družstevní byt v ulici N. Frýda v Českých Budějovicích

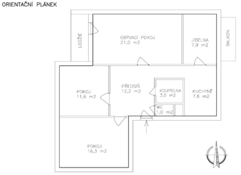
Exkluzivně nabízíme ke koupi byt 3 +1 s jídelnou v družstevním vlastnictví v Českých Budějovicích. Slunný byt je umístěn v panelovém domě v ulici N. Frýda s orientací pokojů na V a Z. Byt v družstevním vlastnictví bez možnosti odkupu o celkové ploše 78,95 m2 se nachází v 3. nadzemním podlaží z 9. Byt je po rekonstrukci omítek, částečně podlah, vodovodních instalací a elektřiny. Bytové jádro je nové z ytongu, koupelna je zvětšena, takže se do ní pohodlně vejde rohová vana, umyvadlo a pračka. Dům je po celkové rekonstrukci fasády, zateplený, okna plastová, nová dlažba na schodech a ve společných prostorách. Dispozice bytu: kuchyně s přístupem do jídelny - samostatná místnost se vstupem na balkon (dříve využívána jako dětský pokoj), obývací pokoj se vstupem na lodžii, dětský pokoj a ložnice, samostatná toaleta. Na podlaze plovoucí podlaha, dlažba, koberce nebo PVC. Jedná se o slunný byt vzhledem k blízkosti školy a dispozici vhodný pro rodinu s dětmi. K bytu náleží 2 sklepy - jeden na patře a jeden v přízemí domu.
Cena:
4 990 000 CZK / Rezervováno
Poznámka k ceně:
Upozornění:
Prodávající si vyhrazuje právo vybrat kupujícího na základě jím zvolených kritérií.
RX finance

Spočítejte si splátku hypotéky

Na kolik vás vyjde pořízení vlastního bydlení? Zadejte pár informací do naší hypoteční kalkulačky a hned si prohlédněte výsledek.

Kupní cena nemovitosti

4 990 000 Kč

Výše hypotéky

Doba splácení

Vypočítaná měsíční splátka

Úroková sazba 3.6%

260 990 Kč

Hypotéku zařídíme za vás

Ušetřete svůj čas i nervy. Naši makléři zařídí veškeré papírování a dovedou vás až k úspěšnému podpisu smlouvy v bance.

Nechte nám kontakt, náš makléř se v pracovní dny ozve do 24 hodin

* – toto pole je nutné vyplnit
Ing. Silvie Čížková
RE/MAX G8 Reality 8
Pekárenská 1128/46
České Budějovice, 37004
Česká republika
Tel. na makléře: +420 608 624 488
Tel. do kanceláře: +420 733 785 785
E-mail: silvie.cizkova@re-max.cz

Potřebujete poradit/máte zájem o prohlídku?

* – toto pole je nutné vyplnit

Podrobné informace

Číslo zakázky:
ID 343-NP00662
Dispozice:
3+1
Číslo podlaží:
3
Počet podlaží v objektu:
9
Podlahová plocha:
89 m²
Druh objektu:
Panelová
Stav objektu:
Velmi dobrý
Vlastnictví:
Družstevní
Typ nemovitosti:
Byty
K nastěhování:
1. 12. 2025
Elektřina:
230 V
Odpad:
Kanalizace
Užitná plocha:
78 m²
Zastavěná plocha:
231 m²
Plyn:
Plynovod
Voda:
Dálkový rozvod
Vybaveno:
Ano
Výtah:
Ano
Energetická náročnost budovy:
C