Translate with 
MENU ZAVŘÍT

Prodej domu 107 m², Klobouky u Brna (ID 268-NP03367)

ulice Krajní, Klobouky u Brna mapa

4 950 000 Kč ( za nemovitost)
GMimořádně
nehospodárná

5+
107 m2
312 m2
1
Exkluzivně

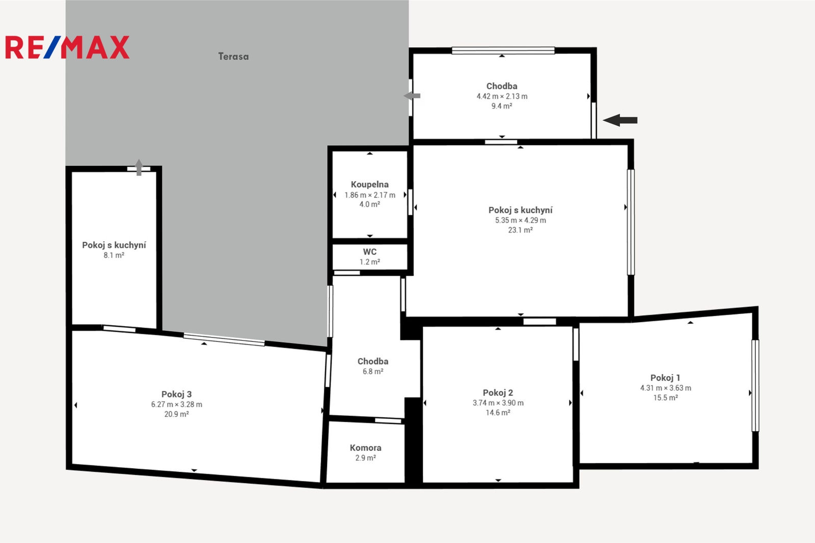
Prodej RD 4+1 s garáží, Klobouky u Brna

Exkluzivně nabízíme k prodeji hezký rodinný dům v oblíbené obci Klobouky u Brna.
Dům je přízemní, dispozičně řešený jako 4+1, prostornými pokoji a praktickým zázemím.
Nabízí také možnost rozšíření obytné plochy do podkroví, což je skvělá příležitost pro vytvoření dalšího pokoje nebo samostatné jednotky.
Součástí domu je terasa s exkluzivním výhledem na Klobouky, ideální pro odpočinek či posezení s rodinou.
K nemovitosti dále náleží garáž a sklep.
Vytápění i ohřev vody zajišťuje plynový kotel.
Dům je napojen na obecní vodovod.
Odpad je sveden do městské kanalizace

----
Klobouky u Brna jsou vyhledávanou a dobře fungující obcí v Jihomoravském kraji. Nabízí příjemnou kombinaci klidného venkovského prostředí a výborné dostupnosti do Brna – autem jste v centru za přibližně 25–30 minut, k dispozici je také pravidelné autobusové spojení směrem na Brno i Hustopeče.
V obci se nachází mateřská i základní škola, praktický lékař, zubař, lékárna, pošta i bankomat. Nechybí zde ani široká nabídka nákupních možností – supermarket COOP, menší prodejny, kavárny a různé služby.
Pro volnočasové vyžití zde najdete sportovní areál, dětská hřiště, cyklostezky a krásnou okolní přírodu, která přímo vybízí k procházkám a rekreačnímu sportu. Klobouky jsou zároveň známé svou vinařskou tradicí, malebnými výhledy a přátelskou komunitní atmosférou.

----
Energetická náročnost nemovitosti je pro účely inzerce zařazena do třídy G, jelikož zatím nebyl předložen platný průkaz energetické náročnosti (PENB).
Cena:
4 950 000 CZK / za nemovitost
Poznámka k ceně:
Uvedená cena je vč. provize
Upozornění:
Prodávající si vyhrazuje právo vybrat kupujícího na základě jím zvolených kritérií.
RX finance

Spočítejte si splátku hypotéky

Na kolik vás vyjde pořízení vlastního bydlení? Zadejte pár informací do naší hypoteční kalkulačky a hned si prohlédněte výsledek.

Kupní cena nemovitosti

4 950 000 Kč

Výše hypotéky

Doba splácení

Vypočítaná měsíční splátka

Úroková sazba 3.6%

260 990 Kč

Hypotéku zařídíme za vás

Ušetřete svůj čas i nervy. Naši makléři zařídí veškeré papírování a dovedou vás až k úspěšnému podpisu smlouvy v bance.

Nechte nám kontakt, náš makléř se v pracovní dny ozve do 24 hodin

* – toto pole je nutné vyplnit
Ivo Bauer
RE/MAX Delux
Křenová 538/22
Brno, 60200
Česká republika
Tel. na makléře: +420 777 935 794
Tel. do kanceláře: +420 602 703 897
E-mail: ivo.bauer@re-max.cz

Potřebujete poradit/máte zájem o prohlídku?

* – toto pole je nutné vyplnit

Podrobné informace

Číslo zakázky:
ID 268-NP03367
Poloha objektu:
Řadový
Počet podlaží v objektu:
1
Užitná plocha:
107 m²
Plocha parcely:
312 m²
Druh objektu:
Cihlová
Stav objektu:
Velmi dobrý
Typ nemovitosti:
Domy a vily
K nastěhování:
1. 1. 2026
Elektřina:
400 V
Garáž:
Ano
Odpad:
Kanalizace
Zastavěná plocha:
179 m²
Plyn:
Plynovod
Typ domu:
Přízemní
Voda:
Dálkový rozvod
Energetická náročnost budovy:
G