Translate with 
MENU ZAVŘÍT

Prodej bytu 4+1 v osobním vlastnictví 78 m², Kyjov (ID 163-NP05221)

ulice Sídliště Zahradní, Kyjov mapa

Cena na vyžádání v kanceláři
GMimořádně
nehospodárná

1x
4x
78 m2
3/5
Exkluzivně

Prodej bytu 4+1 s balkonem, komorou a sklepem v Kyjově, 72 m2

Nabídka kompletně opraveného bytu 4+1 s balkonem, komorou a sklepem v příjemné a klidné lokalitě v Kyjově.
Sídliště Zahradní je v docházkové vzdálenosti 10' od centra města, je zde hodně zeleně a díky poloze bytového domu až v zadní části se jedná o klidné prostředí.
V blízkosti bytu se nachází 2 obchody s potravinami, autobusová zastávka, vlakové nádraží, městský park, stadion a koupaliště.
Byt v osobním vlastnictví je umístěn ve 2. patře (3. NP) revitalizovaného panelového bytového domu bez výtahu.
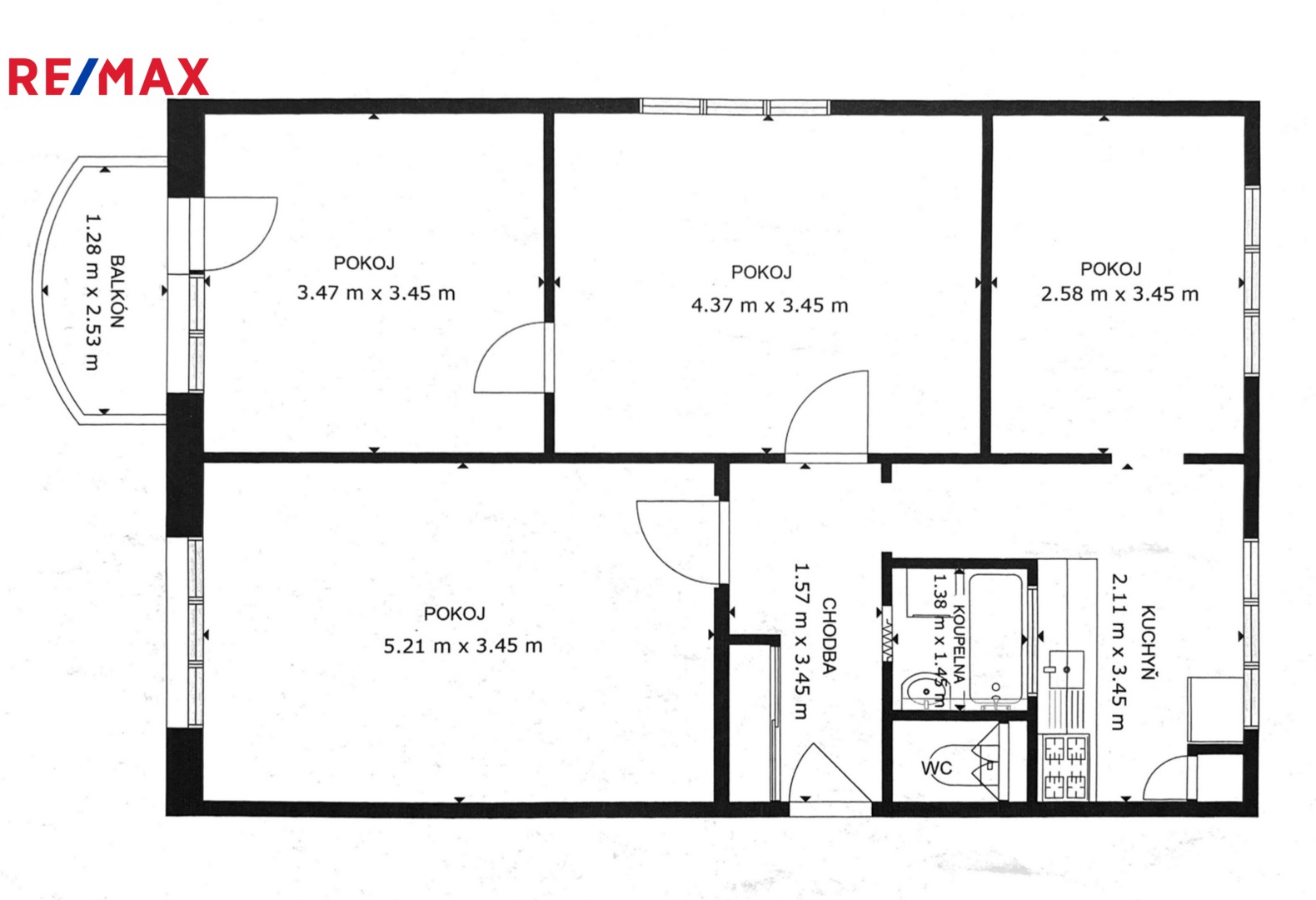
Dispozice bytu:
- obývák (18,2 m2),
- 3 pokoje (15,4, 12 a 8,9 m2),
- kuchyně (9 m2),
- vstupní chodba (5,3 m2),
- koupelna s umyvadlem a sprchou (2,1 m2),
- samostatná toaleta (0,9 m2),
- balkon (3,81 m2).
Podlahová plocha bytu bez balkonu je 71,8 m2.
Půdorys je rozměrově správný, změna je uvnitř koupelny.
Byt prošel před 2 lety kompletní opravou: rozvody elektřiny, vody a odpadů; omítky s perlinkou, sádrokartonové podhledy, dřevěné podlahy v obytných místnostech, velkoformátová dlažba a obklady v koupelně a na toaletě, kuchyňská linka se spotřebiči Mora (plynová varná deska, elektrická pečící trouba, odsavač par), nová sanita v koupelně a na toaletě, vestavěné skříně (9 částí), stínící okenní textil, vchodové bezpečnostní protipožární dveře, interiérové dveře vč. obložek.
Byt bude předán s kuchyňskou linkou, vestavěnými skříněmi a několika dalšími kusy nábytku.
V mezipatře patří k bytu komora na uskladnění věcí (1,65 m2).
V domě je již zaveden optický kabel.
Vytápění je ústřední dálkové a také teplá voda je přiváděna dálkově.
Orientace bytu: jih - západ - sever.
Předmětem prodeje je i sklepní kóje (1 m2).
Celková plocha bytu vč. balkonu, komory a sklepa je 78,3 m2.
Měsíční náklady: 3.500 pro SVJ (1.192 do FO) + elektřina a plyn, v bytě bydlí nyní 1 osoba.
Parkovat lze bezproblémově u domu, na nově revitalizovaných parkovacích stáních.
Ve městě najdete veškerou občanskou vybavenost: MěÚ, několik MŠ, tři ZŠ, gymnázium, dvě odborná učiliště, LŠU, Dům s pečovatelskou službou, Centrum služeb pro seniory, nemocnici s poliklinikou, řadu soukromých praxí dětských, obvodních a odborných lékařů, vlakové a autobusové nádraží, poštu, kompletní síť obchodů a služeb, kulturní dům a knihovnu, 2 kina (jedno je letní), stadion, aqua a venkovní koupaliště.
Kyjov je vzdálen 20 km od Hodonína, 35 km od Uherského Hradiště a 53 km od Brna.
Finanční služby: vyřešte platbu za svůj nový domov tam, kde jste ho koupili.
S RX FINANCE nikam jinam pro hypotéku nemusíte.
Osobně mě najdete v kyjovské kanceláři Masarykovo náměstí 7 (v průchodu).
Cena:
Cena na vyžádání v kanceláři
Poznámka k ceně:
Upozornění:
Prodávající si vyhrazuje právo vybrat kupujícího na základě jím zvolených kritérií.
Mgr. Veronika Šimečková
RE/MAX Delta
Panská 397/2
Brno, 60200
Česká republika
Tel. na makléře: +420 723 624 697
Tel. do kanceláře: +420 607 449 860
E-mail: veronika.simeckova@re-max.cz

Potřebujete poradit/máte zájem o prohlídku?

* – toto pole je nutné vyplnit

Podrobné informace

Číslo zakázky:
ID 163-NP05221
Dispozice:
4+1
Číslo podlaží:
3
Počet podlaží v objektu:
5
Podlahová plocha:
78 m²
Druh objektu:
Panelová
Stav objektu:
Po rekonstrukci
Vlastnictví:
Osobní
Typ nemovitosti:
Byty
Charakter okolní zástavby:
Obytná
Elektřina:
230 V
Odpad:
Kanalizace
Užitná plocha:
72 m²
Umístění objektu:
Sídliště
Voda:
Dálkový rozvod
Vybaveno:
Ano
Energetická náročnost budovy:
G